Выполненные проекты
Проект электрики дома в дер. Акиньшино
Объект: одноэтажный дом из кирпича, площадью 147 м.кв., расположенный в дер. Акиньшино, Новая Москва
Цена (стоимость) проекта электрики (электропроводки): 17 596 руб. со скидкой 10%, проект слаботочных кабельных линий - бесплатно.
Проект электрики выполнен: 10.10.2022
Состав проекта электрики дома в дер. Акиньшино:
1. Пояснительная записка. Общие данные по электроснабжению и освещению частного дома в дер. Акиньшино.
2. Однолинейные схемы вводного распределительного устройства и электрического распределительного щита дома 147 м.кв.
3. Чертежи электропроводки дома в дер. Акиньшино.
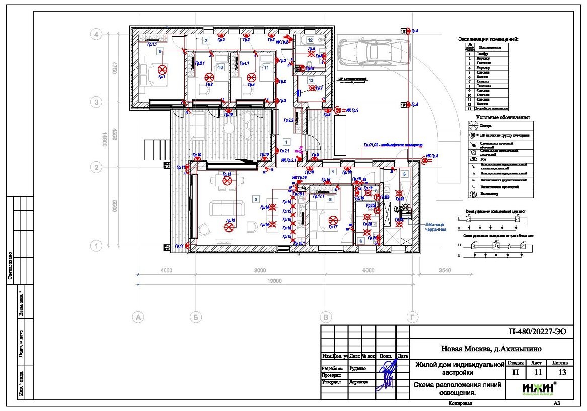
4. Чертежи групповых осветительных сетей дома в дер. Акиньшино.
5. Спецификация материалов и оборудования по электрике и электропроводке дома в дер. Акиньшино.
Объем проекта электрики дома 147 м.кв.: 13 листов.
Проект электрики дома площадью 147 м.кв. в дер. Акиньшино- подробное описание.
Расчетные показатели по электроснабжению и освещению дома в дер. Акиньшино.
o Расчетная электрическая мощность дома составила 15,44 кВт, с учетом коэффициента спроса 0,65, принятого согласно СП 256.1325800.2016;
o При расчете учтено силовое оборудование: кондиционеры, газовый котел, электроплита, водоочистка, скважинный насос, электрические полотенцесушители.
Распределительные электрические щиты дома площадью 147 м.кв.
o Проектом предусмотрен распределительный электрический щит, размещенный в техническом помещении;
o Автоматические выключатели, дифференциальные автоматы, рубильники и УЗО в щите – ABB, в количестве 39 шт. размещены в навесном корпусе.
Силовая кабельная сеть (электропроводка) дома в дер. Акиньшино.
o Электропроводка дома предусмотрена с использованием кабелей ВВГнг с медными жилами в ПВХ-оболочке (не поддерживает горение);
o Общая протяженность линий электроснабжения и освещения – 1150 метров, вводные кабельные линии - бронированные кабели (ВБбШв) 130 метров;
o Электропроводка предусмотрена скрытым способом, в гофрированной ПВХ-трубе;
o Запроектировано 105 точек подключения розеток и выключателей освещения в доме;
o Предусмотрены слаботочные линии локальной вычислительной сети и телевидения, общей протяженностью 360 метров.


















