Выполненные проекты
Проект электрики дома 192 м.кв. в Ивановской области
Объект: газобетонный общей площадью 192 м.кв., расположенный в п. Лежнево Ивановской области
Цена (стоимость) проекта электрики (электропроводки): 22 982 руб. со скидкой 10%, проект слаботочных кабельных линий - бесплатно.
Проект электрики выполнен: 20.10.2023
Состав проекта электрики дома в п. Лежнево:
1. Пояснительная записка. Общие данные по электроснабжению и освещению частного дома в п. Лежнево.
2. Однолинейные схемы вводного распределительного устройства и электрического распределительного щита дома 192 м.кв.
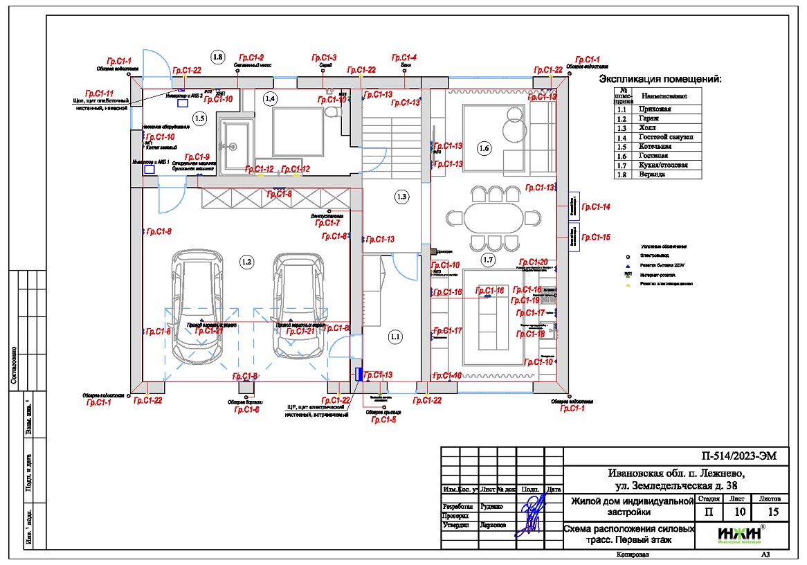
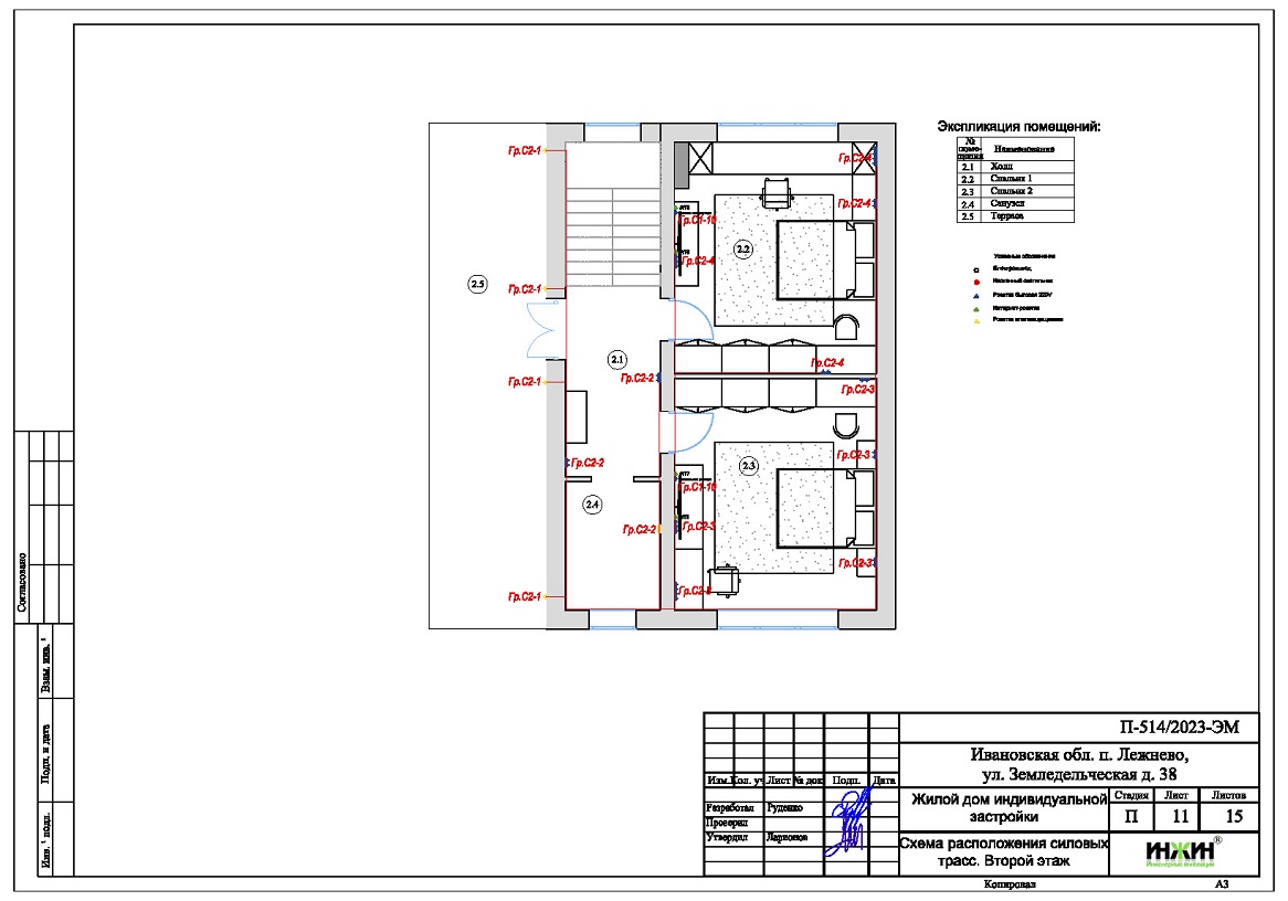
3. Чертежи электропроводки дома в п. Лежнево
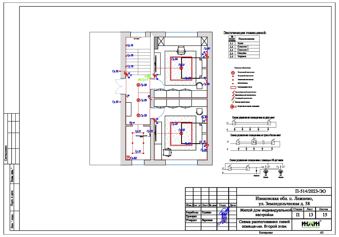
4. Чертежи групповых осветительных сетей дома в п. Лежнево.
5. Спецификация материалов и оборудования по электрике и электропроводке дома в п. Лежнево.
Объем проекта электрики дома 192 м.кв.: 15 листов.
Проект электрики дома площадью 192 м.кв. в п. Лежнево- подробное описание.
Расчетные показатели по электроснабжению и освещению дома в п. Лежнево.
o Расчетная электрическая мощность дома составила 15,59 кВт, с учетом коэффициента спроса 0,45, принятого согласно СП 256.1325800.2016;
o При расчете учтено силовое оборудование: септик, газовый котел, скважинный насос, электроплита, обогрев крыльца и водостоков.
Распределительные электрические щиты дома площадью 192 м.кв.
o Проектом предусмотрен один распределительный электрический щит, расположенный в помещении котельной;
o Автоматические выключатели, дифференциальные автоматы, рубильники и УЗО в щитах – ABB, в количестве 34 шт. размещены во встраиваемом корпусе.
Силовая кабельная сеть (электропроводка) дома в п. Лежнево.
o Электропроводка дома предусмотрена с использованием кабелей ВВГ нг -LS с медными жилами в ПВХ-оболочке (не поддерживает горение);
o Общая протяженность линий электроснабжения и освещения – 1423 метра, вводная кабельная линия - бронированный кабель 90 метров;
o Электропроводка предусмотрена скрытым способом, в конструкции пола и стен помещений;
o Запроектировано 173 точки подключения розеток и выключателей освещения в доме;
o Предусмотрены слаботочные линии локальной сети, общая протяженность - 250 метров.
Система резервного электропитания предусмотрена на базе бензинового генератора I-Power, 9 кВт.



















