Выполненные проекты
Проект электрики дома в КП "Вешки"
Объект: газобетонный дом общей площадью площадью 340 м.кв., расположенный в пос. Вешки Мытищинского района Московской области
Цена (стоимость) проекта электрики (электропроводки): 34 713 руб. со скидкой 10%, проект слаботочных кабельных линий - бесплатно.
Проект электрики выполнен: 09.07.2024
Состав проекта электрики дома в пос. Вешки:
1. Пояснительная записка. Общие данные по электроснабжению и освещению частного дома в пос. Вешки.
2. Однолинейные схемы вводного распределительного устройства и электрического распределительного щита дома 340 м.кв.
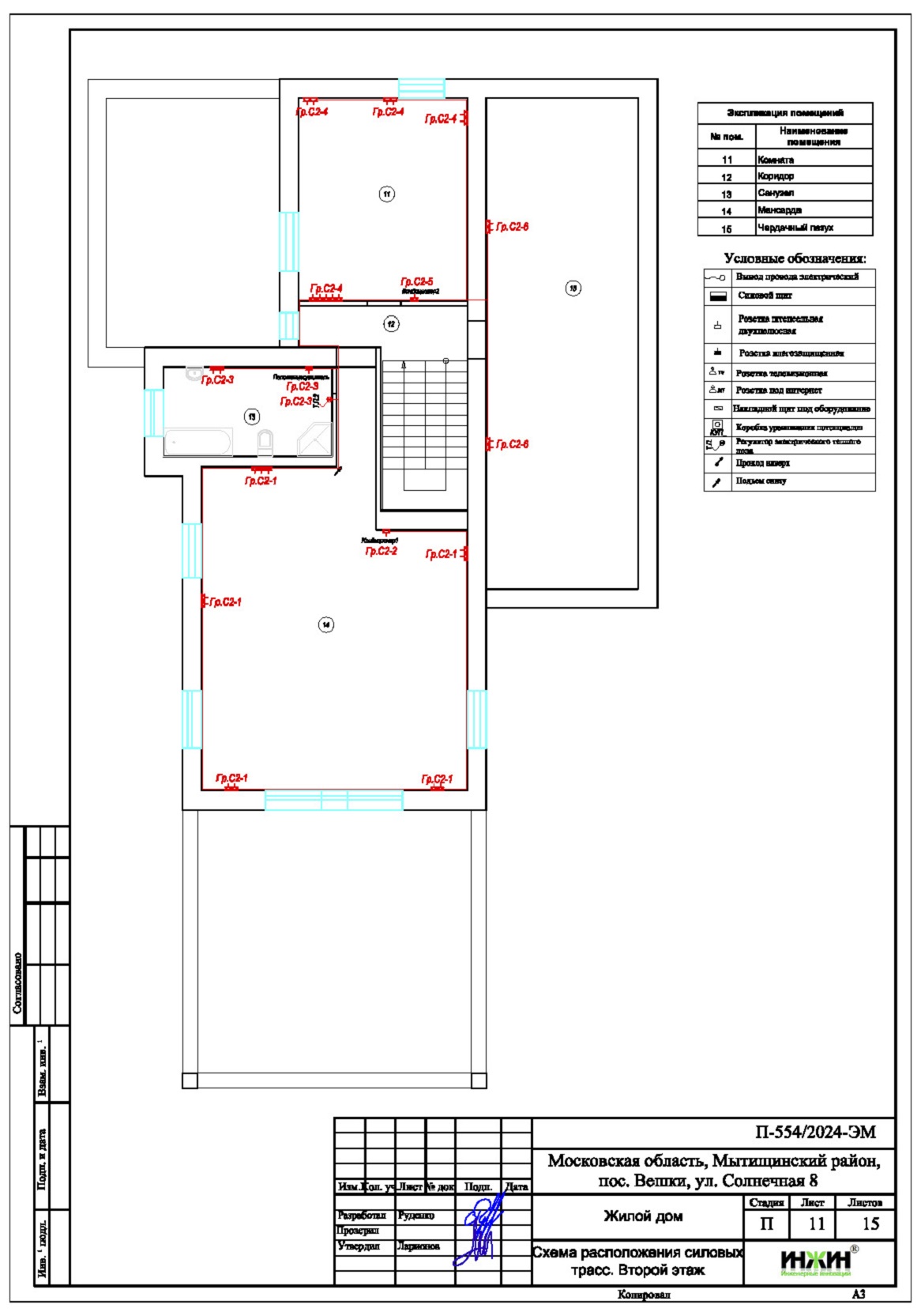
3. Чертежи электропроводки дома в пос. Вешки.
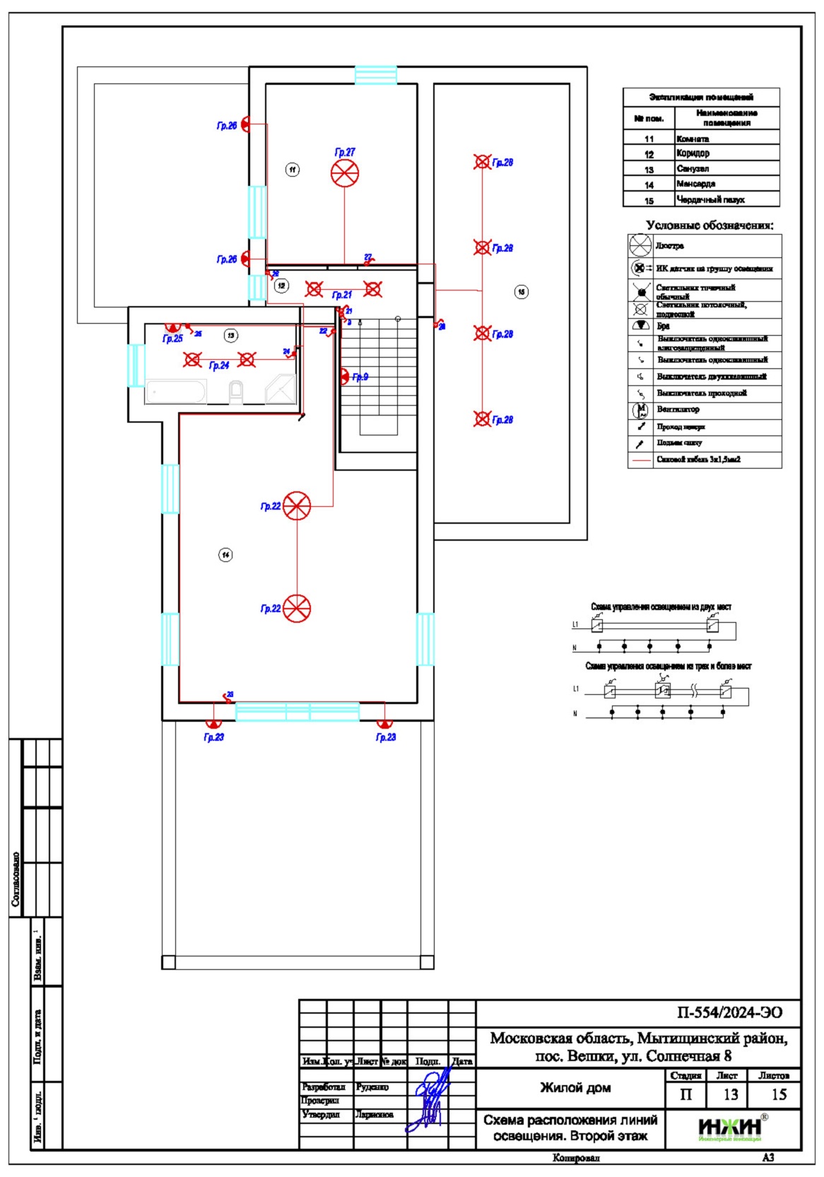
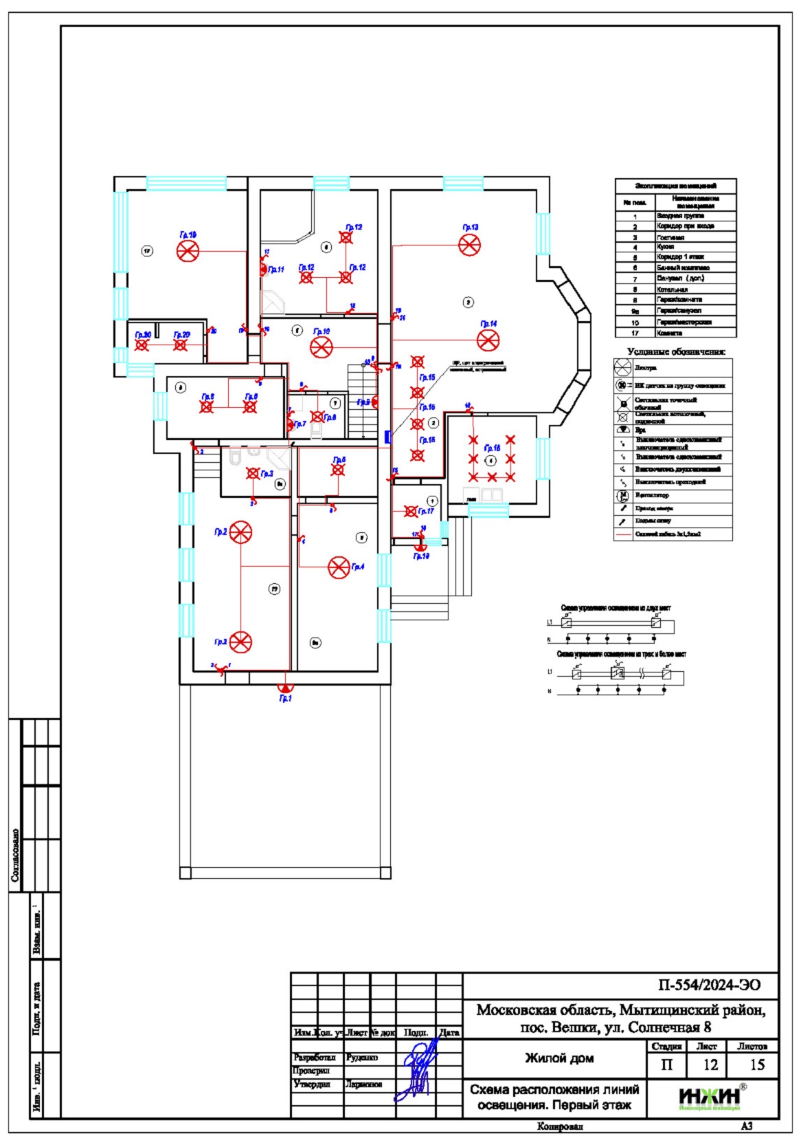
4. Чертежи групповых осветительных сетей дома в пос. Вешки.
5. Спецификация материалов и оборудования по электрике и электропроводке дома в пос. Вешки.
Объем проекта электрики дома 340 м.кв.: 15 листов.
Проект электрики дома площадью 340 м.кв. в пос. Вешки- подробное описание.
Расчетные показатели по электроснабжению и освещению дома в пос. Вешки.
o Расчетная электрическая мощность дома составила 22,6 кВт, с учетом коэффициента спроса 0,55, принятого согласно СП 256.1325800.2016;
o При расчете учтено силовое оборудование: септик, газовый котел, скважинный насос, кондиционеры.
Распределительные электрические щиты дома площадью 340 м.кв.
o Проектом предусмотрен один распределительный электрический щит, расположенный в гараже;
o Автоматические выключатели, дифференциальные автоматы, рубильники и УЗО в щите – Schneider Electric, в количестве 28 шт. размещены во встраиваемом корпусе.
Силовая кабельная сеть (электропроводка) дома в пос. Вешки.
o Электропроводка дома предусмотрена с использованием кабелей ВВГ нг -LS с медными жилами в ПВХ-оболочке (не поддерживает горение);
o Общая протяженность линий электроснабжения и освещения – 1100 метров, вводная кабельная линия - бронированный кабель 25 метров;
o Электропроводка предусмотрена скрытым способом, в конструкции пола и стен помещений;
o Запроектировано 111 точек подключения розеток и выключателей освещения в доме;
o Предусмотрены слаботочные телевидения протяженностью - 180 метров.
Система резервного электропитания предусмотрена на базе однофазного инвертора CyberPower CPS 1000 PRO с АКБ.
Заказать проект электрики частного дома дистанционно.
Для этого дома в пос. Вешкивыполнен проект отопления.



















