Выполненные проекты
Электропроводка брусового дома 150 м.кв., проект
Объект: деревянный дом (брус) общей площадью 150 м.кв., расположенный в дер. Лобково Рузского района Московской области
Цена (стоимость) проекта электрики (электропроводки): 19 575 руб. со скидкой 10%, проект слаботочных кабельных линий - бесплатно.
Проект электрики выполнен: 15.08.2024
Состав проекта электрики дома в дер. Лобково:
1. Пояснительная записка. Общие данные по электроснабжению и освещению частного дома в дер. Лобково.
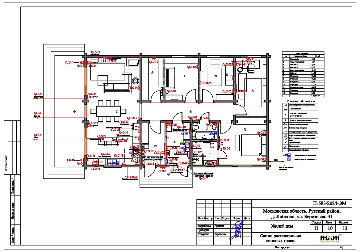
2. Однолинейные схемы вводного распределительного устройства и электрического распределительного щита дома 150 м.кв.
3. Чертежи электропроводки дома в дер. Лобково.
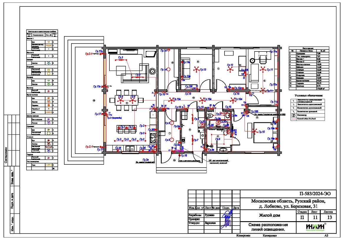
4. Чертежи групповых осветительных сетей дома в дер. Лобково.
5. Спецификация материалов и оборудования по электрике и электропроводке дома в дер. Лобково.
Объем проекта электрики дома 150 м.кв.: 13 листов.
Проект электрики дома площадью 150 м.кв. в дер. Лобково- подробное описание.
Расчетные показатели по электроснабжению и освещению дома в дер. Лобково.
o Расчетная электрическая мощность дома составила 15,08 кВт, с учетом коэффициента спроса 0,5, принятого согласно СП 256.1325800.2016;
o При расчете учтено силовое оборудование: септик, газовый котел, скважинный насос, кондиционеры и электрический теплый пол.
Распределительные электрические щиты дома площадью 150 м.кв.
o Проектом предусмотрен один распределительный электрический щит, расположенный в прихожей;
o Автоматические выключатели, дифференциальные автоматы, рубильники и УЗО в щитах – ABB, в количестве 28 шт. размещены в пристраиваемом корпусе.
Силовая кабельная сеть (электропроводка) дома в дер. Лобково.
o Электропроводка дома предусмотрена с использованием кабелей ВВГ нг -LS с медными жилами в ПВХ-оболочке (не поддерживает горение);
o Общая протяженность линий электроснабжения и освещения – 1170 метров, вводная кабельная линия - бронированный кабель 8 метров;
o Электропроводка предусмотрена открытым способом, в кабель-каналах;
o Запроектировано 105 точек подключения розеток и выключателей освещения в доме;
o Предусмотрены слаботочные линии телевидения и ЛВС, общая протяженность - 200 метров.
Предусмотрена система резервного электропитания с использованием однофазного инвертора CyberPower CPS 3500 PRO с АКБ.
















