Выполненные проекты
Электрика дома 147 м.кв в Сыктывкаре, проект
Объект: газобетонный дом общей площадью 147 м.кв., расположенный в г. Сыктывкар, Республика Коми
Цена (стоимость) проекта электрики (электропроводки): 19 184 руб. со скидкой 10%, проект слаботочных кабельных линий - бесплатно.
Проект электрики выполнен: 26.07.2024
Состав проекта электрики дома в г. Сыктывкар, Республика Коми:
1. Пояснительная записка. Общие данные по электроснабжению и освещению частного дома в г. Сыктывкар, Республика Коми.
2. Однолинейные схемы вводного распределительного устройства и электрического распределительного щита дома 147 м.кв.
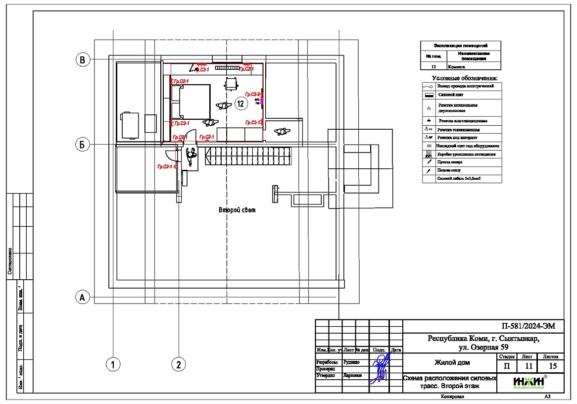
3. Чертежи электропроводки дома в г. Сыктывкар, Республика Коми.
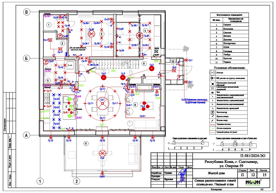
4. Чертежи групповых осветительных сетей дома в г. Сыктывкар, Республика Коми.
5. Спецификация материалов и оборудования по электрике и электропроводке дома в г. Сыктывкар, Республика Коми.
Объем проекта электрики дома 147 м.кв.: 15 листов.
Проект электрики дома площадью 147 м.кв. в г. Сыктывкар, Республика Коми.
Расчетные показатели по электроснабжению и освещению дома в г. Сыктывкар, Республика Коми.
o Расчетная электрическая мощность дома составила 20,25 кВт, с учетом коэффициента спроса 0,45, принятого согласно СП 256.1325800.2016;
o При расчете учтено силовое оборудование: септик, газовый котел, скважинный насос, кондиционеры.
Распределительные электрические щиты дома площадью 147 м.кв.
o Проектом предусмотрен один распределительный электрический щит, расположенный в техническом помещении котельной;
o Автоматические выключатели, дифференциальные автоматы, рубильники и УЗО в щите – ABB, в количестве 36 шт. размещены в пристраиваемом корпусе.
Силовая кабельная сеть (электропроводка) дома в г. Сыктывкар, Республика Коми.
o Электропроводка дома предусмотрена с использованием кабелей ВВГ нг -LS с медными жилами в ПВХ-оболочке (не поддерживает горение);
o Общая протяженность линий электроснабжения и освещения – 1 050 метров, вводная кабельная линия - бронированный кабель 75 метров;
o Электропроводка предусмотрена скрытым способом, в конструкции пола и стен помещений;
o Запроектировано 125 точек подключения розеток и выключателей освещения в доме;
o Предусмотрены слаботочные линии ЛВС и телевидения, общая протяженность - 140 метров.
Система резервного электропитания предусмотрена на базе однофазного инвертора CyberPower CPS 1500 PRO с АКБ.
Заказать проект электрики частного дома дистанционно.
Для этого дома в г. Сыктывкар, Республика Комивыполнен проект отопления.



















