Выполненные проекты
Проект электрики деревянной бани площадью 100 м.кв.
Объект: баня из бруса общей площадью 100 м.кв., расположенная в КП «Усадьба Жедочи» Наро-Фоминского района Московской области
Цена (стоимость) проекта электрики (электропроводки): 13 050 руб. со скидкой 10%, проект слаботочных кабельных линий - бесплатно.
Проект электрики выполнен: 10.07.2025
Состав проекта электрики бани в КП «Усадьба Жедочи»:
1. Пояснительная записка. Общие данные по электроснабжению и освещению частной бани в КП «Усадьба Жедочи».
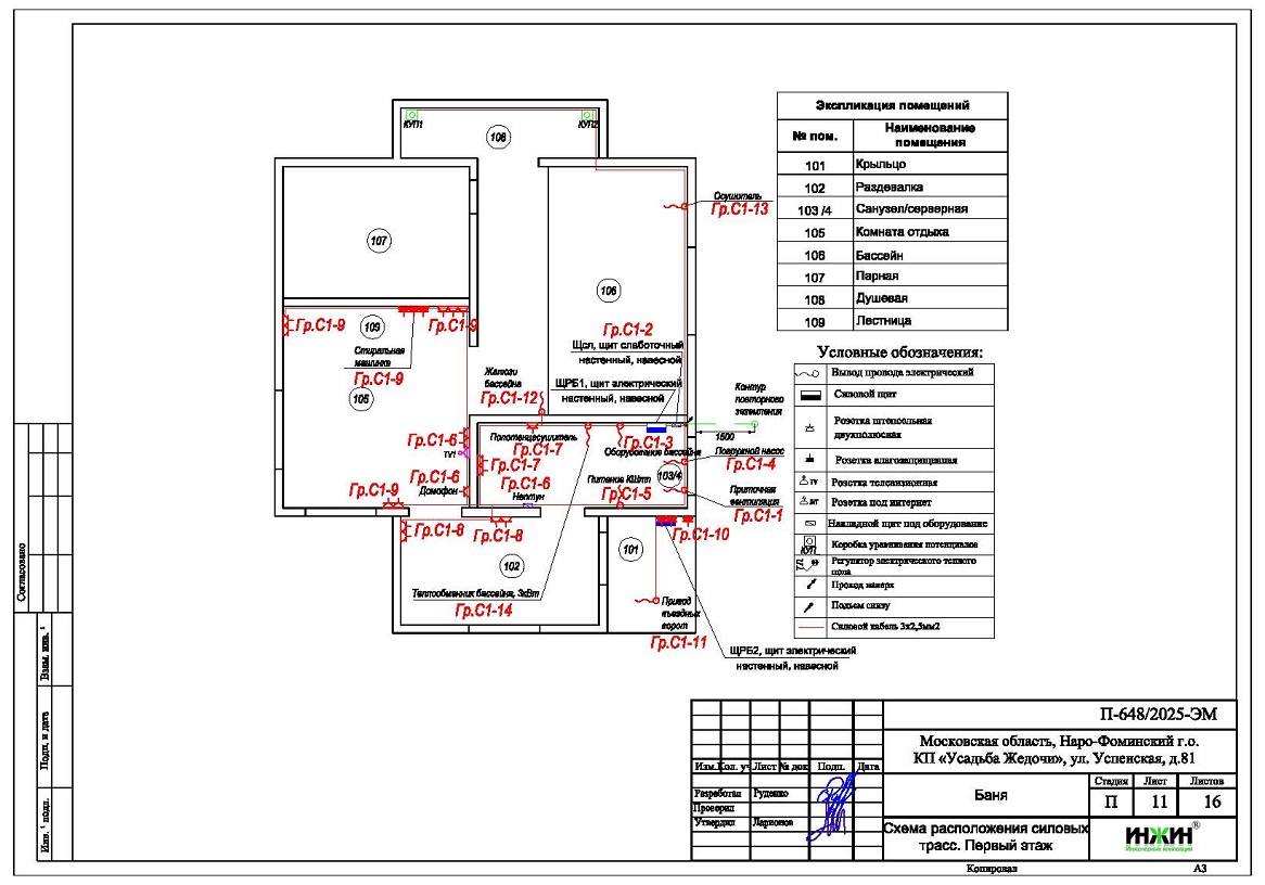
2. Однолинейные схемы вводного распределительного устройства и электрического распределительного щита частной бани 100 м.кв.
3. Чертежи электропроводки частной бани в КП «Усадьба Жедочи».
4. Чертежи групповых осветительных сетей бани в КП «Усадьба Жедочи».
5. Спецификация материалов и оборудования по электрике и электропроводке бани в КП «Усадьба Жедочи».
Объем проекта электрики бани 100 м.кв.: 16 листов.
Проект электрики баниплощадью 100 м.кв. в КП «Усадьба Жедочи»- подробное описание.
Расчетные показатели по электроснабжению и освещению бани в КП «Усадьба Жедочи».
o Расчетная электрическая мощность дома составила 7,00 кВт, с учетом коэффициента спроса 0,4, принятого согласно СП 256.1325800.2016;
o При расчете учтено силовое оборудование: септик, скважинный насос.
Распределительные электрические щиты баниплощадью 100 м.кв.
o Проектом предусмотрен один распределительный электрический щит, расположенный в котельной;
o Автоматические выключатели, дифференциальные автоматы, рубильники и УЗО в щитах – ABB, в количестве 25 шт. размещены в пристраиваемом корпусе.
Силовая кабельная сеть (электропроводка) бани в КП «Усадьба Жедочи».
o Электропроводка дома предусмотрена с использованием кабелей ВВГ нг -LS с медными жилами в ПВХ-оболочке (не поддерживает горение);
o Общая протяженность линий электроснабжения и освещения – 750 метров, вводная кабельная линия - бронированный кабель 50 метров;
o Электропроводка предусмотрена скрытым способом, в конструкции пола и стен помещений;
o Запроектировано 115 точек подключения розеток и выключателей освещения в доме;
o Предусмотрены слаботочные линии телевидения, общая протяженность - 25 метров.
Система резервного электропитания не предусмотрена.
Заказать проект электрики частного дома дистанционно.
Для этой бани в КП «Усадьба Жедочи»выполнен проект отопления.
















