Выполненные проекты
Проект отопления дома из газобетона 100 м.кв.
Объект: двухэтажный дом из газобетона, площадью площадью 100 м.кв., расположенный в г. Подольск Московской области
Вариант отопления: «Комфортный+»
Цена проекта отопления: 13 950 руб. со скидкой 10%, проект котельной - бесплатно.
Проект котельной и отопления выполнен: 14.07.2025
Состав проекта котельной и отопления дома в г. Подольск:
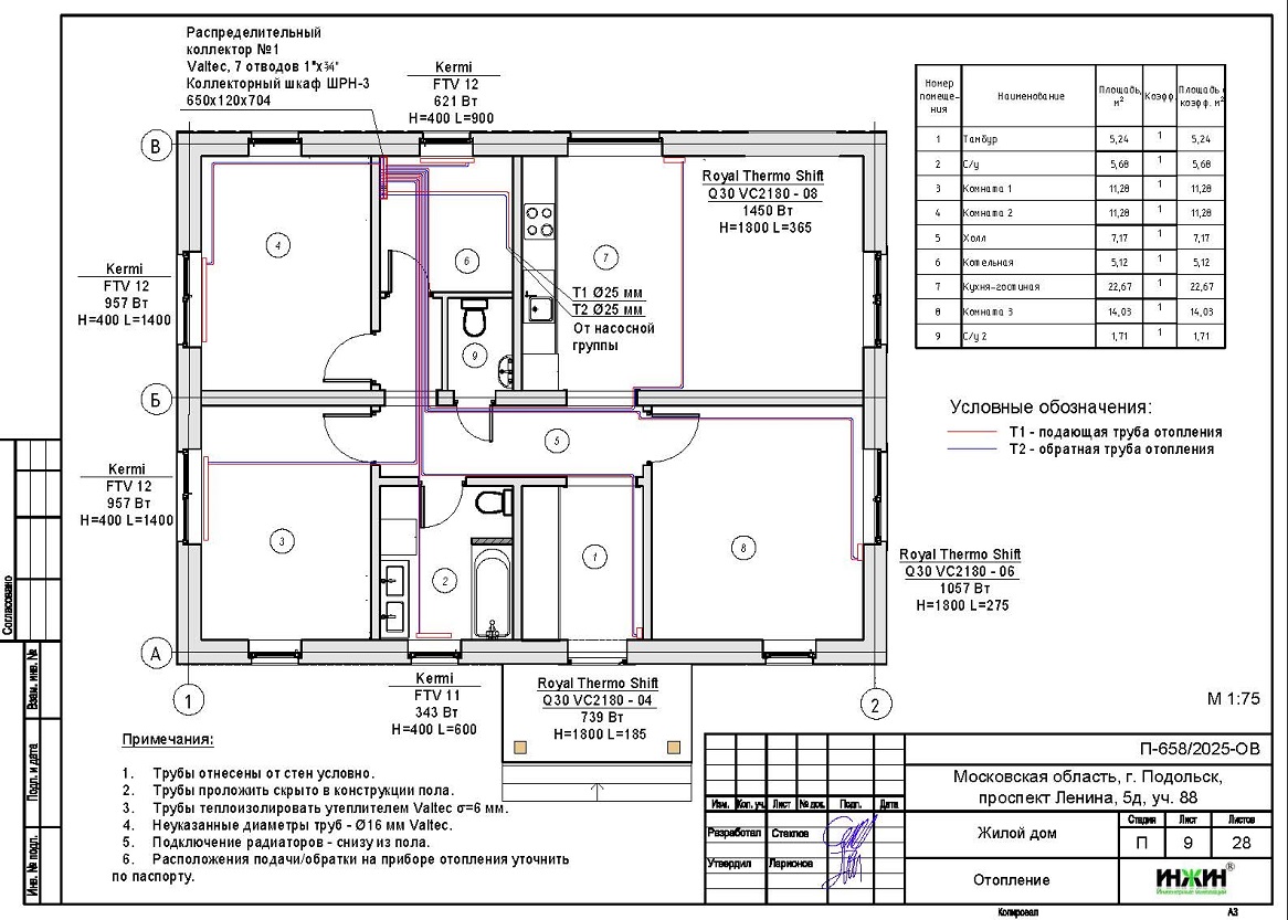
1. Пояснительная записка проекта, общие данные по системе отопления дома 100 м.кв. в г. Подольск.
2. Тепломеханическая схема котельной с размещением оборудования в отдельном помещении дома из газобетона.
3. Комплект поэтажных чертежей радиаторного отопления дома в г. Подольск.
4. Комплект чертежей теплого пола на площади 70 м.кв.
5. Типовые схемы системы отопления дома 100м.кв.
6. Теплотехнический расчет отопления дома из газобетона.
7. Спецификация материалов и оборудования по котельной и отоплению дома в г. Подольск.
Объем проекта отопления дома в г. Подольск: 28 листов.
Описание проекта отопления, котельной частного дома 100 м.кв. в г. Подольск.
Котельная частного дома в г. Подольск(проект котельной бесплатно).
o Размещена в отдельном помещении дома 100м.кв.;
o Теплогенераторы - настенный газовый котел Baxi ECO-4S, мощностью 24 кВт (основной), настенный электрический котел BAXI AMPERA Plus, мощностью 9 кВт (резервный);
o Контуры теплоснабжения котельной – радиаторное отопление дома, теплый пол и горячее водоснабжение, для которого предусмотрен накопительный бойлер STOUT, объемом 150 литров;
o Расширительные баки отопления и бойлера Flamco, объемом 18 литров каждый;
o Дымоудаление принудительное, дымоход коаксиальный, через кровлю здания;
o Распределительный коллектор - STOUT с насосными группами и встроенной гидрострелкой;
o Автоматика котельной – контроллер ZONT Climatic 1.2 со встроенным GSM-модулем.
Отопление дома в г. Подольск (проект отопления дома).
o Выполнен теплотехнический расчет отопления дома из газобетона (утеплитель кровли - минвата 250 мм) с учетом теплопотерь через ограждающие конструкции при наружной температуре -26°С для Московской области (по СП 131.13330.2020), расчетный расход тепла на отопление дома составил 9,63 кВт, удельные теплопотери 114,5 Вт/м.кв.;
o Подобраны приборы для отопления дома: стальные панельные радиаторы Kermi и трубчатые радиаторы Royal Thermo Shift с нижним подключением;
o Схема радиаторного отопления дома двухтрубная, коллекторно-лучевая, с принудительной циркуляцией теплоносителя и температурным графиком 80/60°С;
o Трубы отопления из сшитого полиэтилена Valtec;
o Теплоизоляция трубопроводов отопления Valtec, толщиной 6мм;
o Теплоноситель в системе радиаторного отопления дома – подготовленная вода, предусмотрены средства защиты от образования накипи.
Водяной теплый пол дома в г. Подольск(проект теплого пола).
o Водяной теплый пол в доме предусмотрен на площади 70 м.кв., коллектор теплого пола Valtec на 10 отводов, всего 10 петель;
o Предусмотрен насосно-смесительный узел для теплоснабжения водяного теплого пола дома - в составе насосной группы;
o Трубопроводы теплого пола – сшитый полиэтилен Valtec;
o Регулирование температуры теплого пола - общее, регулятором на смесительной группе и локальное - помещениям при помощи комнатных Wi-Fi термостатов Valtec.
















