Выполненные проекты
Проект электрики газоблочного дома площадью 365 м.кв.
Объект: газобетонный дом общей площадью 365 м.кв., расположенный в СНТ Золотилово, Сергиево-Посадского г.о, Московской области
Цена (стоимость) проекта электрики (электропроводки): 47 633 руб. со скидкой 10%, проект слаботочных кабельных линий - бесплатно.
Проект электрики выполнен: 09.09.2025
Состав проекта электрики дома в СНТ Золотилово:
1. Пояснительная записка. Общие данные по электроснабжению и освещению частного дома в СНТ Золотилово.
2. Однолинейные схемы вводного распределительного устройства и электрического распределительного щита дома 365 м.кв.
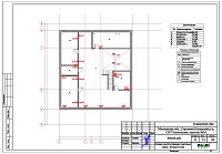
3. Чертежи электропроводки дома в СНТ Золотилово.
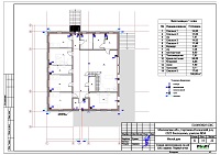
4. Чертежи групповых осветительных сетей дома в СНТ Золотилово.
5. Спецификация материалов и оборудования по электрике и электропроводке дома в СНТ Золотилово.
Объем проекта электрики дома 365 м.кв.: 22 листа.
Проект электрики дома площадью 365м.кв. в СНТ Золотилово- подробное описание.
Расчетные показатели по электроснабжению и освещению дома в СНТ Золотилово.
o Расчетная электрическая мощность дома составила 15,76 кВт, с учетом коэффициента спроса 0,42, принятого согласно СП 256.1325800.2016;
o При расчете учтено силовое оборудование: септик, газовый котел, скважинный насос, кондиционеры, приводы окон.
Распределительные электрические щиты дома площадью 365 м.кв.
o Проектом предусмотрен один распределительный электрический щит, расположенный в прихожей;
o Автоматические выключатели, дифференциальные автоматы, рубильники и УЗО в щите – ABB, в количестве 44 шт. размещены во встраиваемом корпусе.
Силовая кабельная сеть (электропроводка) дома в СНТ Золотилово.
o Электропроводка дома предусмотрена с использованием кабелей ВВГ нг -LS с медными жилами в ПВХ-оболочке (не поддерживает горение);
o Общая протяженность линий электроснабжения и освещения – 1800 метров, вводная кабельная линия - бронированный кабель 160 метров;
o Электропроводка предусмотрена скрытым способом, в конструкции пола и стен помещений;
o Запроектировано 217 точек подключения розеток и выключателей освещения в доме;
o Предусмотрены слаботочные линии телевидения ЛВС, общая протяженность - 1370 метров.
Система резервного электропитания предусмотрена с бензиновым генератором A-iPower A7000EAX.



















