Выполненные проекты
Проект электрики дома 401 м.кв. в Одинцовском г.о.
Объект: газобетонный дом общей площадью 401 м.кв., расположенный в ДПК Михайловское Одинцовского г.о. Московской области
Цена (стоимость) проекта электрики (электропроводки): 52 200 руб. со скидкой 10%, проект слаботочных кабельных линий - бесплатно.
Проект электрики выполнен: 24.11.2025
Состав проекта электрики дома в ДПК Михайловское Одинцовского г.о.:
1. Пояснительная записка. Общие данные по электроснабжению и освещению частного дома в ДПК Михайловское Одинцовского г.о.
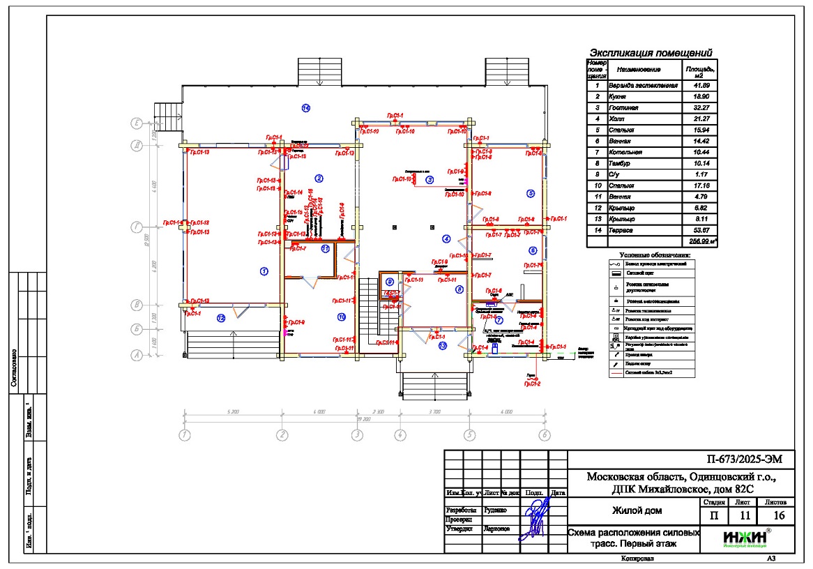
2. Однолинейные схемы вводного распределительного устройства и электрического распределительного щита дома 401.
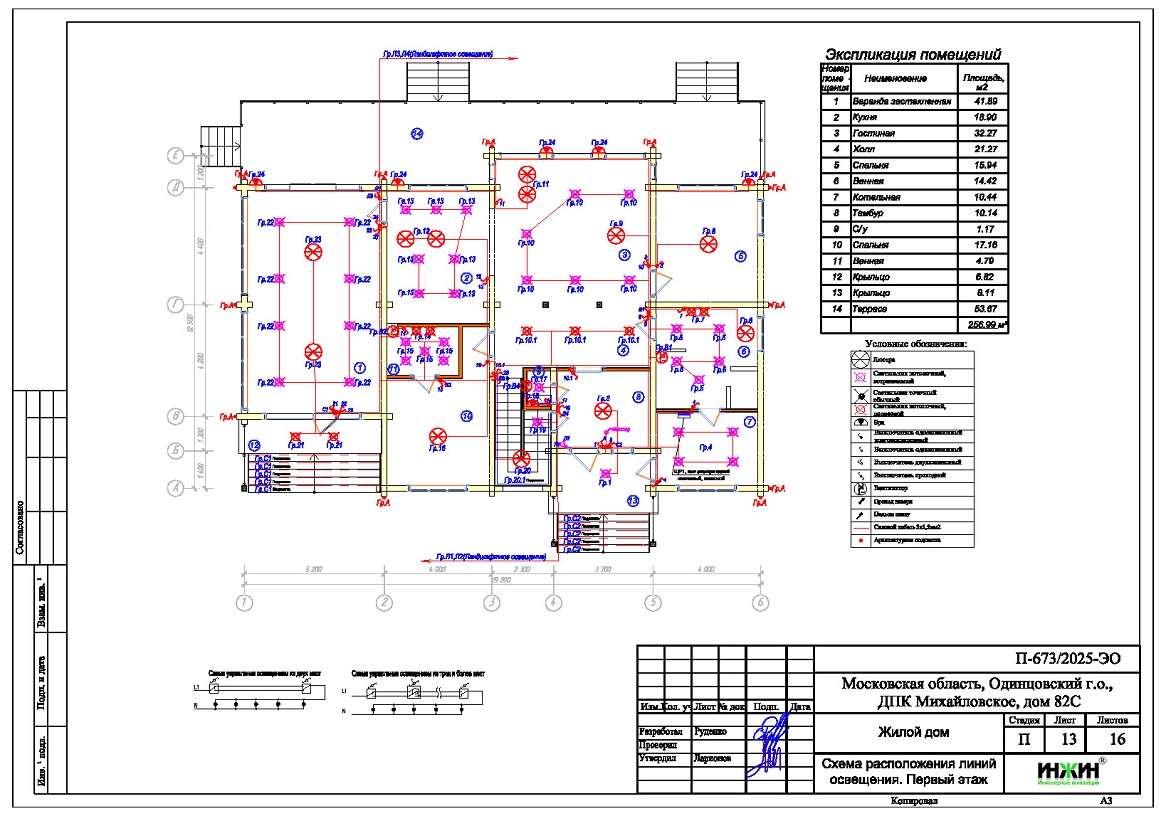
4. Чертежи групповых осветительных сетей дома в ДПК Михайловское Одинцовского г.о.
5. Спецификация материалов и оборудования по электрике и электропроводке дома в ДПК Михайловское Одинцовского г.о.
Объем проекта электрики дома 401 м.кв.: 16 листов.
Проект электрики дома площадью 401 м.кв. в ДПК Михайловское Одинцовского г.о.- подробное описание.
Расчетные показатели по электроснабжению и освещению дома в ДПК Михайловское Одинцовского г.о.
o Расчетная электрическая мощность дома составила 14,38 кВт, с учетом коэффициента спроса 0,4, принятого согласно СП 256.1325800.2016;
o При расчете учтено силовое оборудование: септик, газовый котел, скважинный насос, кондиционеры.
Распределительные электрические щиты дома площадью 401 м.кв.
o Проектом предусмотрено два распределительных электрических щита, по одному на этаж;
o Автоматические выключатели, дифференциальные автоматы, рубильники и УЗО в щитах – ABB, в количестве 43 шт. размещены в пристраиваемом корпусе.
Силовая кабельная сеть (электропроводка) дома в ДПК Михайловское Одинцовского г.о.
o Электропроводка дома предусмотрена с использованием кабелей ВВГ нг -LS с медными жилами в ПВХ-оболочке (не поддерживает горение);
o Общая протяженность линий электроснабжения и освещения – 2330 метров, вводная кабельная линия - бронированный кабель 280 метров;
o Электропроводка предусмотрена скрытым способом, в конструкции пола и стен помещений;
o Запроектировано 320 точек подключения розеток и выключателей освещения в доме;
o Предусмотрены слаботочные линии телевидения и ЛВС, общая протяженность - 170 метров.
Система резервного электропитания предусмотрена с использованием однофазного инвертора CyberPower CPS 3500 PRO с АКБ.



















