Новости компании
Разработан проект отопления для дома 436 м.кв.
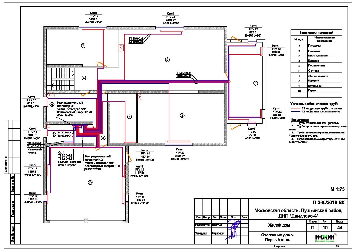
Для загородного дома из газосиликатных блоков (утеплитель - минвата 100мм), площадью 436 м.кв., расположенного в ДНП "Данилово" Пушкинского района Московской области, разработан проект котельной, отопления, водоснабжения и канализации, в котором, по заданию Заказчика, предусмотрены следующие основные технические решения:
- Вариант котельной и отопления «Базовый», с автоматикой, встроенной в напольный газовый котел;
- Теплогенератор размещен в помещении котельной 1-го этажа дома, использован напольный газовый одноконтурный конденсационный котел Vaillant ecoVIT/5, мощностью 48 кВт;
- Предусмотрено два контура теплоснабжения – отопление дома и горячее водоснабжение, для которого предусмотрен накопительный бойлер Vaillant uniSTOR, объемом 200 литров;
- Расход тепла на отопление дома, в соответствие с выполненным тепловым расчетом отопления, составил 32,22 кВт (удельные теплопотери 73,1 Вт/м.кв.);
- Отопление и водоснабжение дома спроектировано по двухтрубной, коллекторно-лучевой схеме, трубопроводы из сшитого полиэтилена Rehau;
- Приборы для системы отопления - стальные панельные радиаторы Kermi с нижним подключением;
- Водоснабжение в доме предусмотрено по коллекторно-лучевой схеме, с рециркуляцией горячей воды через водяные полотенцесушители;
- Внутренняя канализация безнапорная, отвод стоков от санитарно-технических приборов предусмотрен в септик.
Стоимость проекта отопления водоснабжения и канализации - 60 842 руб. со скидкой 10%, проект котельной бесплатно, объем проекта отопления 44 листа.

Заказать проект отопления и водоснабжения загородного дома.
27 февраля 2019 года
- Информация о материале
- Просмотров: 2543














