Выполненные проекты
Отопление, проект для дома 436 м.кв. в Московской области
Объект: частный дом из газосиликатных блоков, площадью 436 м.кв., расположенный в ДНП Данилово Пушкинского района Московской области
Цена проекта котельной, отопления, канализации и водоснабжения: 60 842 руб. со скидкой 10%.
Проект котельной, отопления, водоснабжения и канализации выполнен: 22.02.2019
Состав проекта котельной, отопления, канализации и водоснабжения дома в ДНП "Данилово":
1. Пояснительная записка проекта, общие данные по системам отопления, канализации и водоснабжения дома 436 м.кв. в Московской области.
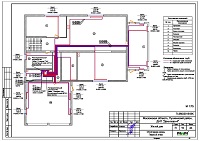
2. Тепломеханическая схема котельной с размещением оборудования в помещении 1-го этажа дома в ДНП "Данилово".
3. Комплект поэтажных чертежей радиаторного отопления дома 436 м.кв.
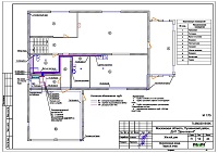
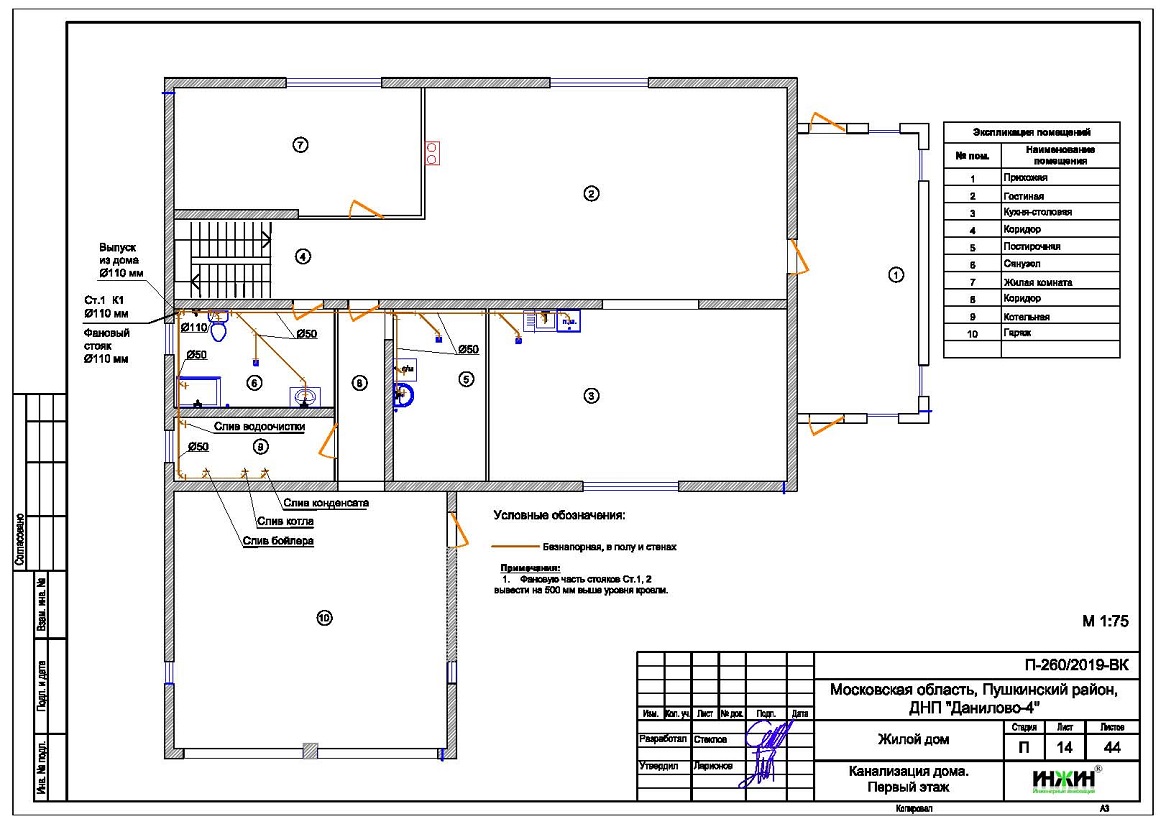
4. Комплект чертежей водоснабжения и канализации частного дома из газосиликатных блоков.
5. Типовые схемы системы отопления канализации и водоснабжения.
6. Теплотехнический расчет отопления дома из газосиликатных блоков.
7. Спецификация материалов и оборудования по котельной, отоплению, канализации и водоснабжения дома в Московской области.
Объем проекта отопления, канализации и водоснабжения: 44 листа.
Описание проекта отопления, котельной, канализации и водоснабжения частного дома 436 м.кв. в ДНП "Данилово".
Котельная частного дома в ДНП "Данилово" (проект котельной бесплатно).
o Размещена в помещении 1-го этажа дома 436 м.кв.;
o Котел отопления - напольный газовый конденсационный Vaillant ecoVIT/5, мощностью 48 кВт;
o Контуры теплоснабжения котельной – радиаторное отопление дома и горячее водоснабжение, для которого предусмотрен накопительный бойлер Vaillant uniSTOR, объемом 200 литров;
o Расширительные баки отопления и бойлера Flamco, объемом 50 и18 литров;
o Циркуляционные насосы отопления и бойлера Grundfos, использованы энергоэффективные насосы UPM3 Hybrid (в составе насосных групп), аналог насосов серии Alpha;
o Дымоудаление принудительное, комплект коаксиального дымохода диаметром 80/125мм, исполнение "через стену";
o Распределительный коллектор - настенный - модуль Meibes Combimix;
o Автоматика котельной – встроена в котел.
Автоматизация котельной, отопления и теплого пола (вариант «Базовый») - автоматика встроена в котел отопления.
Отопление дома из газосиликатных блоков (проект отопления дома в ДНП "Данилово").
o Выполнен теплотехнический расчет отопления дома из газосиликатных блоков (утеплитель - минвата 100мм), с учетом теплопотерь через ограждающие конструкции при наружной температуре -28°С для Московской области (по СП 131.13330.2012), расчетный расход тепла на отопление дома составил 32,22 кВт, удельные теплопотери 73,1 Вт/м.кв.;
o Подобраны приборы для отопления дома: стальные панельные радиаторы Kermi с нижним подключением;
o Схема радиаторного отопления дома двухтрубная, коллекторно-лучевая, с принудительной циркуляцией теплоносителя и температурным графиком 80/60°С;
o Трубы отопления из сшитого полиэтилена Rehau;
o Теплоизоляция трубопроводов отопления Энергофлекс, толщиной 9мм;
o Теплоноситель в системе радиаторного отопления – подготовленная вода.
Водяной теплый пол проектом не предусмотрен.
Внутренний водопровод (проект водоснабжения).
o Схема внутреннего водоснабжения – коллекторная, с рециркуляцией горячей воды через водяные полотенцесушители;
o Трубопроводы системы водоснабжения – сшитый полиэтилен Rehau;
o Теплоизоляция трубопроводов Энергофлекс Супер, толщиной 9мм;
o Для летнего водопровода предусмотрено четыре наружных крана Meibes SEPP-Eis с защитой от замерзания (не требующий слива в зимний период).
Внутренняя канализация (проект канализации).
o Безнапорная, отвод стоков от санитарно-технических приборов предусмотрен в септик;
o Предусмотрены сантехнические трапы в санузлах, постирочной, кухне и котельной.



















