Новости компании
Разработан проект отопления для дома 175 м.кв.
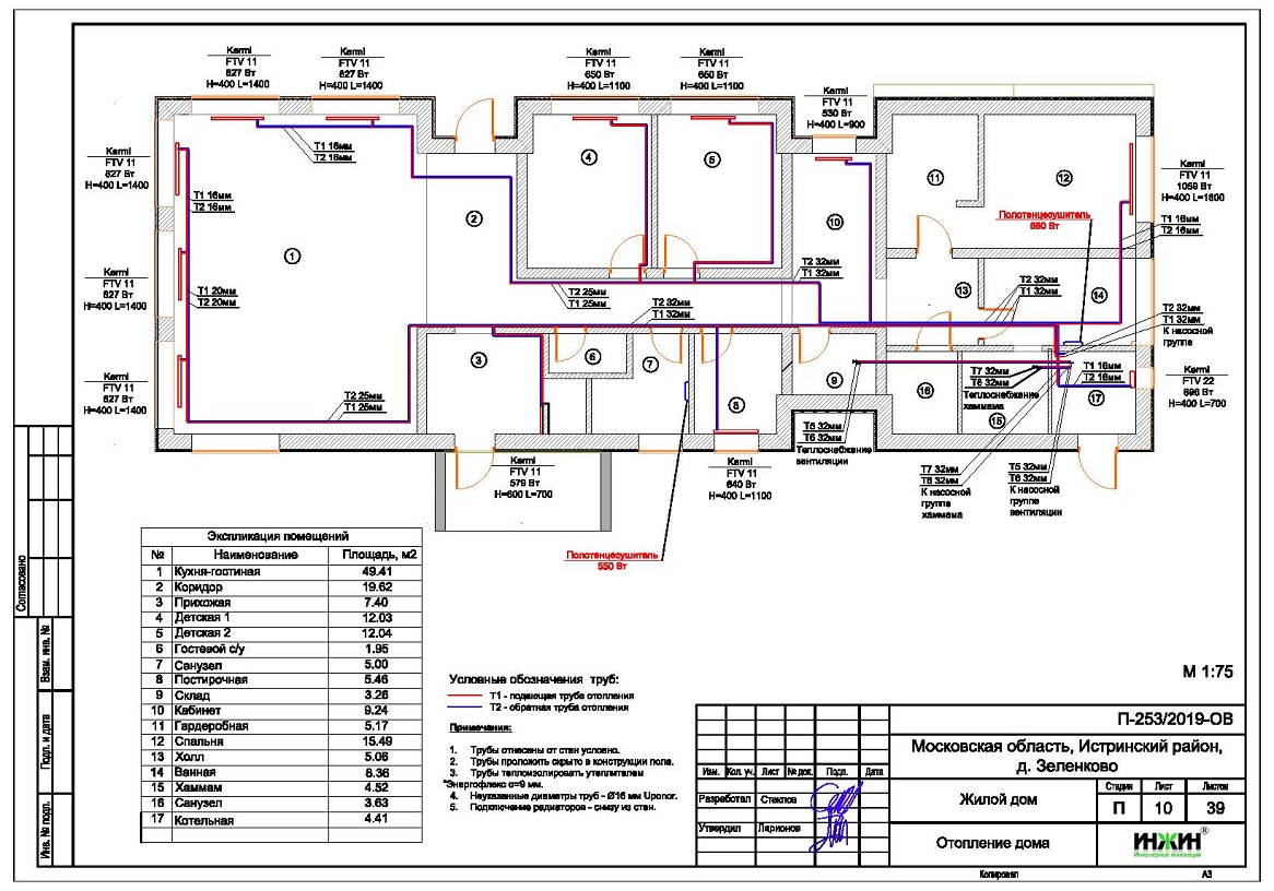
Для загородного дома со стенами из газобетонных блоков (утеплитель пола дома - пеностекольный щебень 200мм), общей площадью 175 м.кв., расположенного в дер. Зеленково Истринского района Московской области, разработан проект котельной, отопления, теплого пола, водоснабжения и канализации, в котором, по заданию Заказчика, предусмотрены следующие основные технические решения:
- Вариант котельной и отопления «Комфортный», с дополнительными блоками автоматики и GSM-модулем ZONT для дистанционного переключения режимов работы котельной ("Комфорт"/"Эконом");
- Предусмотрено два котла, которые размещены в помещении котельной 1-го этажа дома, основной котел - настенный газовый Vaillant turboTEC plus, мощностью 28 кВт, резервный котел - настенный электрический Vaillant eloBLOCK, мощностью 9 кВт;
- Предусмотрено пять контуров теплоснабжения – радиаторное отопление, теплый пол, контур приточно-вытяжной вентиляции, контур теплоснабжения хаммама и контур накопительного бойлера Vaillant uniSTOR, объемом 200 литров;
- Выполнен расчет отопления, расход тепла на отопление дома составил 17,61 кВт, удельные теплопотери 102,3 Вт/м.кв.;
- Отопление и водоснабжение дома в дер. Зеленково предусмотрено по двухтрубной схеме с трубопроводами из сшитого полиэтилена Uponor;
- Приборы для системы отопления дома - стальные панельные радиаторы Kermi с нижним подключением;
- Водяной теплый пол в доме предусмотрен на площади 161 м.кв., регулирование температуры теплого пола автоматикой котельной;
- Водоснабжение в доме предусмотрено по коллекторно-лучевой схеме, с рециркуляцией горячей воды через водяные полотенцесушители;
- Внутренняя канализация безнапорная, отвод стоков от санитарно-технических приборов предусмотрен в септик с разделением сточных вод от унитазов и остальных приборов. Использованы раструбные трубы Синикон.
Стоимость проекта отопления водоснабжения и канализации дома в дер. Зеленково - 32 713 руб. со скидкой 10%, проект котельной бесплатно, объем проекта отопления 39 листов.

Заказать проект отопления и водоснабжения загородного дома.
22 марта 2019 года
- Информация о материале
- Просмотров: 2475














