Новости компании
Выполнен проект отопления для дома 171 м.кв.
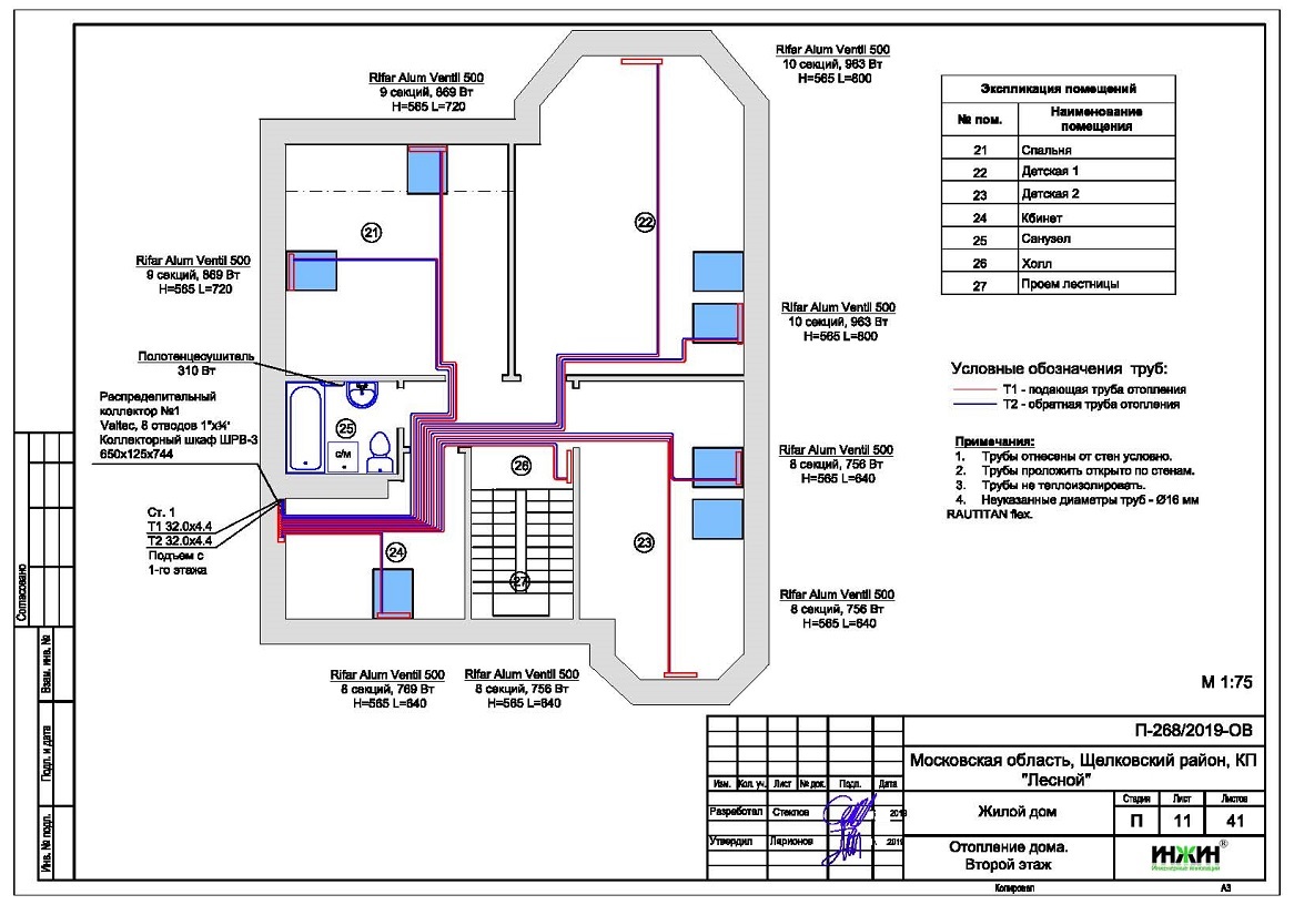
Для загородного дома со стенами из щелевого кирпича (утеплитель стен дома - плиты из пенополистирола 100мм), общей площадью 171 м.кв., расположенного в КП "Лесной" Щелковского района Московской области, разработан проект котельной, отопления, теплого пола, водоснабжения и канализации, в котором, по заданию Заказчика, предусмотрены следующие основные технические решения:
- Вариант котельной и отопления «Комфортный», с блоком автоматики и GSM-модулем ZONT для контроля работы котла и дистанционного переключения режимов работы котельной ("Комфорт"/"Эконом");
- Предусмотрен напольный газовый котел Protherm Медведь 40 КLОM мощностью 35 кВт, который размещен в помещении котельной 1-го этажа дома;
- Предусмотрено три контура теплоснабжения – радиаторное отопление, теплый пол и контур загрузки накопительного бойлера Drazice, объемом 150 литров;
- Выполнен расчет отопления, расход тепла на отопление дома составил 14,69 кВт, удельные теплопотери 85,8 Вт/м.кв.;
- Отопление и водоснабжение дома в КП "Лесной" предусмотрено по коллекторно-лучевой схеме с трубопроводами из сшитого полиэтилена Rehau;
- Приборы для системы отопления дома - алюминиевые секционные радиаторы Rifar ALUM VENTIL 500 с нижним подключением;
- Водяной теплый пол в доме предусмотрен на площади 65 м.кв., регулирование температуры теплого пола автоматикой котельной;
- Водоснабжение в доме предусмотрено с рециркуляцией горячей воды через водяные полотенцесушители, выполнен расчет 18-ти точек внутреннего водопровода;
- Внутренняя канализация безнапорная, отвод стоков от санитарно-технических приборов предусмотрен в септик, выполнен расчет 11-ти точек канализации.
Стоимость проекта отопления водоснабжения и канализации дома в КП "Лесной" - 26 233 руб. со скидкой 10%, проект котельной бесплатно, объем проекта отопления 41 лист.

Заказать проект отопления и водоснабжения загородного дома.
15 апреля 2019 года
- Информация о материале
- Просмотров: 2894














