Новости компании
Разработан проект отопления для дома в дер. Легчищево
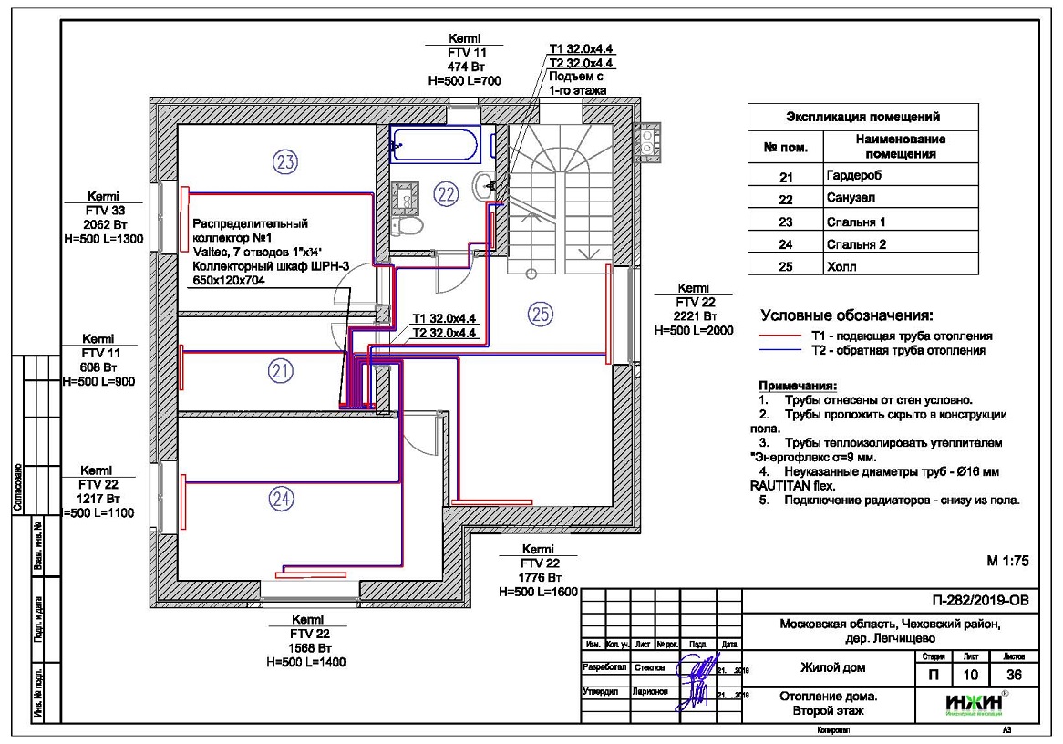
Для частного дома со стенами из газобетонных блоков (утеплитель кровли дома - плиты из минваты 250мм), общей площадью 178 м.кв., расположенного в дер. Легчищево Чеховского района Московской области, разработан проект котельной, отопления, канализации и водоснабжения, в котором, по заданию Заказчика, предусмотрены следующие основные технические решения:
- Вариант котельной и отопления «Базовый», без теплого пола с автоматикой котельной, встроенной в газовый котел;
- Предусмотрено два настенных котла - основной, настенный газовый котел Baxi, мощностью 31 кВт, резервный- электрический котел ZOTA MK (мини-котельная), мощностью 12 кВт;
- Предусмотрено два контура теплоснабжения – радиаторное отопление и контур накопительного бойлера Drazice, объемом 200 литров;
- Выполнен расчет отопления, расход тепла на отопление дома составил 24,27 кВт, удельные теплопотери 160,9 Вт/м.кв.;
- Отопление и водоснабжение дома в дер. Легчищево предусмотрено по двухтрубной, коллекторно-лучевой схеме с трубопроводами из сшитого полиэтилена Rehau;
- Приборы для системы отопления дома - стальные панельные радиаторы KERMI с нижним подключением;
- Водяной теплый пол в доме не предусмотрен;
- Водоснабжение в доме предусмотрено с рециркуляцией горячей воды через полотенцесушители, выполнен расчет 18-ти точек внутреннего водопровода и 13-ти точек канализации.
Стоимость проекта отопления и водоснабжения дома в дер. Легчищево - 24 030 руб. со скидкой 10%, проект котельной бесплатно, объем проекта отопления 36 листов.
Подробное описание выполненного проекта котельной, отопления, канализации и водоснабжения частного дома в дер. Легчищево.
Заказать проект отопления и водоснабжения загородного дома.
29 июля 2019 года
- Информация о материале
- Просмотров: 1819















