Новости компании
Разработан проект электрики для каркасного дома 122 м.кв.
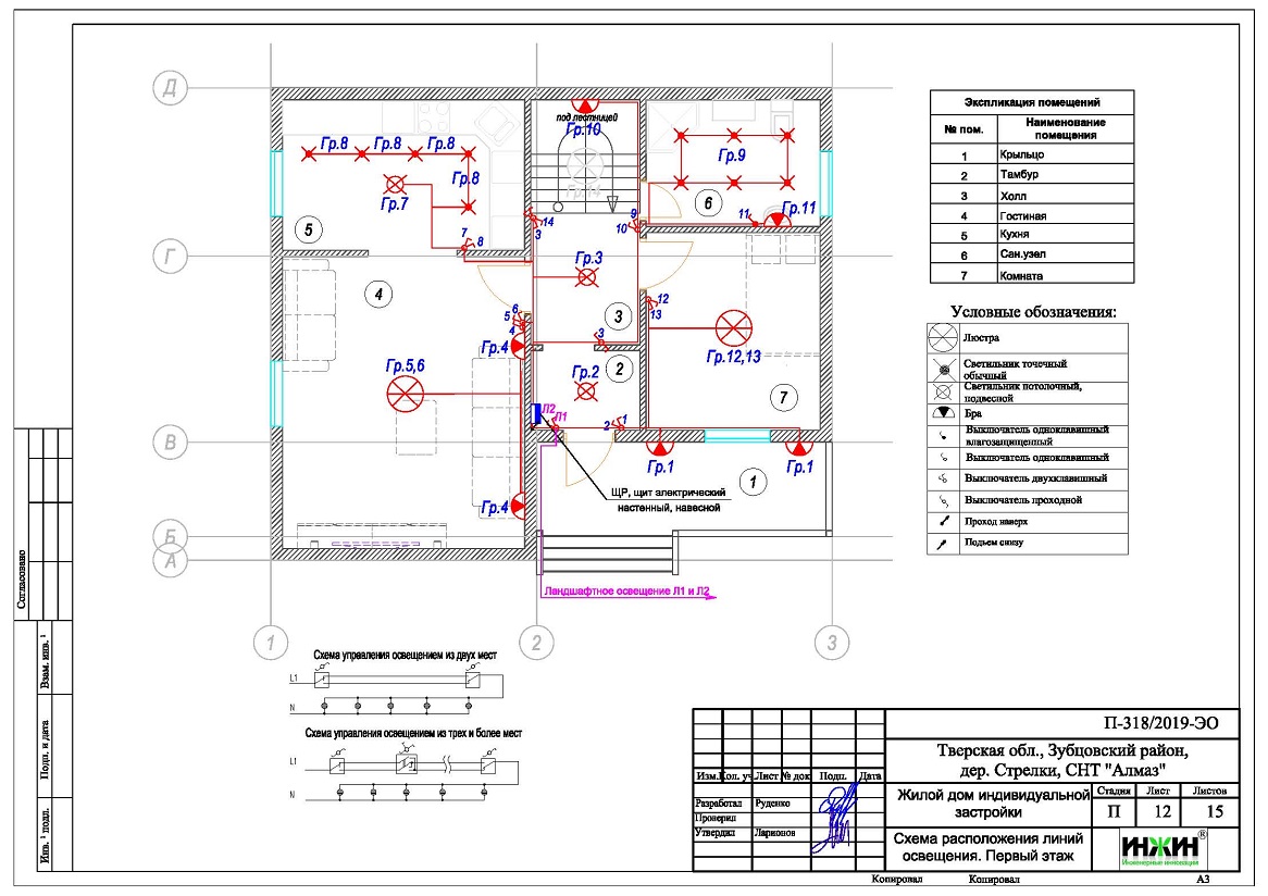
Разработан проект электрики (электропроводки) для каркасного дома площадью 122 кв.м., расположенного в СНТ "Алмаз" Зубцовского района Тверской области.
Проект электрики дома в СНТ "Алмаз" содержит следующие технические решения:
- Выполнен расчет схемы электроснабжения, электрическая мощность дома составила 14,13 кВт, с учетом коэффициента спроса 0,5, принятого согласно СП 256.1325800.2016;
- Автоматические выключатели (УЗО) в количестве 28 шт., которые размещены в распределительном щите ABB;
- Электропроводка предусмотрена скрытым способом в конструкции пола и каркаса стен дома;
- Общая протяженность скрытой электропроводки 715 метров;
- Предусмотрено стабилизированное и резервное электропитание дома при помощи однофазного стабилизатора напряжения Штиль R2000 и дизельного генератора Mitsui Power ECO 5000 VA.
Цена проекта электрики – 10 431 руб. со скидкой 10%, объем проекта – 15 листов.
Подробное описание выполненного проекта электрики каркасного дома в СНТ "Алмаз".

20 декабря 2019 года
- Информация о материале
- Просмотров: 2686














