Новости компании
Разработан проект отопления для дома 329 м.кв.
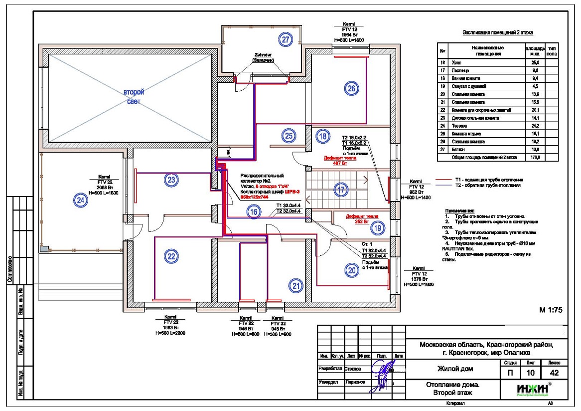
Для частного дома со стенами из газосиликатных блоков (утеплитель кровли дома - плиты из минваты 150мм), общей площадью 329 м.кв., расположенного в г. Красногорск Московской области, разработан проект котельной, отопления и теплого пола, в котором, по заданию Заказчика, предусмотрены следующие основные технические решения:
- Вариант котельной и отопления «Комфортный+», с водяным теплым полом и дополнительной автоматикой котельной;
- Предусмотрен один теплогенератор - настенный газовый котел Vaillant, мощностью 36 кВт;
- Предусмотрено четыре контура теплоснабжения – радиаторное отопление 1-го и 2-го этажей, теплый пол и горячее водоснабжение (подключение к коллектору котельной);
- Выполнен расчет отопления, расход тепла на отопление дома составил 29,88 кВт, удельные теплопотери 90,7 Вт/м.кв.;
- Отопление дома в Красногорске предусмотрено по двухтрубной коллекторно-лучевой схеме с трубопроводами из сшитого полиэтилена Rehau;
- Приборы для системы отопления дома - стальные панельные радиаторы KERMIс нижним подключением, стальные трубчатые радиаторы Arbonia и встроенные в пол конвекторы Varmann;
- Водяной теплый пол в доме предусмотрен на площади 150 м.кв., 17 петель.
Стоимость проекта отопления и теплого пола дома в Красногорске - 35 425 руб. со скидкой 10%, проект котельной бесплатно, объем проекта отопления 42 листа.
Подробное описание выполненного проекта котельной и отопления частного дома в Красногорске.
Заказать проект отопления частного дома.
24 марта 2020 года
- Информация о материале
- Просмотров: 1641














