Выполненные проекты
Отопление дома 329 м.кв. в Красногорске, проект
Объект: двухэтажный частный дом из газосиликатных блоков, общей площадью 329 м.кв. в г. Красногорск Московской области
Вариант отопления: «Комфортный+»
Цена проекта отопления, канализации и водоснабжения: 35 425 руб. со скидкой 10%, проект котельной - бесплатно.
Проект котельной и отопления дома в г . Красногорск выполнен: 20.03.2020
Состав проекта котельной и отопления дома в Красногорске:
1. Пояснительная записка проекта, общие данные по системам отопления и теплого пола дома 329 м.кв. в Московской области.
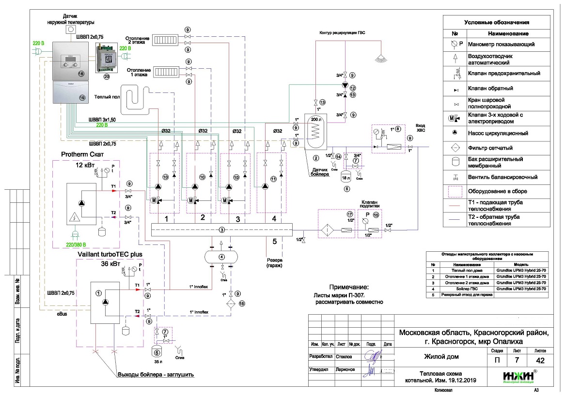
2. Тепломеханическая схема котельной с размещением оборудования в помещении 1-го этажа дома.
3. Комплект поэтажных чертежей радиаторного отопления дома в Красногорске.
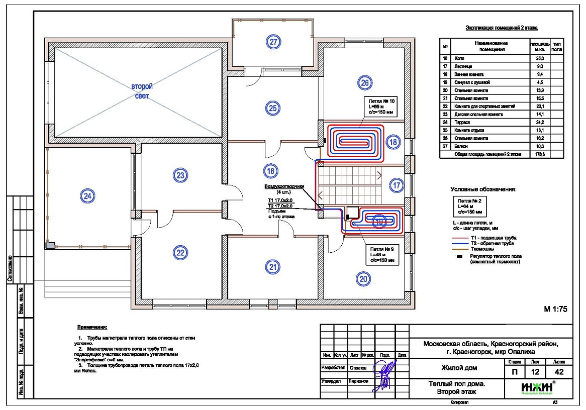
4. Комплект чертежей теплого пола дома на площади 150 м.кв.
5. Типовые схемы системы отопления дома из газосиликатных блоков 329 м.кв.
6. Теплотехнический расчет отопления дома из газосиликатных блоков площадью 329 м.кв.
7. Спецификация материалов и оборудования по котельной и отоплению дома в Красногорске.
Объем проекта отопления и котельной дома 329 м.кв.: 42 листа.
Описание проекта отопления и котельной частного дома из газосиликатных блоков в Красногорске.
Котельная частного дома в Красногорске(проект котельной бесплатно).
o Размещена в помещении 1-го этажа дома;
o Теплогенератор котельной - настенный газовый котел Vaillant, мощностью 36 кВт (с комплектом перенастройки для работы на сжиженном газе);
o Контуры теплоснабжения котельной – радиаторное отопление 1 и 2-го этажей дома, теплый пол и горячее водоснабжение, для которого предусмотрен накопительный бойлер Vaillant, объемом 300 литров (подключение к магистральному коллектору);
o Расширительные баки отопления и бойлера Flamco, объемом 35 и 25 литров;
o Циркуляционные насосы отопления, теплого пола и бойлера Grundfos, использованы энергоэффективные насосы UPM3 Hybrid (в составе насосных групп), аналог насосов серии Alpha;
o Дымоудаление газового котла принудительное, дымоход коаксиальный, комплект Vaillant для прохода через стену, диаметр 60/100 мм;
o Распределительный коллектор - настенный Meibes с насосными группами;
o Автоматика котельной – блок автоматики calorMATIC 630/3 со смесительным модулем VR 60, задатчиком-регулятором температуры в помещении VR 90/3 и дополнительным GSM-модулем ZONT.
Автоматизация котельной, отопления и теплого пола (вариант «Комфортный»).
o Автоматическое регулирование отопления по наружной температуре (погодное регулирование, при помощи блока автоматики);
o Дистанционный контроль и управление работой газового котла отопления при помощи GSM-модуля и мобильного приложения ZONT.
Отопление дома в Красногорске (проект отопления частного дома).
o Выполнен теплотехнический расчет отопления дома из газосиликатных блоков (утеплитель кровли - минеральная вата 150мм, стен - минвата 100мм) с учетом теплопотерь через ограждающие конструкции при наружной температуре -28°С для Московской области (по СП 131.13330.2012), а также теплоотдачи теплого пола (в помещениях, где он предусмотрен), расчетный расход тепла на отопление составил 29,88 кВт, удельные теплопотери 90,7 Вт/м.кв.;
o Подобраны приборы для отопления дома: стальные панельные радиаторы KERMI, стальные трубчатые радиаторы Arbonia и встроенные в пол конвекторы Varmann;
o Схема радиаторного отопления дома двухтрубная, коллекторно-лучевая, с принудительной циркуляцией теплоносителя и температурным графиком 80/60°С, коллекторы отопления Rehau, на 7 и 10 отводов;
o Трубы отопления из сшитого полиэтилена Rehau;
o Теплоизоляция трубопроводов отопления Энергофлекс, толщиной 9мм;
o Теплоноситель в системе радиаторного отопления дома – подготовленная вода, предусмотрены средства защиты от образования накипи.
Водяной теплый пол дома в Красногорске (проект теплого пола).
o Водяной теплый пол в доме предусмотрен на площади 150 м.кв., коллекторы теплого пола Valtec - на 8 и 9 отводов;
o Предусмотрен отдельный контур котельной для теплоснабжения водяного теплого пола (насосная группа);
o Трубопроводы теплого пола – сшитый полиэтилен Rehau, основание для укладки - плиты ENERGOFLOOR PIPELOCK (Энергофлекс);
o Регулирование температуры теплого пола - локальное, комнатными терморегуляторами.
По этому проекту выполнен монтаж котельной, системы отопления, водоснабжения и канализации для дома в Красногорске
.



















