Новости компании
Разработан проект отопления дома в Тверской области
Для частного дома со стенами из газобетона (утеплитель кровли - минеральная вата Rockwool, 250мм, стен - плиты из пенополистирола 100мм), общей площадью 166 м.кв., расположенного в Тверской области, разработан проект котельной, отопления, канализации и водоснабжения, в котором, по заданию Заказчика, предусмотрены следующие основные технические решения:
- Вариант котельной и отопления «Комфортный», с водяным теплым полом и автоматикой котельной - встроенной в котел с дополнительным GSM-модулем;
- Предусмотрен настенный газовый котел Vaillant, мощностью 24 кВт;
- Предусмотрено три контура теплоснабжения – радиаторное отопление дома, горячее водоснабжение и водяной теплый пол;
- Выполнен расчет отопления, расход тепла на отопление дома составил 14,16 кВт, удельные теплопотери 85,2 Вт/м.кв.;
- Отопление дома в Тверской области предусмотрено по двухтрубной коллекторно-лучевой схеме с трубопроводами из сшитого полиэтилена Rehau;
- Приборы для системы отопления дома - стальные панельные радиаторы KERMIс нижним подключением;
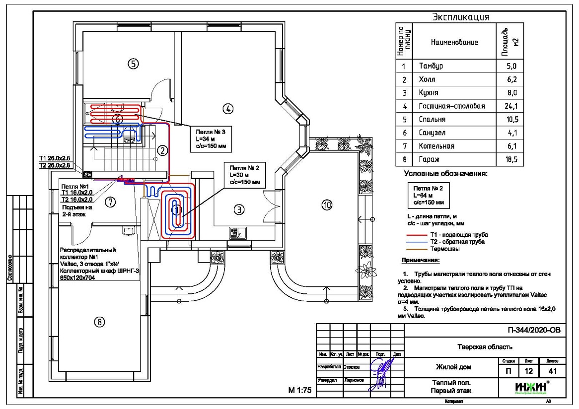
- Водяной теплый пол в доме предусмотрен на площади 22 м.кв. (3 контура);
- Выполнен расчет 23-х точек внутреннего водоснабжения и 13-ти точек канализации.
Стоимость проекта отопления и водоснабжения дома в Тверской области - 20 889 руб. со скидкой 10%, проект котельной бесплатно, объем проекта отопления 41 лист.
Подробное описание выполненного проекта котельной, отопления, канализации и водоснабжения частного дома в Тверской области.
Заказать проект отопления частного дома дистанционно.
11 декабря 2020 года
- Информация о материале
- Просмотров: 2379














