Выполненные проекты
Отопление дома 166 м.кв. в Тверской области, проект
Объект: двухэтажный загородный дом из газобетонных блоков, площадью 166 м.кв., расположенный в Тверской области.
Вариант отопления: «Комфортный»
Цена проекта отопления, канализации и водоснабжения: 20 889 руб. со скидкой 10%, проект котельной - бесплатно.
Проект котельной, отопления, водоснабжения и канализации выполнен: 10.12.2020
Состав проекта котельной, отопления, канализации и водоснабжения дома в Тверской области:
1. Пояснительная записка проекта, общие данные по системам отопления, канализации и водоснабжения дома 166 м.кв. в Тверской области.
2. Тепломеханическая схема котельной с размещением оборудования в отдельном помещении дома из газобетонных блоков.
3. Комплект поэтажных чертежей радиаторного отопления дома в Тверской области.
4. Комплект чертежей теплого пола на площади 22 м.кв.
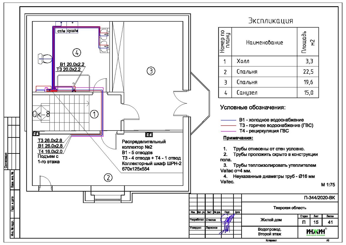
5. Комплект чертежей водоснабжения и канализации частного дома из газобетонных блоков в Тверской области.
6. Типовые схемы системы отопления канализации и водоснабжения дома 166 м.кв.
7. Теплотехнический расчет отопления дома из газобетонных блоков.
8. Спецификация материалов и оборудования по котельной, отоплению, канализации и водоснабжению дома в Тверской области.
Объем проекта отопления, канализации и водоснабжения дома в Тверской области: 41 лист.
Описание проекта отопления, котельной, канализации и водоснабжения частного дома 166 м.кв. в Тверской области.
Котельная частного дома в Тверской области(проект котельной бесплатно).
o Размещена в отдельном помещении дома 166 м.кв.;
o Теплогенератор - настенный газовый котел Vaillant, мощностью 24 кВт;
o Контуры теплоснабжения котельной – радиаторное отопление дома, теплый пол и горячее водоснабжение, для которого предусмотрен накопительный бойлер Vaillant uniSTOR, объемом 150 литров (подключение к котлу);
o Расширительные баки отопления и бойлера Flamco, объемом 18 литров каждый;
o Дымоудаление принудительное, дымоход коаксиальный, комплект Vaillant для прохода через стену, диаметр 60/100 мм;
o Распределительный коллектор не предусмотрен;
o Автоматика котельной – встроена в котел с дополнительным GSM-модулем.
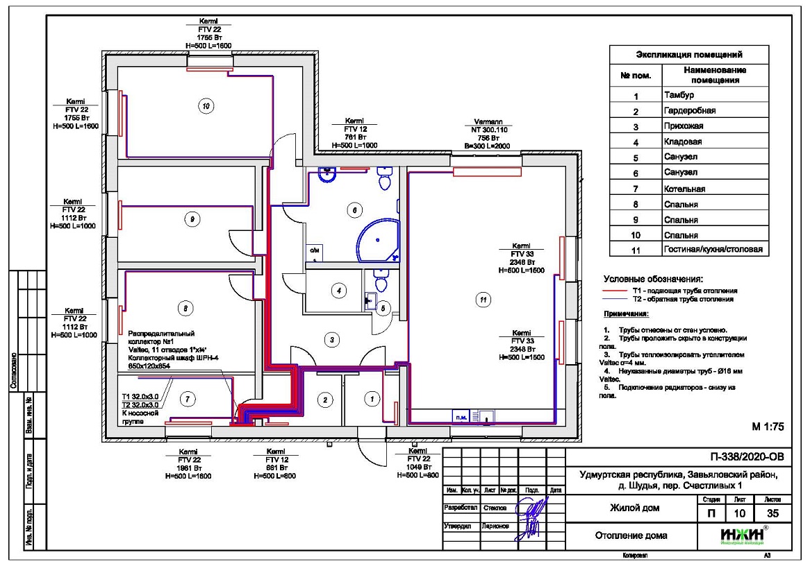
Отопление дома в Тверской области (проект отопления дома).
o Выполнен теплотехнический расчет отопления дома из газобетонных блоков (утеплитель кровли - минеральная вата Rockwool, 250мм, стен - плиты из пенополистирола 100мм) с учетом теплопотерь через ограждающие конструкции при наружной температуре -29°С для Тверской области (по СП 131.13330.2012), расчетный расход тепла на отопление дома составил 14,16 кВт, удельные теплопотери 85,2 Вт/м.кв.;
o Подобраны приборы для отопления дома: стальные панельные радиаторы KERMI с нижним подключением, в вентильном исполнении;
o Схема радиаторного отопления дома двухтрубная, коллекторно-лучевая, с принудительной циркуляцией теплоносителя и температурным графиком 80/60°С;
o Трубы отопления из сшитого полиэтилена Rehau;
o Теплоизоляция трубопроводов отопления Энергофлекс, толщиной 9мм;
o Теплоноситель в системе радиаторного отопления дома – подготовленная вода, предусмотрены средства защиты от образования накипи.
Водяной теплый пол дома в Тверской области (проект теплого пола).
o Водяной теплый пол в доме предусмотрен на площади 22 м.кв., коллектор теплого пола Valtec на 3 петли;
o Предусмотрен насосно-смесительный узел для теплоснабжения водяного теплого пола дома (VT.COMBI, с термоголовкой и насосом Valtec 25/6-180);
o Трубопроводы теплого пола – сшитый полиэтилен Rehau;
o Регулирование температуры теплого пола - общее, термоголовкой на смесительном узле.
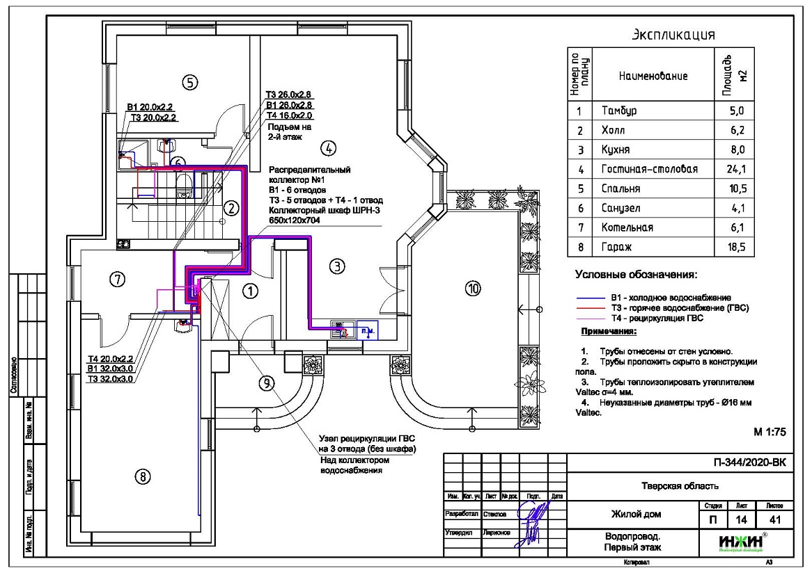
Внутренний водопровод дома в Тверской области (проект водоснабжения).
o Схема внутреннего водоснабжения дома – коллекторно-лучевая с рециркуляцией горячей воды через водяные полотенцесушители, выполнен расчет 23-х точек водоснабжения и полотенцесушителей;
o Трубопроводы системы водоснабжения – из сшитого полиэтилена Rehau;
o Теплоизоляция трубопроводов Энергофлекс Супер, толщиной 9мм;
o Для летнего водопровода предусмотрен незамерзающий кран Meibes SEPP-Eis.
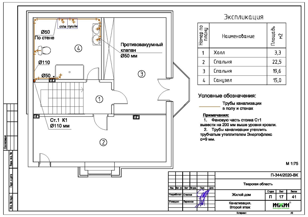
Внутренняя канализация (проект канализации) дома в Тверской области.
o Безнапорная, отвод стоков от санитарно-технических приборов предусмотрен в септик;
o Произведен расчет 13-ти точек бытовой канализации;
o Канализационные трубы Синикон, раструбные, из полипропилена.






















