Новости компании
Разработан проект отопления дома в Вологодской области
Для частного дома со стенами из газобетонных блоков (утеплитель кровли дома - плиты из минваты 350мм), общей площадью 215 м.кв., расположенного в дер. Ирдоматка, Череповецкого района Вологодской области, разработан проект котельной, отопления, канализации и водоснабжения, в котором, по заданию Заказчика, предусмотрены следующие основные технические решения:
- Вариант котельной и отопления «Комфортный», с водяным теплым полом и автоматикой котельной - контроллером отопления ZONT-Climatic 1.2 со встроенным GSM-модулем;
- Предусмотрено два котла отопления - основной, настенный газовый котел Protherm Пантера, мощностью 28 кВт, резервный- электрический котел Protherm Скат, мощностью 6 кВт;
- Предусмотрено три контура теплоснабжения – радиаторное отопление, теплый пол и горячее водоснабжение с коллектором Meibes;
- Выполнен расчет отопления, расход тепла на отопление дома составил 19,68 кВт, удельные теплопотери 91,1 Вт/м.кв.;
- Отопление дома предусмотрено по двухтрубной коллекторно-лучевой схеме с трубопроводами из сшитого полиэтилена Rehau;
- Приборы для системы отопления дома - дизайн-радиаторы SAVVA Chinook с нижним подключением и горизонтальные конвекторы SAVVA DRH;
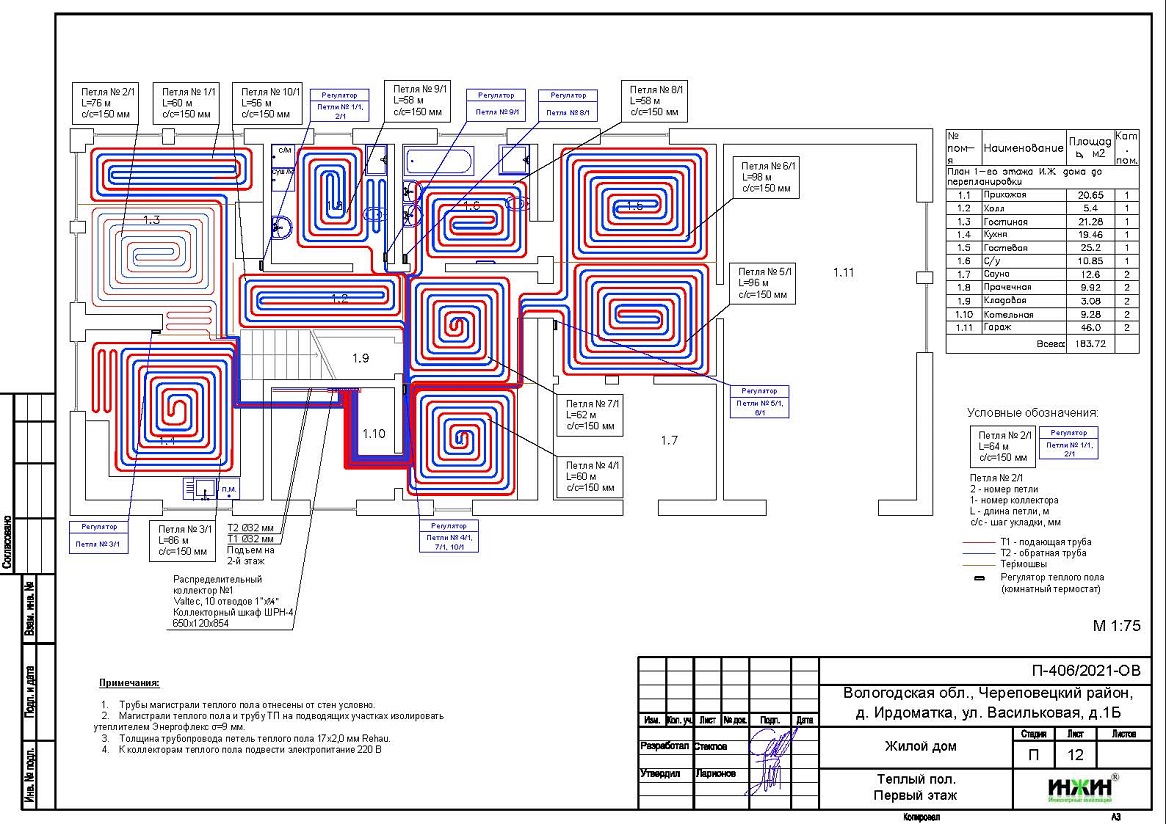
- Водяной теплый пол в доме предусмотрен на площади 112 м.кв., 15 петель;
- Выполнен расчет 32-х точек внутреннего водоснабжения и 20-и точек бытовой канализации.
Стоимость проекта отопления, канализации и водоснабжения дома в дер. Ирдоматка Вологодской области -52 569 руб. со скидкой 10%, проект котельной бесплатно, объем проекта отопления 43 листа.
Подробное описание выполненного проекта котельной, отопления и водоснабжения частного дома в дер. Ирдоматка Вологодской области.
Заказать проект отопления частного дома дистанционно.
15 июня 2021 года
- Информация о материале
- Просмотров: 1937














