Новости компании
Разработан проект электрики для дома в дер. Глядково
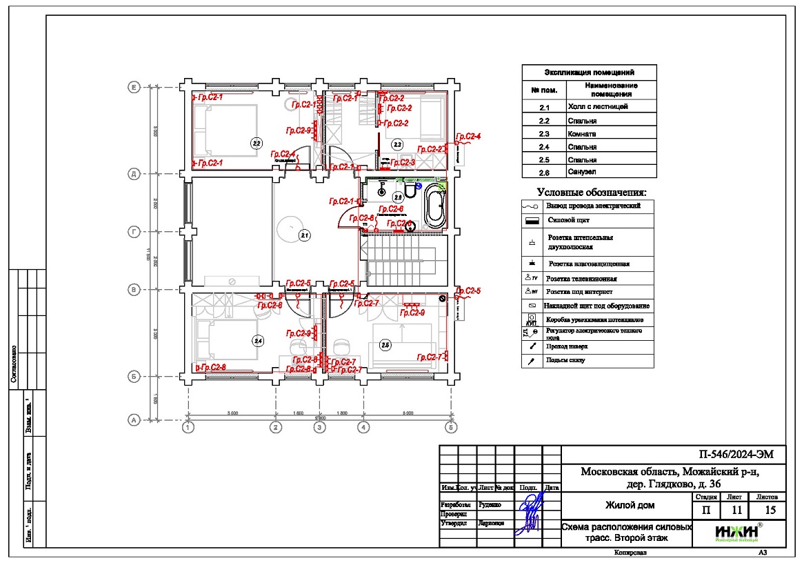
Разработан проект электрики (электропроводки) для деревянного дома площадью 136 м.кв., расположенного в дер. Глядково.
Проект электрики деревянного дома в дер. Глядковосодержит следующие технические решения:
- Выполнен расчет схемы электроснабжения, электрическая мощность дома составила 14,77 кВт, с учетом коэффициента спроса 0,5, принятого согласно СП 256.1325800.2016;
- Автоматические выключатели (УЗО) в количестве 33 шт., которые размещены в распределительном щите ABB;
- Электропроводка предусмотрена скрытым и открытым способом в стенах (на стенах) и в полу помещений дома;
- Общая протяженность скрытой электропроводки 1117 метров, слаботочных линий - 148 метров.
Цена проекта электрики – 16 279 руб. со скидкой 10%, объем проекта – 15 листов.
Подробное описание выполненного проекта электрики дома в дер. Глядково.
Заказать проект электрики частного дома дистанционно.
16 апреля 2024 года
- Информация о материале
- Просмотров: 3954















