Выполненные проекты
Электропроводка деревянного дома 136 м.кв., проект
Объект: деревянный дом (брус) общей площадью 136 м.кв., расположенный в дер. Глядково Можайского района Московской области
Цена (стоимость) проекта электрики (электропроводки): 16 279 руб. со скидкой 10%, проект слаботочных кабельных линий - бесплатно.
Проект электрики выполнен: 15.04.2024
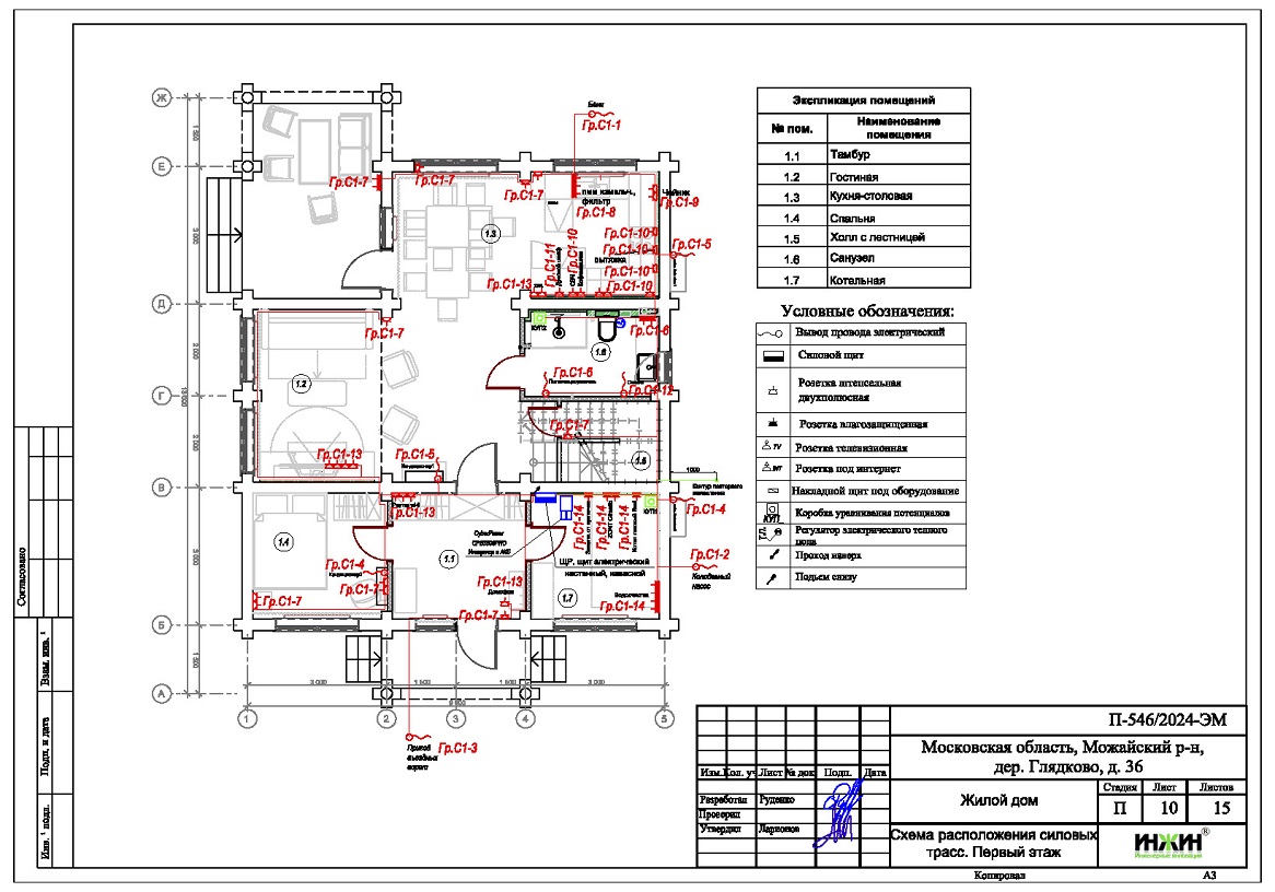
Состав проекта электрики дома в дер. Глядково:
1. Пояснительная записка. Общие данные по электроснабжению и освещению частного дома в дер. Глядково.
2. Однолинейные схемы вводного распределительного устройства и электрического распределительного щита дома 136 м.кв.
3. Чертежи электропроводки дома в дер. Глядково.
4. Чертежи групповых осветительных сетей дома в дер. Глядково.
5. Спецификация материалов и оборудования по электрике и электропроводке дома в дер. Глядково.
Объем проекта электрики дома 136 м.кв.: 15 листов.
Проект электрики дома площадью 136 м.кв. в дер. Глядково- подробное описание.
Расчетные показатели по электроснабжению и освещению дома в дер. Глядково.
o Расчетная электрическая мощность дома составила 14,77 кВт, с учетом коэффициента спроса 0,5, принятого согласно СП 256.1325800.2016;
o При расчете учтено силовое оборудование: септик, газовый котел, колодезный насос, кондиционеры.
Распределительные электрические щиты дома площадью 136 м.кв.
o Проектом предусмотрен один распределительный электрический щит, расположенный в техническом помещении;
o Автоматические выключатели, дифференциальные автоматы, рубильники и УЗО в щитах – ABB, в количестве 33 шт. размещены в пристраиваемом корпусе.
Силовая кабельная сеть (электропроводка) дома в дер. Глядково.
o Электропроводка дома предусмотрена с использованием кабелей ВВГ нг -LS с медными жилами в ПВХ-оболочке (не поддерживает горение);
o Общая протяженность линий электроснабжения и освещения – 1117 метров, вводная кабельная линия - бронированный кабель 8 метров;
o Электропроводка предусмотрена открытым способом, в кабель-каналах;
o Запроектировано 120 точек подключения розеток и выключателей освещения в доме;
o Предусмотрены слаботочные линии телевидения, общая протяженность - 148 метров.
Предусмотрена система резервного электропитания с использованием однофазного инвертора CyberPower CPS 3500 PRO с АКБ.
Запроектировано применения технологии удобства - дистанционного открывания въездных ворот, калитки и включения освещения входной группы при помощи одного радиобрелка.
Заказать проект электрики деревянного дома дистанционно.
Для этого дома в дер. Глядково выполнен проект отопления.



















