Новости компании
Выполнен проект отопления для дома в СНТ "Андреевское-1"
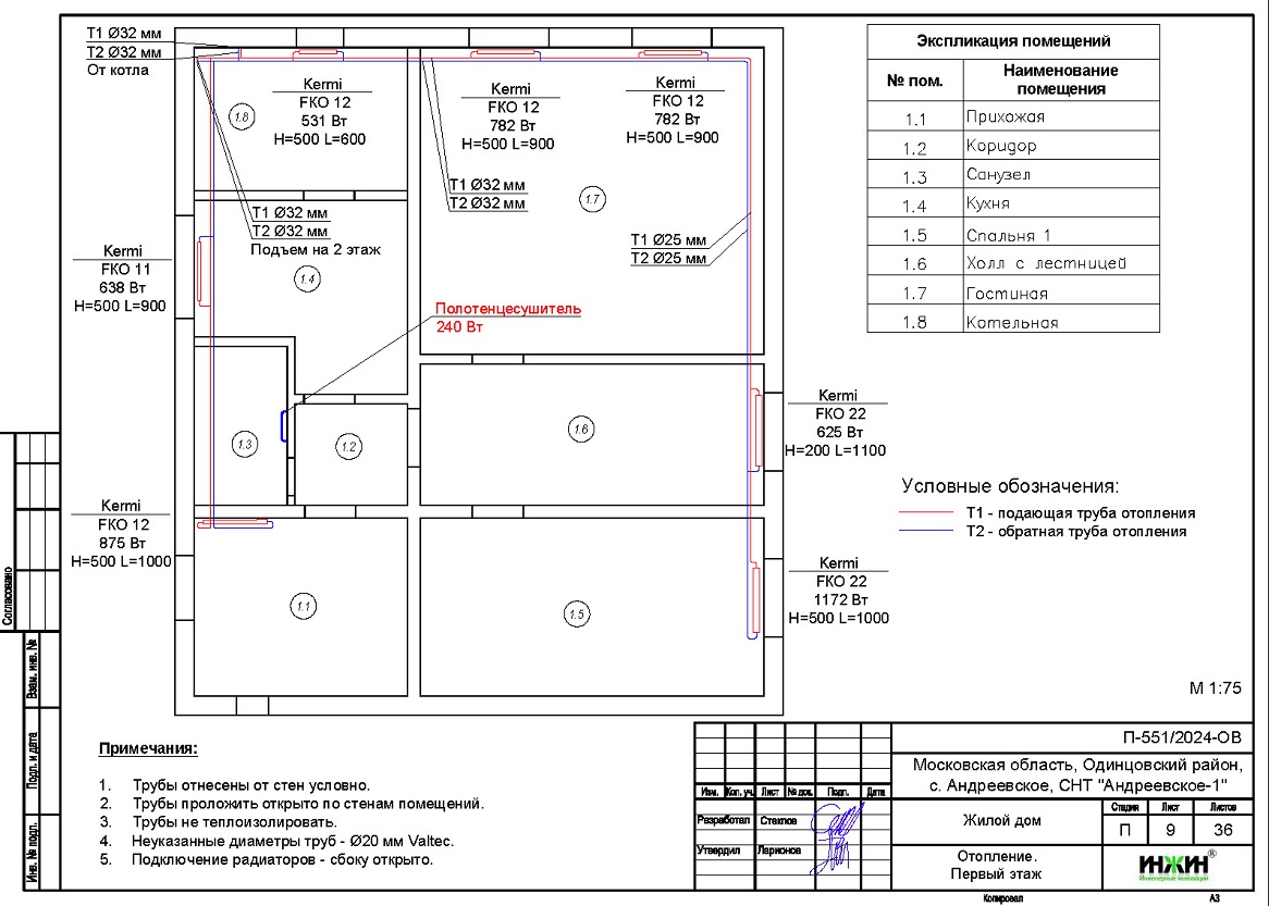
Для загородного каркасного дома (утеплитель стен, пола и кровли - минвата 150 мм), площадью 157 м.кв., расположенного в СНТ "Андреевское-1" Одинцовского района Московской области, выполнены проекты отопления, канализации и водоснабжения.
В проекте отопления и водоснабжения, по заданию Заказчика, предусмотрены следующие основные технические решения:
- Вариант отопления «Комфортный», с системой управления котельной ZONT CONNECT+ со встроенным GSM-модулем для удаленного управления при помощи мобильного приложения;
- Индивидуальная котельная с настенным газовым котлом BAXI Eco Life мощностью 24 кВт;
- Контуры теплоснабжения дома – 2 шт. (отопление и горячее водоснабжение);
- Выполнен расчет отопления, расход тепла на отопление составил - 10,04 кВт, удельные теплопотери 64,1 Вт/м.кв.;
- Отопление и водоснабжение дома в СНТ "Андреевское-1" предусмотрены по двухтрубной схеме, с трубопроводами из полипропилена Valtec;
- Приборы для системы отопления дома - стальные панельные радиаторы Kermi с боковым подключением;
- Водяной теплый пол проектом не предусмотрен;
- Водоснабжение предусмотрено с рециркуляцией горячей воды через полотенцесушители, выполнен расчет 17-ти точек внутреннего водопровода и 8-ми точек бытовой канализации.
Стоимость проекта отопления и водоснабжения дома в СНТ "Андреевское-1"- 25 293 руб. со скидкой 10%, проект котельной бесплатно, объем проекта 36 листов.

19 апреля 2024 года
- Информация о материале
- Просмотров: 4047














