Новости компании
Проект электрики разработан для дома в Сыктывкаре
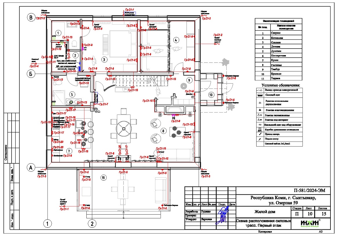
Разработан проект электрики (электропроводки) для дома площадью 203 м.кв., расположенного в г. Сыктывкар, Республика Коми.
Проект электрики дома в г. Сыктывкар, Республика Комисодержит следующие технические решения:
- Выполнен расчет схемы электроснабжения, электрическая мощность дома составила 20,25 кВт, с учетом коэффициента спроса 0,65, принятого согласно СП 256.1325800.2016;
- Автоматические выключатели (УЗО) в количестве 36 шт., которые размещены в распределительном щите ABB;
- Электропроводка предусмотрена скрытым способом в стенах и полу помещений дома;
- Общая протяженность скрытой электропроводки 1 050 метров, слаботочных линий - 140 метров.
Цена проекта электрики – 19 184 руб. со скидкой 10%, объем проекта – 15 листов.
Подробное описание выполненного проекта электрики дома в г. Сыктывкар, Республика Коми.
Заказать проект электрики частного дома в Республике Коми дистанционно.
29 июля 2024 года
- Информация о материале
- Просмотров: 3519















