Новости компании
Выполнен проект отопления каркасного дома в Домодедово
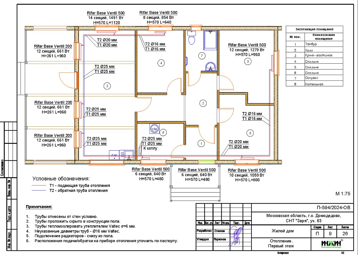
Для загородного каркасного дома (утеплитель стен, пола и кровли - минвата 200 мм), площадью 96 м.кв., расположенного в СНТ "Заря" Домодедовского района Московской области, выполнены проекты котельной и отопления.
В проекте отопления, по заданию Заказчика, предусмотрены следующие основные технические решения:
- Вариант отопления «Базовый», с системой управления котельной, встроенной в котел и дополнительным регулятором ZONT CONNECT+;
- Индивидуальная котельная с настенным электрическим котлом BAXIмощностью 9 кВт;
- Контуры теплоснабжения дома – только отопление;
- Выполнен расчет отопления, расход тепла на отопление составил - 7,78 кВт, удельные теплопотери 92,0 Вт/м.кв.;
- Отопление и водоснабжение дома в СНТ "Заря" (Домодедово) предусмотрены по двухтрубной схеме, с трубопроводами из полиэтилена Valtec;
- Приборы для системы отопления дома - секционные биметаллические радиаторы RIFAR BASE с нижним подключением;
- Водяной теплый пол проектом не предусмотрен.
Стоимость проекта отопления дома в СНТ "Заря" (Домодедово)- 13 306 руб. со скидкой 10%, проект котельной бесплатно, объем проекта 27 листов.
Подробное описание выполненного проекта отопления каркасного дома 96 м.кв. в СНТ "Заря" (Домодедово).

24 июля 2024 года
- Информация о материале
- Просмотров: 3545














