Новости компании
Разработаны проекты инженерных систем дома из бруса
Для загородного дома со стенами из бруса (утеплитель кровли - базвата 150 мм), площадью 66 м.кв., расположенного в дер. Цибино, Воскресенского района Московской области, разработаны проекты внутренних инженерных систем: электрики, котельной и отопления.
В проекте отопления, по заданию Заказчика, предусмотрены следующие основные технические решения:
- Вариант отопления «Базовый», с контроллером ZONT CONNECT+со встроенным GSM-модулем;
- Индивидуальная котельная с настенным электрическим котлом BAXI, мощностью 12 кВт;
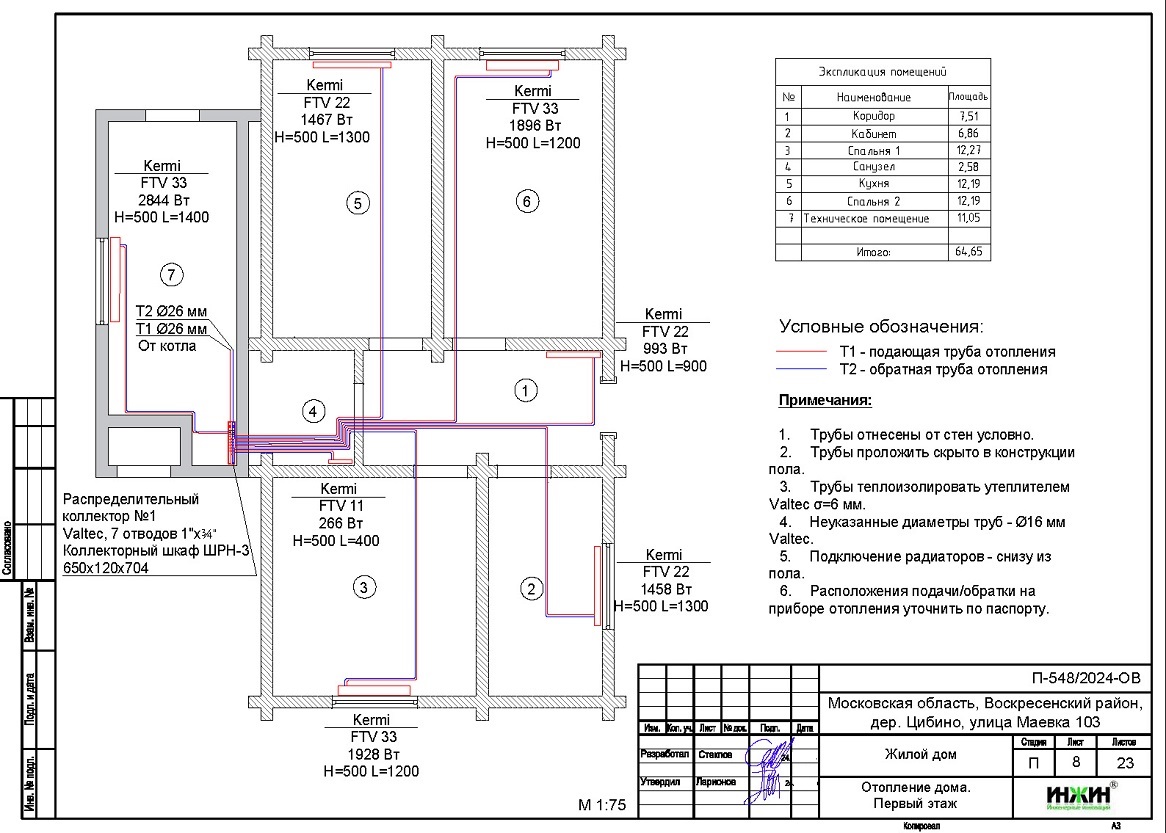
- Контуры теплоснабжения дома – радиаторное отопление дома;
- Выполнен расчет отопления, расход тепла на отопление составил - 10,8 кВт, удельные теплопотери 167,1;
- Отопление дома в дер. Цибино предусмотрены по коллекторно-лучевой схеме, с трубопроводами из сшитого полиэтилена Valtec;
- Приборы для системы отопления дома - стальные панельные радиаторы Kermi с нижним подключением, водяной теплый пол проектом не предусмотрен.
Стоимость проекта отопления дома в дер. Цибино- 5 049 руб. со скидкой 10%, проект котельной бесплатно, объем проекта 23 листа.
Подробное описание выполненного проекта отопления частного дома 66 м.кв. в дер. Цибино.

Проект электрики дома в дер. Цибиносодержит следующие технические решения:
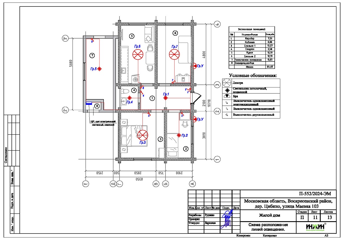
- Выполнен расчет схемы электроснабжения, электрическая мощность дома составила 14,63 кВт, с учетом коэффициента спроса 0,5, принятого согласно СП 256.1325800.2016;
- Автоматические выключатели (УЗО) в количестве 15 шт., которые размещены в распределительном щите ABB;
- Электропроводка предусмотрена открытым способом - в кабель-каналах;
- Общая протяженность электропроводки 430 метров;
- Резервное электропитание дома предусмотрено на базе однофазного инвертора CyberPower CPS 1500 PRO с АКБ.
Цена проекта электрики – 7 900 руб. со скидкой 10%. Объем проекта электрики – 13 листов.
Подробное описание выполненного проекта электрики дома в дер. Цибино.

Заказать проект электрики частного дома дистанционно.
09 августа 2024 года
- Информация о материале
- Просмотров: 3931














