Новости компании
Разработан проект электрики для дома 390 м.кв.
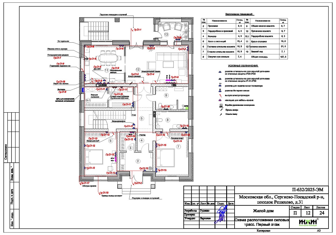
Разработан проект электрики (электропроводки) для газобетонного дома площадью 390м.кв., расположенного в п. Репихово Сергиево-Посадского района Московской области одержит следующие технические решения:
- Выполнен расчет схемы электроснабжения, электрическая мощность дома составила 15,51 кВт, с учетом коэффициента спроса 0,45 принятого согласно СП 256.1325800.2016;
- Автоматические выключатели (УЗО) в количестве 44 шт., которые размещены в двух распределительных щитах ABB;
- Электропроводка предусмотрена скрытым способом на стенах и стяжке пола;
- Общая протяженность электропроводки 1750 метров, слаботочных линий - 1540 метров.
Цена проекта электрики – 50 895руб. со скидкой 10%, объем проекта – 24 листа.
Подробное описание выполненного проекта электрики дома в п. Репихово Сергиево-Посадского района Московской области.
Заказать проект электрики частного дома дистанционно.
28 марта 2025 года
- Информация о материале
- Просмотров: 3963
Поделиться :















