Новости компании
Выполнен проект отопления для дома в Краснодарском крае
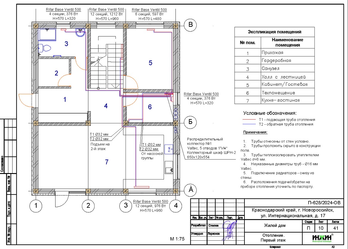
Для загородного дома со стенами из газобетона (утеплитель стен и кровли - минвата 100 и 150мм, соответственном), площадью 173 м.кв., расположенного в г. Новороссийск Краснодарского края, выполнены проекты отопления и водоснабжения.
В проекте отопления и водоснабжения, по заданию Заказчика, предусмотрены следующие основные технические решения:
- Вариант отопления «Комфортный», с системой управления котельной ZONT-Climatic 1.3 со встроенным GSM-модулем для удаленного управления при помощи мобильного приложения;
- Индивидуальная котельная с настенным газовым котлом BAXI, мощностью 24 кВт;
- Контуры теплоснабжения дома – 4 шт. (радиаторное отопление дома, отопление гаража, теплый поли горячее водоснабжение);
- Выполнен расчет отопления, расход тепла на отопление составил - 10,16 кВт, удельные теплопотери 61,4 Вт/м.кв.;
- Отопление и водоснабжение дома в Новороссийске предусмотрены по коллекторно-лучевой схеме, с трубопроводами из сшитого полиэтиленаValtec;
- Приборы для системы отопления дома - секционные биметаллические радиаторы Rifar с нижним подключением;
- Водяной теплый пол проектом предусмотрен на площади 90 м.кв., 8 петель;
- Водоснабжение предусмотрено с рециркуляцией горячей воды через полотенцесушители, выполнен расчет 32-х точек внутреннего водопровода и 13-ти точек бытовой канализации.
Стоимость проекта отопления и водоснабжения дома в Новороссийске- 40 578 руб. со скидкой 10%, проект котельной бесплатно, объем проекта 41 лист.

21 марта2025 года
- Информация о материале
- Просмотров: 3941














