Выполненные проекты
Электрика газобетонного дома в п. Репихово, проект
Объект: газобетонный дом общей площадью 390 м.кв., расположенный в п. Репихово Сергиево-Посадского района Московской области
Цена (стоимость) проекта электрики (электропроводки): 50 895 руб. со скидкой 10%, проект слаботочных кабельных линий - бесплатно.
Проект электрики выполнен: 27.03.2025
Состав проекта электрики дома в п. Репихово:
1. Пояснительная записка. Общие данные по электроснабжению и освещению частного дома в п. Репихово.
2. Однолинейные схемы вводного распределительного устройства и электрического распределительного щита дома 390 м.кв.
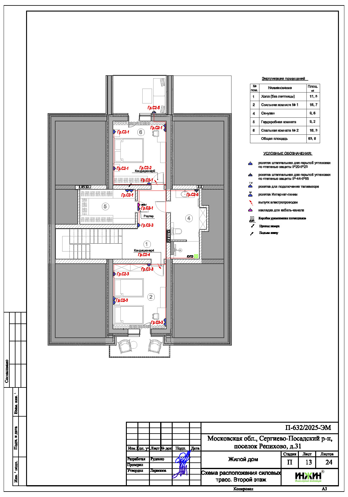
3. Чертежи электропроводки дома в п. Репихово.
4. Чертежи групповых осветительных сетей дома в п. Репихово.
5. Спецификация материалов и оборудования по электрике и электропроводке дома в п. Репихово.
Объем проекта электрики дома 390 м.кв.: 24 листа.
Проект электрики дома площадью 390 м.кв. в п. Репихово- подробное описание.
Расчетные показатели по электроснабжению и освещению дома в п. Репихово.
o Расчетная электрическая мощность дома составила 15,51 кВт, с учетом коэффициента спроса 0,45, принятого согласно СП 256.1325800.2016;
o При расчете учтено силовое оборудование: септик, газовый котел, скважинный насос, кондиционеры.
Распределительные электрические щиты дома площадью 390 м.кв.
o Проектом предусмотрено два распределительных электрических щита, расположенных на каждом этаже;
o Автоматические выключатели, дифференциальные автоматы, рубильники и УЗО в щите – ABB, в количестве 44 шт. размещены во встраиваемых корпусах.
Силовая кабельная сеть (электропроводка) дома в п. Репихово.
o Электропроводка дома предусмотрена с использованием кабелей ВВГ нг -LS с медными жилами в ПВХ-оболочке (не поддерживает горение);
o Общая протяженность линий электроснабжения и освещения – 1750 метров, вводная кабельная линия - бронированный кабель 70 метров;
o Электропроводка предусмотрена скрытым способом, в конструкции пола и стен помещений;
o Запроектировано 224 точки подключения розеток и выключателей освещения в доме;
o Предусмотрены слаботочные линии телевидения ЛВС, общая протяженность - 1540 метров.
Система резервного электропитания предусмотрена с бензиновым генератором по выбору Заказчика.
Запроектировано применение технологии удобства - дистанционного открывания въездных ворот, калитки и включения освещения входной группы при помощи одного радиобрелка.



















