Новости компании
Выполнен проект отопления дома в Свердловской области
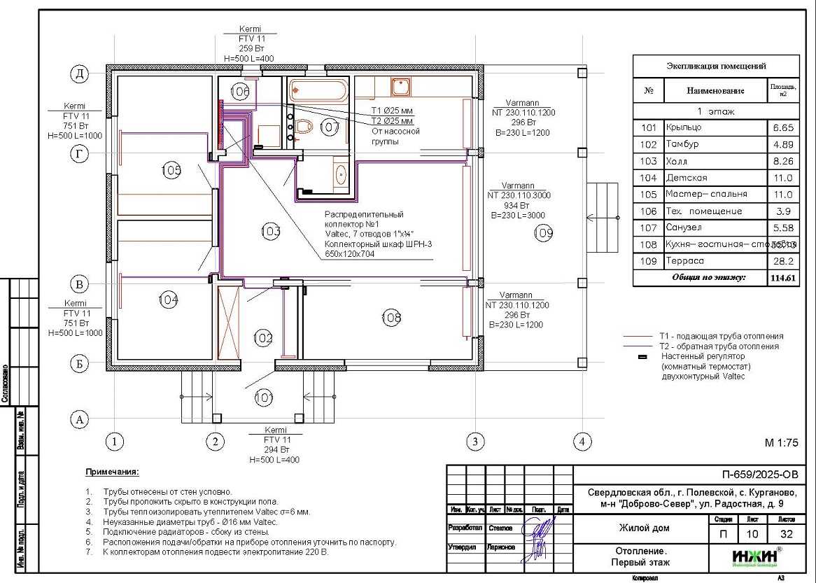
Для загородного дома со стенами из газоблоков (утеплитель стен и кровли дома - каменная вата 200мм), площадью 114 м.кв., расположенного в г. Полевской Свердловской области, разработаны проекты отопления и водоснабжения.
В проекте отопления и водоснабжения, по заданию Заказчика, предусмотрены следующие основные технические решения:
- Вариант отопления «Комфортный+», с системой водяного теплого пола;
- Индивидуальная котельная с основным вводом от ЦТП 4 кВт и настенным электрическим Baxi Ampera, мощностью 9 кВт (резерв);
- Контуры теплоснабжения дома – 3 шт. (радиаторное отопление дома, теплый пол и горячее водоснабжение);
- Выполнен расчет отопления, расход тепла на отопление составил - 6,12 кВт, удельные теплопотери 81,6 Вт/м.кв.;
- Отопление и водоснабжение дома в г. Полевской Свердловской области предусмотрены по коллекторно-лучевой схеме, с трубопроводами из сшитого полиэтилена Valtec;
- Приборы для системы отопления дома - стальные панельные радиаторы Kermi с нижним подключением;
- Водяной теплый пол проектом предусмотрен на площади 79 м.кв., 10 петель.
Стоимость проекта отопления дома в г. Полевской Свердловской области - 28 157 руб. со скидкой 10%, проект котельной бесплатно, объем проекта 32 листа.

03 сентября 2025 года
- Информация о материале
- Просмотров: 5124














