Выполненные проекты
Проект отопления, водоснабжения и канализации дома площадью 302 м.кв. в г.Пущино
![]() |
![]() |
![]() |
![]() |
![]() |
![]() |
Объект: частный дом площадью 302 кв.м. в г. Пущино Московской области
Вариант отопления: «Комфортный+»
Стоимость проекта: 54 820 руб. (проект котельной – бесплатно)
Проект отопления частного дома выполнен: 23.09.2014
Состав проекта отопления, водоснабжения и канализации частного дома:
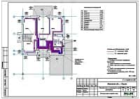
Пояснительная записка. Общие данные по системе отопления частного дома.
Теплотехнический расчет отопления дома.
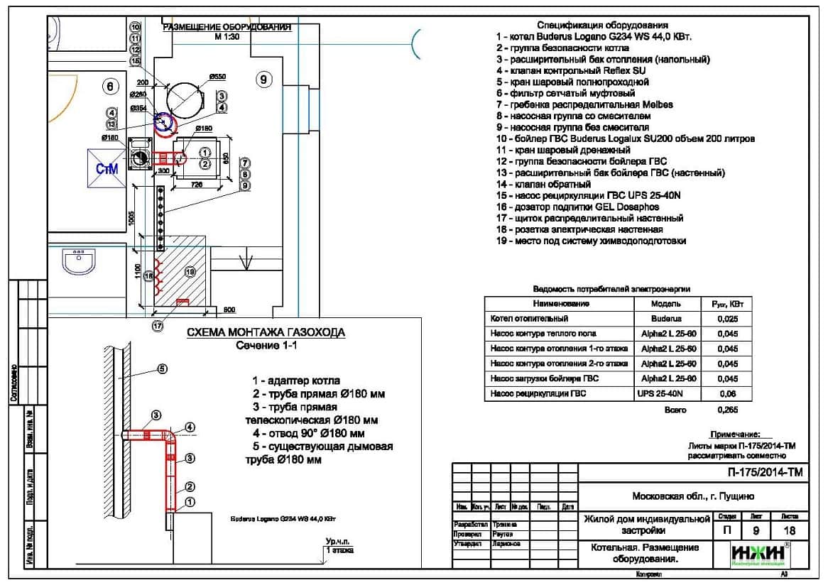
Тепломеханическая схема котельной с размещением оборудования.
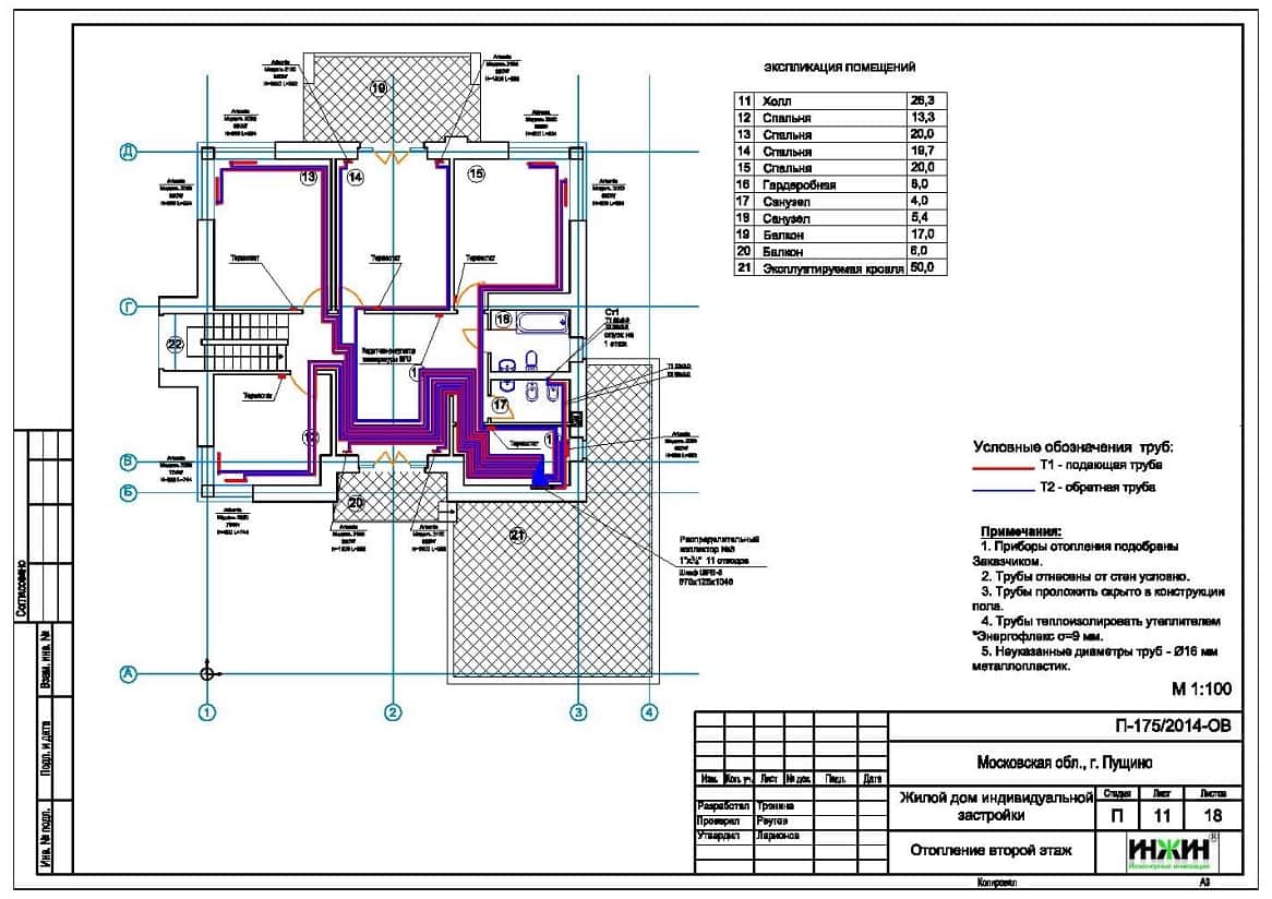
Комплект чертежей радиаторного отопления дома.
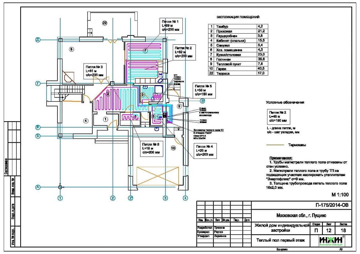
Комплект чертежей теплого пола.
Комплект чертежей внутреннего водопровода и канализации.
Схемы типовых узлов системы отопления.
Спецификация оборудования.
Объем проекта: 43 листа.
Основные решения проекта отопления, водоснабжения и канализации частного дома, в соответствии с заданием Заказчика.
Котельная частного дома (проект котельной бесплатно).
o Применен напольный газовый котел с чугунным теплообменником Buderus Logano G234WS, мощностью 44 кВт;
o Контуры теплоснабжения – 4 шт.: радиаторного отопления первого и второго этажей, теплого пола и бойлера (ГВС);
o Приготовление горячей воды при помощи бойлера Buderus Logalux, объемом 200 литров;
o Расширительные баки отопления и водоснабжения Reflex;
o Насосы отопления и водоснабжения Grundfos;
o Трубы дымоходные из нержавеющей стали Rosinox;
o Распределительные гребенки с насосно-смесительными узлами Meibes, «Поколение 8»;
o Автоматика котельной – Buderus Logamatic 4211 с дополнительными модулями FM442.
Автоматизация (вариант «Комфортный+»).
o Автоматическое регулирование отопления по наружной температуре (погодное регулирование);
o Автоматическое поддержание заданной температуры контуров отопления, теплых полов и горячего водоснабжения;
o Раздельное регулирование температуры (системы отопления) по помещениям дома. Покомнатное регулирование температуры отопления запроектировано при помощи пультов управления, размещаемых в помещениях и исполнительных элементов (сервоприводов), устанавливаемых на соответствующих отводах коллекторных шкафов.
Система отопления частного дома.
o Приборы отопления - стальные панельные конвекторы Kermi FKV с подключением снизу из пола, встроенные в пол конвекторы Kampmann и стальные трубчатые дизайн-радиаторы Arbonia;
o Схема радиаторного отопления двухтрубная, коллекторно-лучевая с принудительной циркуляцией теплоносителя;
o Температурный график отопления 80/60° С;
o Проектом предусмотрено раздельное регулирование температуры отопления по помещениям дома;
o Магистральные и подводящие трубопроводы отопления дома – металлопластик Oventrop.
Водяной теплый пол.
o Трубопроводы теплого пола - металлопластик Oventrop;
o Напольный утеплитель – ячеистый пенополистирол «Формат».
Внутренний водопровод.
o Схема внутреннего водоснабжения – тройниковая тупиковая;
o Трубопроводы системы водоснабжения – металлопластик Oventrop;
o В системе горячего водоснабжения предусмотрена рециркуляция горячей воды;
o Для летнего водопровода использован наружный кран SEPP-Eis (Meibes) с защитой от замерзания.
Внутренняя канализация.
o Предусмотрен безнапорный отвод стоков от санитарно-технических приборов дома;
o Трубопроводы канализации Синикон - раструбные, из полипропилена.
|
|
По этому проекту выполнен монтаж отопления, водоснабжения и канализации |
|
|





















