Выполненные проекты
Проект отопления, водоснабжения и канализации частного дома 250 м.кв. в Московской области
![]() |
![]() |
![]() |
![]() |
![]() |
Объект: загородный дом площадью 250 м.кв. в Раменском районе Московской области
Вариант отопления: «Базовый»
Стоимость проекта: 37 500 руб. (проект котельной – бесплатно)
Проект отопления дома выполнен: 12.02.2015
Состав проекта котельной, отопления, водоснабжения, каналзации:
1. Пояснительная записка. Общие данные по отоплению загородного дома.
2. Теплотехнический расчет отопления.
3. Тепломеханическая схема котельной с размещением оборудования.
4. Комплект чертежей радиаторного отопления жилого дома.
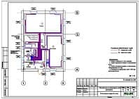
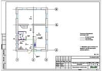
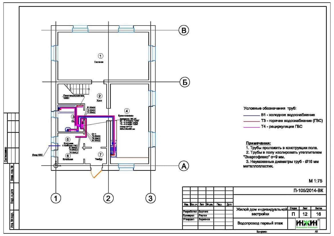
5. Комплект чертежей внутреннего водопровода и канализации жилого дома.
6. Схема системы канализации (аксонометрия).
7. Спецификация материалов и оборудования.
Объем проекта: 38 листов.
Основные проектные решения, в соответствие с заданием Заказчика.
Котельная (проект котельной бесплатно).
o Основной котел - напольный пеллетный со стальным теплообменником Metal Fach SD DUO BIO мощностью 38 кВт;
o Резервный котел – настенный электрический РусНит 209М мощностью 9 кВт;
o Контуры котельной – отопление дома и горячее водоснабжение (бойлер), без магистрального коллектора;
o Приготовление горячей воды запроектировано при помощи комбинированного бойлера DRAZICE OKCE 200 NTR/2,2kW, объемом 200 литров, со встроенным ТЭНом на 2,2 кВт;
o Расширительные баки отопления и водоснабжения Reflex;
o Насосное оборудование Grundfos;
o Трубы дымоходные Rosinox, стальные, двухслойные, в наружном исполнении;
o Автоматика котельной – встроена в основной котел.
Отопление загородного дома.
o Отопление дома радиаторное, использованы панельные радиаторы Kermi с нижней подводкой;
o Схема радиаторного отопления двухтрубная, коллекторная, с принудительной циркуляцией теплоносителя;
o Температурный график отопления 80/60°С;
o Трубопроводы отопления – металлопластик Valtec.
Система теплых полов проектом не предусмотрена.
Система полотенцесушителей.
Источником теплоснабжения полотенцесушителей принят контур рециркуляции бытовой горячей воды. Модели полотенцесушителей в проекте не указывались, в тепловом расчете учитывалась теплоотдача 150 Вт от каждого полотенцесушителя.
Внутренний водопровод.
o Схема внутреннего водоснабжения – коллекторная;
o Трубопроводы системы водоснабжения – металлопластик Valtec;
o В системе горячего водоснабжения предусмотрена рециркуляция горячей воды.
Внутренняя канализация.
o Предусмотрен безнапорный отвод стоков от санитарно-технических приборов;
o Трубопроводы канализации – полипропилен Синикон (Россия).
|
|
По этому проекту выполнен монтаж отопления, водоснабжения и канализации |



















