Выполненные проекты
Проект электрики дома площадью 87 м.кв. в Рязанской области
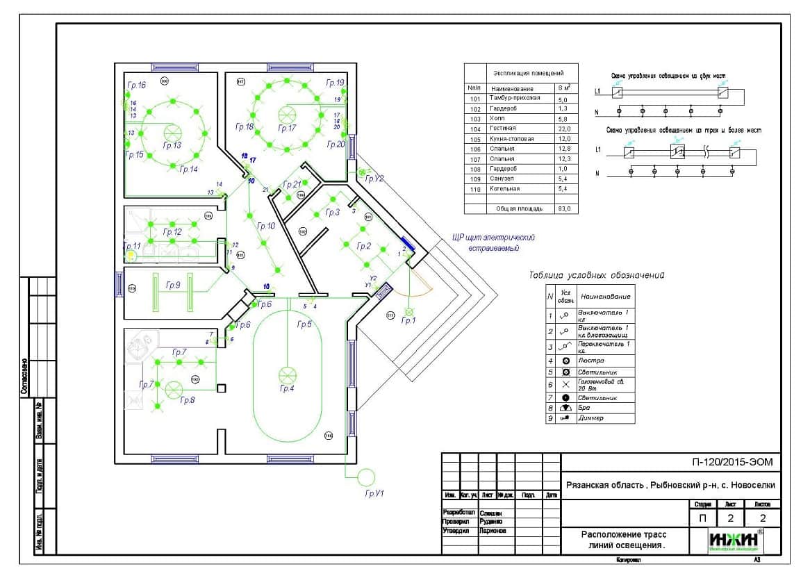
![]() ![]() |
![]() |
Объект: загородный дом площадью 87 кв.м. в Рязанской области
Стоимость проекта: 16 500 руб. (минимальная стоимость проектирования)
Проект электрики выполнен: 26.02.2015
Состав проекта электрики загородного дома:
Пояснительная записка. Общие данные по электроснабжению загородного дома.
Однолинейные схемы вводного распределительного устройства и распределительных щитов.
Поэтажные планы силовых электрических сетей дома.
Поэтажные планы групповых осветительных сетей дома.
Схема контура заземления.
Спецификация материалов и оборудования по системе электроснабжения.
Объем проекта: 12 листов.
Основные технические решения проекта электроснабжения и освещения (электрики), в соответствии с заданием Заказчика.
Электрощит (распределительный электрический щит).
o Проектом предусмотрен ЩР (щит распределительный), оснащенный 18-ю автоматами и контакторами;
o Автоматические выключатели, дифференциальные автоматы и УЗО в щите - Hager;
o Корпус встраиваемого щита - Hager.
Электропроводка (электрическая кабельная сеть).
o Схема прокладки и трассировки электропроводки - классическая, без распаячных коробок, с коммутацией в щите и подрозетных коробках;
o Проектом предусмотрено использование кабелей ВВГ нг -LS (Конкорд) с медными жилами в тройной изоляции;
o Общая протяженность линий электроснабжения и освещения – 1 631 метр;
o Прокладка силовых линий предусмотрена скрытым способом, в ПВХ-гофротрубе и рукаве металлическом.
Стабилизированное питание: для всех потребителей, стабилизатор «Эненгия Ультра» РСН-12000 (10 кВт).
Резервное электропитание: для котельного оборудования, инвертор ПН-100 (1 АКБ).
|
|
По этому проекту выполнен монтаж системы электроснабжения и освещения |
















