Выполненные проекты
Отопление дома площадью 126 м.кв. в Ярославской области
Объект: загородный дом из дерева площадью 126 кв.м. в Ярославской области
Вариант отопления: «Комфортный»
Стоимость проекта отопления: 22 500 руб. (проект котельной – бесплатно)
Проект отопления, водоснабжения и канализации выполнен: 10.03.2015
Состав проекта котельной, отопления, водоснабжения и канализации частного дома:
1. Пояснительная записка. Общие данные по системе отопления, котельной, водопроводу и канализации дома в Ярославской области.
2. Теплотехнический расчет отопления деревянного дома в Ярославской области.
3. Тепломеханическая схема котельной с размещением оборудования.
4. Комплект чертежей радиаторного отопления дома.
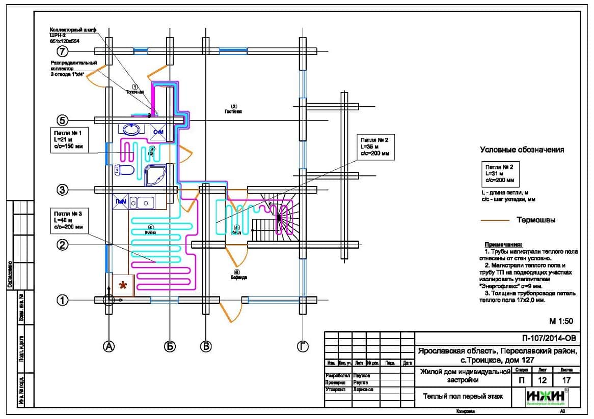
5. Комплект чертежей напольного отопления (теплого пола) дома.
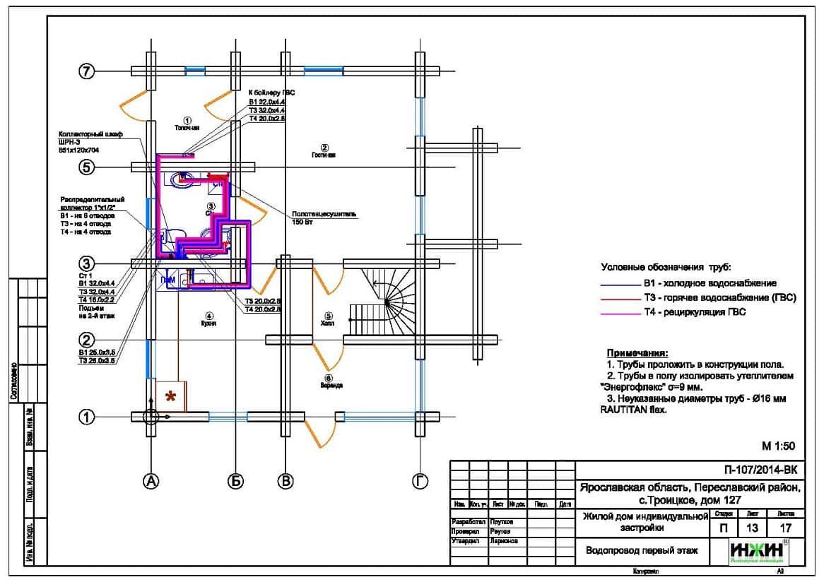
6. Комплект чертежей внутреннего водопровода и канализации жилого дома.
7. Схема системы канализации (аксонометрия).
8. Спецификация материалов и оборудования.
Объем проекта: 34 листа
Описание проекта отопления, водоснабжение и канализации деревянного дома в Ярославской области.
Котельная деревянного дома в Ярославской области (проект котельной бесплатно).
o Размещена в доме, предусмотрено два теплогенератора - основной котел - напольный дровяной пиролизный со стальным теплообменником Dakon KP PYRO 24 мощностью 24 кВт, резервный котел - настенный электрический РусНит 209М мощностью 9 кВт;
o Контуры котельной – отопление дома, горячее водоснабжение и водяной теплый пол;
o Приготовление горячей воды при помощи бойлера Reflex AF150/1, объемом 200 литров с дополнительным электронагревателем на фланце (4 кВт);
o Расширительные баки резервного котла, отопления и водоснабжения Reflex объемом 12, 35 и 18 литров соответственно;
o Насосы отопления и теплого пола Grundfos;
o Трубы дымоходные из нержавеющей стали Rosinox;
o Распределительная гребенка с насосно-смесительными узлами Meibes;
o Автоматика котельной – выносной блок Vaillant calorMATIC 630/3.
Автоматизация (вариант «Комфортный»).
o Автоматическое регулирование отопления по наружной температуре (погодное регулирование);
o Автоматическое поддержание заданной температуры в контурах отопления, теплого пола и горячего водоснабжения.
Отопление дома в Ярославской области (монтаж отопления).
o Отопление дома радиаторное, использованы стальные панельные радиаторы Kermi с нижней подводкой в вентильном исполнении;
o Схема радиаторного отопления коллекторно-лучевая с принудительной циркуляцией теплоносителя;
o Температурный график отопления деревянного дома 80/60° С;
o Трубопроводы отопления сшитый полиэтилен Rehau.
Водяной теплый пол деревянного дома в Ярославской области (проект теплого пола).
Теплые полы проектом предусмотрены на площади 21 м.кв.
Трубопроводы теплого пола - сшитый полиэтилен Rehau RAUTHERM S.
Управление теплым полом – общее, контуром котельной.
Внутренний водопровод деревянного дома в Ярославской области (проект водоснабжения).
o Схема внутреннего водоснабжения – коллекторная, с рециркуляцией горячей воды у потребителей;
o Трубопроводы системы водоснабжения – сшитый полиэтилен Rehau.
Внутренняя канализация дома из бревна в Ярославской области (проект канализации).
Предусмотрен безнапорный отвод стоков от санитарно-технических приборов.




















