Выполненные проекты
Проект отопления, водоснабжения и канализации частного дома 231 м.кв.
![]() |
![]() |
![]() |
![]() |
![]() |
![]() |
Объект: частный жилой дом площадью 231 кв.м. в дер. Обухово Раменского района Московской области
Вариант отопления: «Комфортный»
Стоимость проекта: 34 650 руб. (проект котельной – бесплатно)
Проект отопления, водоснабжения и канализации дома выполнен: 17.03.2015
Состав проекта котельной, отопления, водоснабжения и канализации дома:
1. Пояснительная записка. Общие данные по отоплению дома
2. Теплотехнический расчет отопления.
3. Тепломеханическая схема котельной с размещением оборудования.
4. Комплект чертежей радиаторного отопления жилого дома.
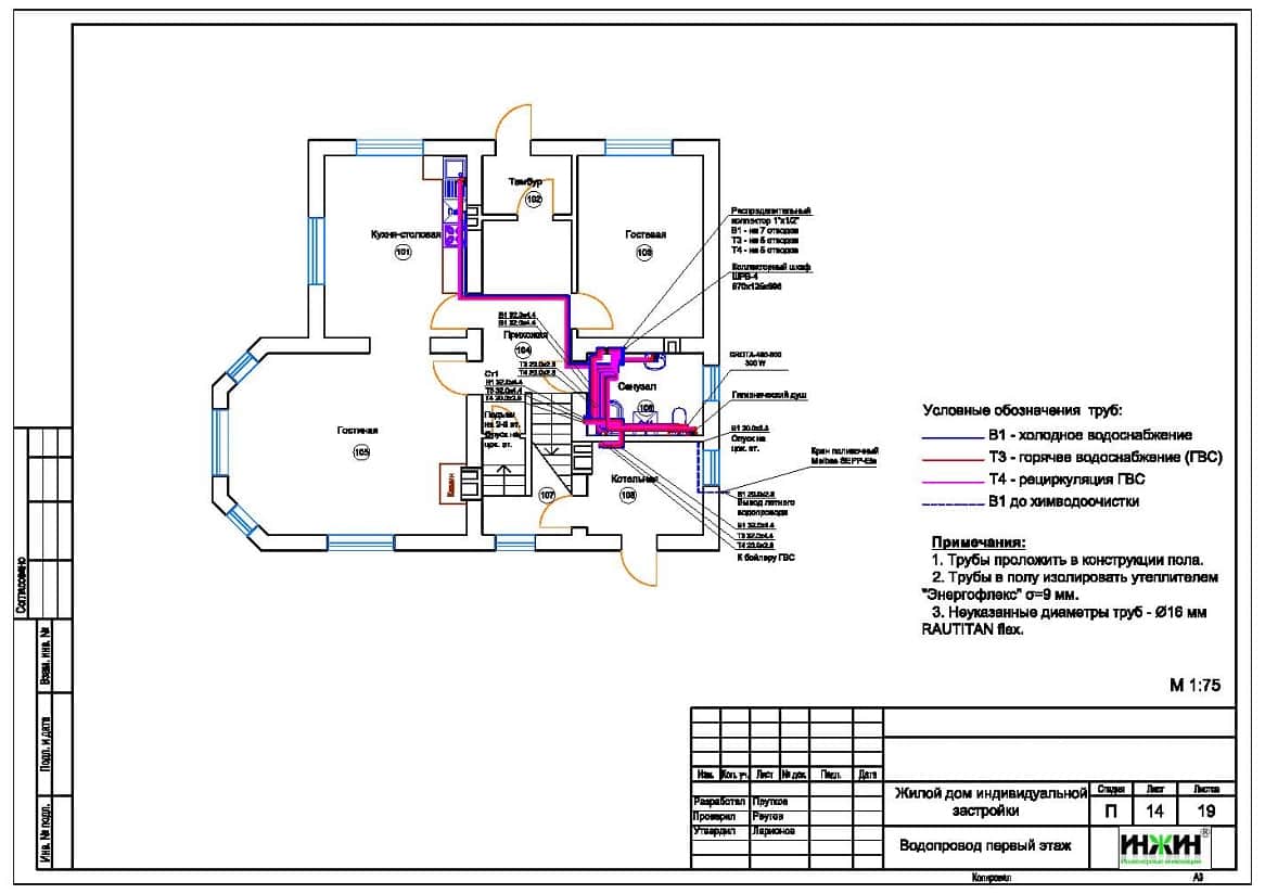
5. Комплект чертежей внутреннего водопровода и канализации жилого дома.
6. Схема системы канализации (аксонометрия).
7. Спецификация материалов и оборудования.
Объем проекта: 46 листов.
Основные проектные решения по отоплению водоснабжению и канализации частного дома, в соответствие с заданием Заказчика.
Котельная частного дома (проект котельной бесплатно).
o На базе напольного газового котла Vaillant atmoVIT мощностью 31 кВт с чугунным теплообмеником;
o Контуры котельной – отопление дома и горячее водоснабжение (бойлер);
o Приготовление горячей воды при помощи бойлера Reflex АF200, объемом 200 литров;
o Расширительные баки отопления и водоснабжения Reflex;
o Насосное оборудование Grundfos;
o Трубы дымоходные Rosinox, двухслойные, из нержавеющей стали;
o Распределительная гребенка с насосно-смесительными узлами Meibes;
o Автоматика котельной – выносной блок Vaillant calorMATIC 630/3.
Автоматизация (вариант «Комфортный»).
o Автоматическое регулирование отопления по наружной температуре (погодное регулирование);
o Автоматическое поддержание заданной температуры в контурах отопления и горячего водоснабжения.
Отопление частного дома.
o Отопление дома радиаторное, использованы панельные радиаторы Kermi с нижней подводкой, а также встроенный в пол конвектор без вентилятора Licon PK;
o Схема радиаторного отопления двухтрубная, коллекторная, с принудительной циркуляцией теплоносителя;
o Температурный график отопления 80/60°С;
o Трубопроводы отопления – сшитый полиэтилен Rehau;
o Распределительные коллекторы отопления Rehau HKV, 3 шт.
Водяной теплый пол.
Водяной теплый пол проектом не предусмотрен.
Водяные полотенцесушители.
Источником теплоснабжения полотенцесушителей принят контур рециркуляции бытовой горячей воды. Модели полотенцесушителей в проекте не указывались, в тепловом расчете учитывалась теплоотдача 150 Вт от каждого полотенцесушителя.
Внутренний водопровод.
o Схема внутреннего водоснабжения – коллекторно-лучевая;
o Трубопроводы системы водоснабжения – сшитый полиэтилен Rehau;
o Распределительные коллекторы водоснабжения Valtec VTc.560.NЕ;
o В системе горячего водоснабжения предусмотрена рециркуляция горячей воды.
Внутренняя канализация.
o Предусмотрен безнапорный отвод стоков от санитарно-технических приборов;
o Трубопроводы канализации – полипропилен Синикон (Россия).



















