Выполненные проекты
Проект отопления, водоснабжения и канализации частного дома площадью 152 м.кв.
![]() |
![]() |
![]() |
![]() |
![]() |
![]() |
Объект: жилой дом индивидуальной застройки площадью 152 кв.м. в Солнечногорском районе Московской области
Вариант отопления: «Комфортный»
Стоимость проекта: 27 300 руб. (проект котельной – бесплатно)
Проект отопления, водоснабжения и канализации выполнен: 03.07.2015г.
Состав проекта:
1. Пояснительная записка. Общие данные
2. Расчет отопления (теплотехнический расчет).
3. Тепломеханическая схема котельной с размещением оборудования.
4. Комплект чертежей радиаторного отопления жилого дома.
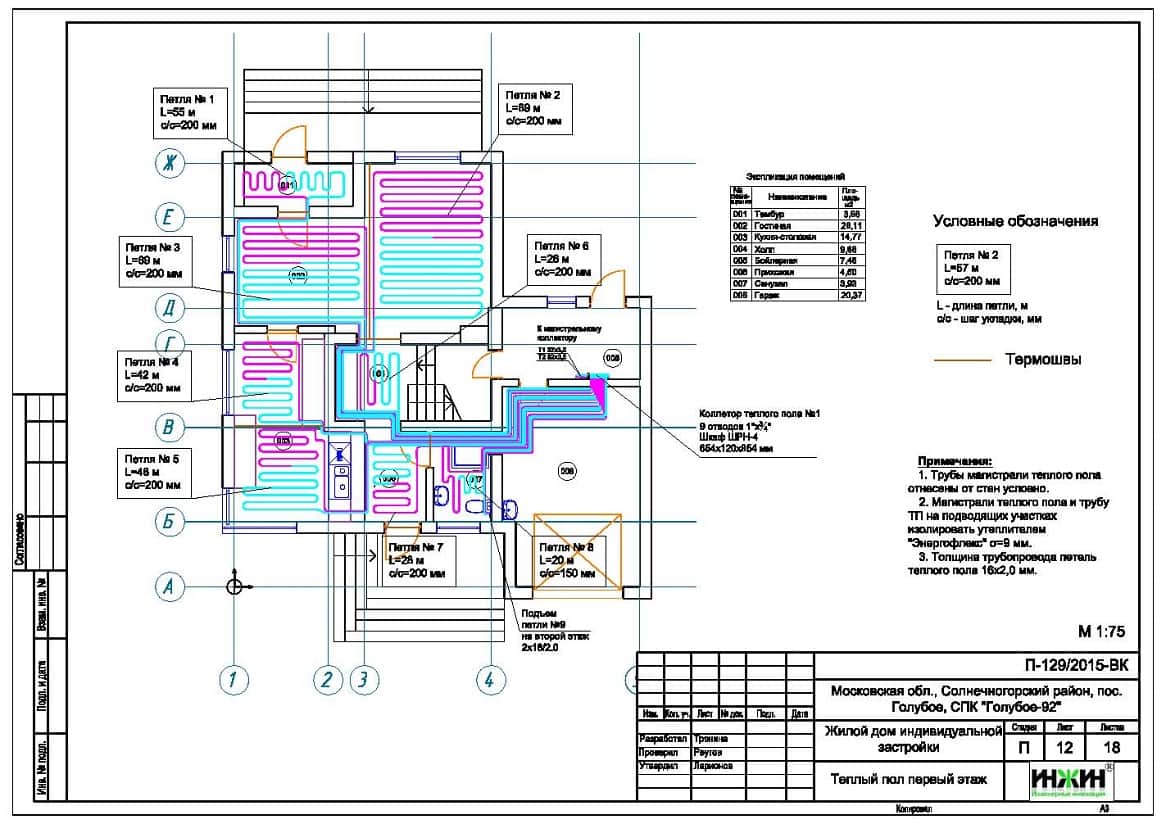
5. Комплект чертежей водяного теплого пола.
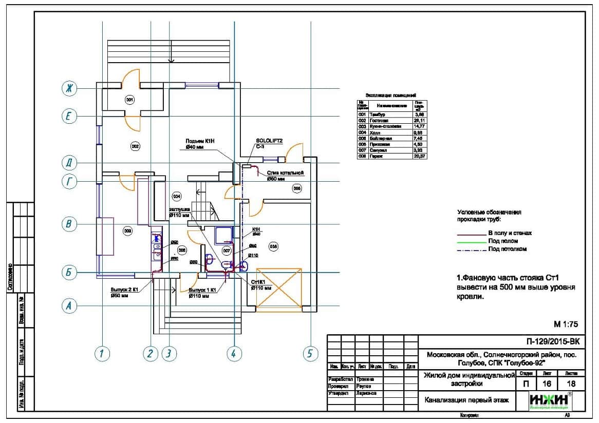
6. Комплект чертежей внутреннего водопровода и канализации жилого дома.
7. Схема системы канализации (аксонометрия).
8. Спецификация материалов и оборудования.
Объем проекта: 39 листов.
Основные проектные решения, в соответствие с заданием Заказчика.
Котельная частного дома (проект котельной бесплатно).
o На базе настенного газового котла Buderus Logamax U052-24 мощностью 24 кВт с закрытой камерой сгорания;
o Контуры котельной – отопление дома, теплый пол и горячее водоснабжение (бойлер);
o Приготовление горячей воды при помощи бойлера Buderus Logalux S120/5, объемом 120 литров;
o Расширительные баки отопления и водоснабжения Reflex;
o Насосное оборудование Grundfos;
o Трубы дымоходные Buderus, пластиковые, коаксиальные, в исполнении «через стену»;
o Распределительная гребенка с насосно-смесительными узлами Meibes;
o Автоматика котельной – блок погодозависимой автоматики для настенных котлов Logamatic 4121 с функциональным модулем FM442.
Автоматизация (вариант «Комфортный»).
o Автоматическое регулирование отопления по наружной температуре (погодное регулирование);
o Автоматическое поддержание заданной температуры в контурах отопления, теплого пола и горячего водоснабжения.
Система отопления частного дома.
o Отопление дома радиаторное, использованы панельные радиаторы Kermi с нижней подводкой;
o Схема радиаторного отопления двухтрубная, коллекторная, с принудительной циркуляцией теплоносителя;
o Температурный график отопления 80/60°С;
o Трубопроводы отопления – металлопластик Valtec.
Водяной теплый пол.
o Теплый пол предусмотрен на площади 82 м.кв.
o Трубопроводы теплого пола - сшитый полиэтилен Valtec.
o Управление теплым полом – общее, контуром котельной.
Система водяных полотенцесушителей.
Источником теплоснабжения полотенцесушителей принят контур рециркуляции бытовой горячей воды. Модели полотенцесушителей в проекте не указывались, в тепловом расчете учитывалась теплоотдача 150 Вт от каждого полотенцесушителя.
Внутренний водопровод.
o Схема внутреннего водоснабжения – коллекторно-лучевая;
o Трубопроводы системы водоснабжения – сшитый полиэтилен Rehau;
o В системе горячего водоснабжения предусмотрена рециркуляция горячей воды.
Внутренняя канализация.
o Предусмотрен безнапорный отвод стоков от санитарно-технических приборов;
o Трубопроводы канализации – полипропилен Синикон (Россия).
Заказать проект отопления частного дома в нашей компании со скидкой.
![]() |
Для этого дома разработан проект электрики |




















