Выполненные проекты
Проект электрики дома площадью 152 м.кв. в Московской области
![]() |
![]() |
![]() |
![]() |
![]() |
![]() |
Объект: жилой дом индивидуальной застройки площадью 152 кв.м. в Солнечногорском районе Московской области
Стоимость проекта электрики: 16 500 руб., стабилизированное и аварийное питание бесплатно.
Проект выполнен: 03.07.2015г.
Состав проекта электрики:
1. Пояснительная записка. Общие данные
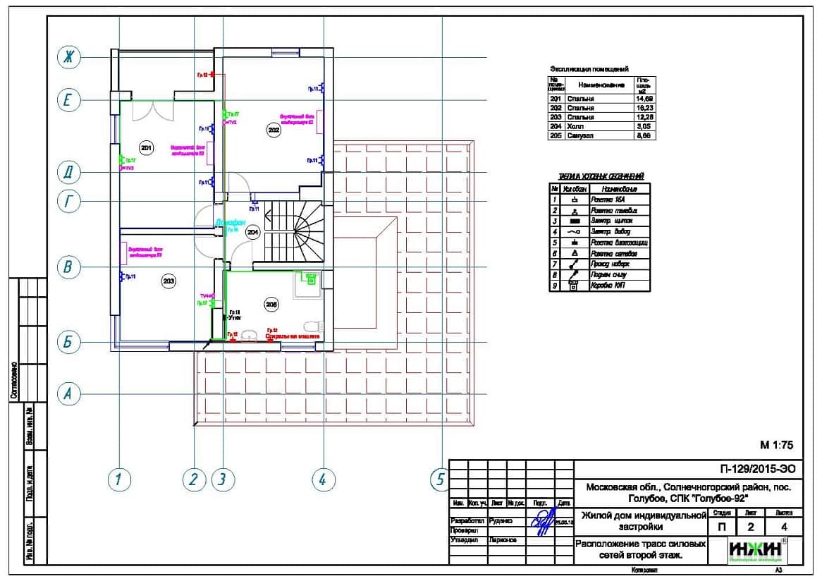
2. Однолинейные схемы вводного распределительного устройства распределительного щита.
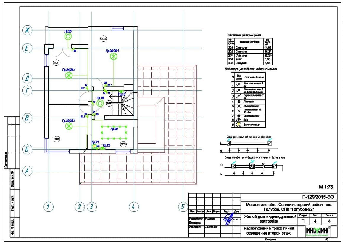
3. Поэтажные планы силовых электрических сетей.
4. Поэтажные планы групповых осветительных сетей.
5. Схема системы заземления.
6. Спецификация материалов и оборудования.
Объем проекта: 14 листов.
Основные технические решения проекта электрики, в соответствии с заданием Заказчика.
Щиты распределительные электрические.
o Проектом предусмотрен щит, оснащенный 32-мя автоматами;
o Автоматические выключатели, дифференциальные автоматы и УЗО в щите - Hager;
o Корпус щита - Hager.
Электропроводка, электрическая кабельная сеть.
o Проектом предусмотрено использование кабелей ВВГ нг -LS (Конкорд) с медными жилами в ПВХ-оболочке;
o Телевизионный кабель Cavel SAT 703 – 250 метров;
o Общая протяженность линий электроснабжения и освещения – 2 040 метров;
o Прокладка силовых линий предусмотрена скрытым способом, в пластиковой гофротрубе и металлорукаве (в виниловой изоляции);
o Предусмотрено 85 точек подключения розеток и выключателей.
Проектом предусмотрен комплект заземления Ezetek EZ 25,2.
К источнику аварийного питания предусмотрено подключение освещение на лестнице и в холлах, котельного оборудования, холодильника, домофона и привода ворот.
Стабилизированным питанием обеспечиваются все потребители.
Заказать проект электрики частного дома в нашей компании.
|
|
Для этого дома разработан проект отопления, водоснабжения и канализации |




















