Выполненные проекты
Проект отопления, водоснабжения и канализации дома площадью 172 м.кв.
![]() |
![]() |
![]() |
![]() |
![]() |
![]() |
Объект: жилой дом индивидуальной застройки площадью 172 кв.м., в Чеховском районе Московской области
Вариант отопления: «Комфортный+»
Стоимость проекта: 29 400 руб. (проект котельной – бесплатно)
Проект отопления выполнен: 25.06.2015г.
Состав проекта:
1. Пояснительная записка. Общие данные
2. Расчет отопления (теплотехнический расчет).
3. Тепломеханическая схема котельной с размещением оборудования.
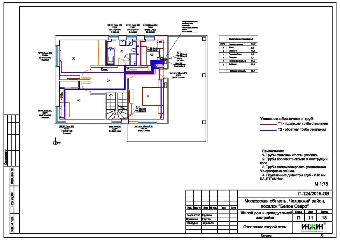
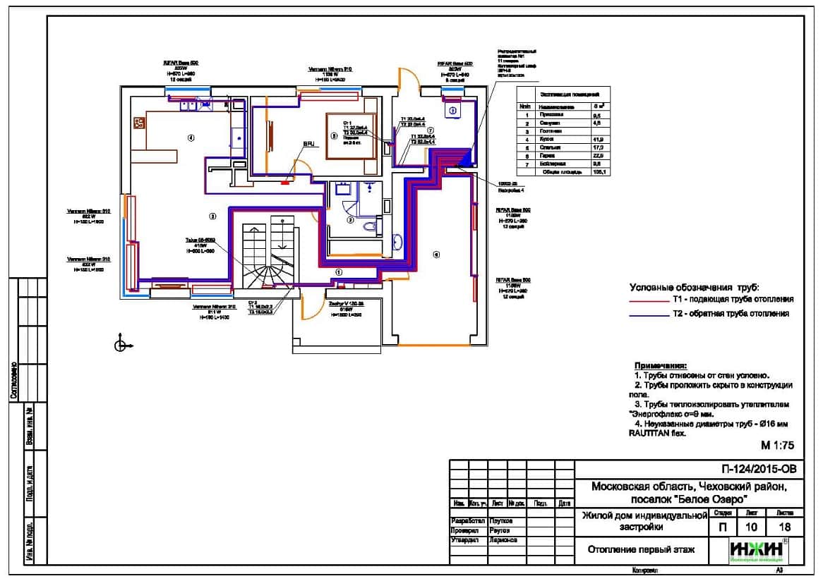
4. Комплект чертежей радиаторного отопления жилого дома.
5. Комплект чертежей напольного отопления (теплого пола) жилого дома.
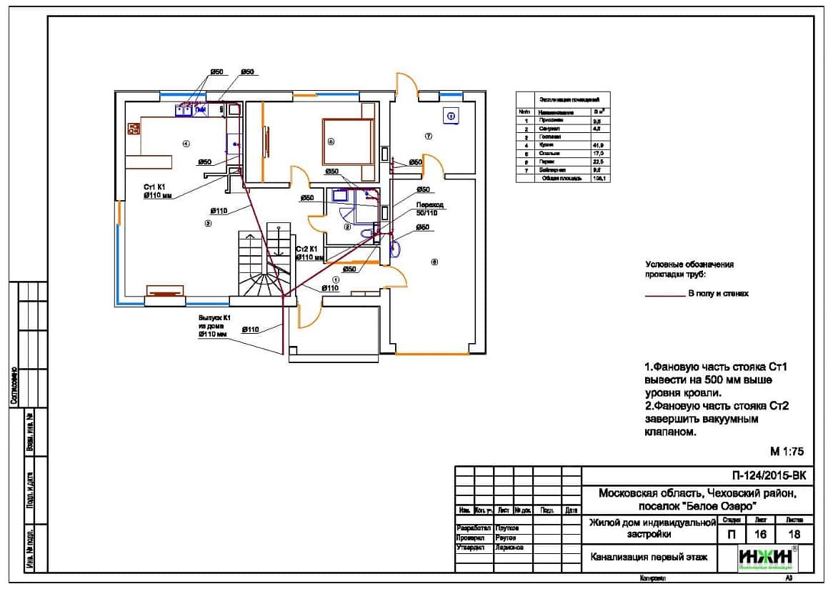
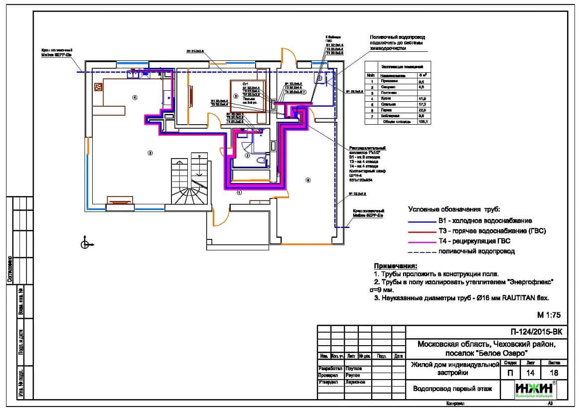
6. Комплект чертежей внутреннего водопровода и канализации жилого дома.
7. Схема системы канализации (аксонометрия).
8. Спецификация материалов и оборудования.
Объем проекта: 40 листов.
Основные проектные решения, в соответствии с заданием Заказчика.
Котельная частного дома.
o На базе напольного чугунного Vaillant atmoCRAFT мощностью 49 кВт с атмосферной газовой горелкой;
o Контуры котельной: отопление дома, горячее водоснабжение и водяной теплый пол;
o Приготовление горячей воды при помощи бойлера Reflex Storatherm Aqua, объемом 200 литров;
o Расширительные баки отопления и водоснабжения Reflex объемом 35 и 18 литров соответственно;
o Насосное оборудование Grundfos;
o Трубы дымоходные Rosinox, из нержавеющей стали;
o Распределительная гребенка с насосно-смесительными узлами Meibes, Поколение 8;
o Автоматика котельной – основной блок Vaillant calorMATIC 630/3, задатчик-регулятор температуры в помещении Vaillant VR90/3.
Автоматизация отопления (вариант «Комфортный»).
o Автоматическое регулирование отопления по наружной температуре (погодное регулирование);
o Автоматическое регулирование работы котла в зависимости от температуры в доме;
o Автоматическое поддержание заданной температуры в контурах отопления, теплого пола и горячего водоснабжения.
Система отопления частного дома.
o Отопление дома радиаторное, использованы радиаторы секционные биметаллические Rifar Base с боковым подключением (10 шт.), встроенные в пол конвекторы Varmann (6 шт.), а также дизайн-радиаторы Accuro-korle Talus, Zephyr (3 шт.);
o Схема радиаторного отопления коллекторно-лучевая с принудительной циркуляцией теплоносителя;
o Температурный график отопления 80/60° С;
o Трубопроводы отопления сшитый полиэтилен Rehau.
Водяной теплый пол.
o Теплый пол проектом предусмотрен на площади 94 м.кв.;
o Трубопроводы теплого пола - сшитый полиэтилен Rehau;
o Управление теплым полом – зональное, при помощи комнатных термостатов и электротермических сервоприводов.
Внутренний водопровод.
o Схема внутреннего водоснабжения – коллекторная, с рециркуляцией горячей воды у потребителей;
o Трубопроводы системы водоснабжения – сшитый полиэтилен Rehau.
Внутренняя канализация.
Предусмотрен безнапорный отвод стоков от санитарно-технических приборов, трубопроводы канализации - Синикон.



















