Выполненные проекты
Проект отопления, водоснабжения и канализации таунхауса площадью 212 м.кв.
![]() |
![]() |
![]() |
![]() |
![]() |
![]() |
Проект отопления, водоснабжения и канализации: выполнен 05.02.2016
Объект: таунхаус площадью 212 кв.м. в КП "Апрелевка Парк" Московской области
Вариант отопления: «Комфортный»
Стоимость проекта: 37 400 руб. (проект котельной – бесплатно)
Состав проекта:
1. Пояснительная записка. Общие данные
2. Теплотехнический расчет таунхауса (расчет отопления).
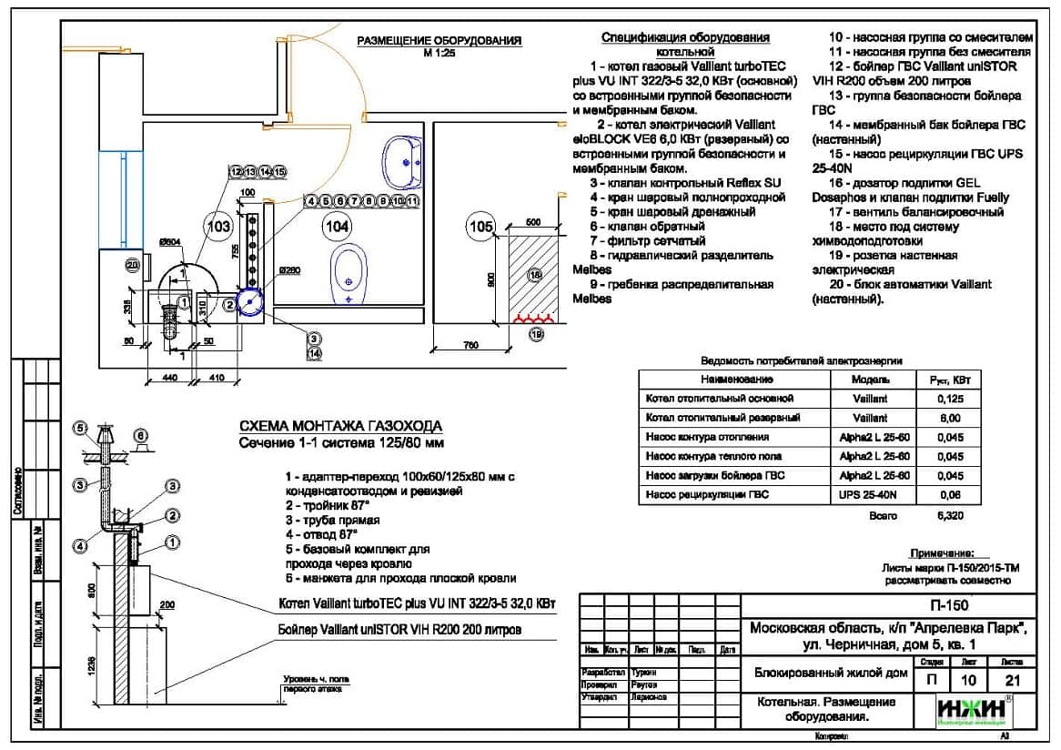
3. Тепломеханическая схема котельной с размещением оборудования.
4. Комплект чертежей радиаторного отопления.
5. Комплект чертежей водяного теплого пола.
6. Комплект чертежей внутреннего водопровода и канализации.
7. Схема системы канализации (аксонометрия).
8. Спецификация материалов и оборудования.
Объем проекта: 44 листа.
Технические решения, реализованные в проекте котельной, отопления, водоснабжения и канализации таунхауса.
Котельная таунхауса.
o Основной котел – настенный газовый Vaillant turboTEC plus мощностью 32 кВт;
o Резервный котел – настенный электрический Vaillant eloBLOCK VE6 мощностью 6 кВт;
o Контуры котельной – отопление дома, водяной теплый пол и горячее водоснабжение (бойлер);
o Приготовление горячей воды при помощи бойлера Vaillant uniSTOR, объемом 200 литров;
o Расширительные баки отопления и водоснабжения Reflex;
o Насосное оборудование Grundfos;
o Трубы дымоходные Vaillant, коаксиальные;
o Распределительная гребенка с насосно-смесительными группами Meibes;
o Автоматика котельной – Vaillant calorMATIC 630/3.
Автоматизация (вариант «Комфортный»).
o Автоматическое регулирование отопления по наружной температуре (погодное регулирование);
o Автоматическое поддержание заданной температуры в контурах отопления, теплого пола и горячего водоснабжения.
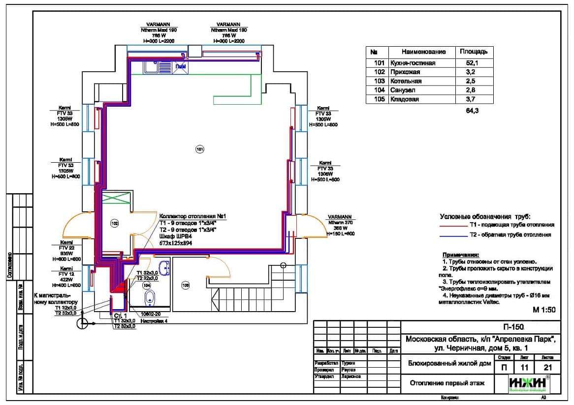
Система отопления таунхауса.
o Отопление дома радиаторное, использованы панельные стальные радиаторы Kermi (нижнее подключение) и встроенные в пол конвекторы Varmann;
o Схема радиаторного отопления двухтрубная, коллекторно-лучевая, с принудительной циркуляцией теплоносителя;
o Температурный график отопления 80/60°С;
o Трубопроводы отопления – металлопластик Valtec;
o Теплоизоляция трубопроводов Энергофлекс Супер, толщиной 9мм.
Водяной теплый пол.
Водяной теплый пол в таунхаусе спроектирован на площади 70 м.кв., 7 петель;
Теплоснабжение теплого пола запроектировано отдельным контуром котельной;
Трубопроводы теплого пола - сшитый полиэтилен PEX-EVON Valtec;
Использована коллекторная группа в сборе с расходомерами Valtec на 7 отводов;
Основание теплого пола – маты из ламинированного пенополистирола «Формат FT40/20L».
Регулирование температуры теплого пола – общее, контуром котельной.
Водяные полотенцесушители.
Источником теплоснабжения полотенцесушителей принят контур рециркуляции бытовой горячей воды. Модели полотенцесушителей в проекте не указывались, в тепловом расчете учитывалась теплоотдача 150 Вт от каждого полотенцесушителя.
Водоснабжение таунхауса.
o Схема внутреннего водоснабжения – коллекторно-лучевая, с рециркуляцией горячей воды у потребителей;
o Трубопроводы системы водоснабжения – металлопластик Valtec;
o Теплоизоляция трубопроводов Энергофлекс Супер, толщиной 9мм;
o Коллекторы водоснабжения Valtec.
Внутренняя канализация таунхауса.
Предусмотрен безнапорный отвод стоков от санитарно-технических приборов.
Трубопроводы канализации – раструбные SINIKON.
В поселке "Апрелевка Парк" нашей компанией также выполнены работы:
- проект отопления, водоснабжения и канализации таунхауса площадью 210 м.кв.;
- проект электрики дома с гостевым домом общей площадью 325 м.кв.;
- проект отопления, водоснабжения и канализации двух домов общей площадью 325 м.кв.;
- монтаж отопления, водоснабжения и канализации комплекса из 2-х строений площадью 325 м.кв.



















