Выполненные проекты
Проект отопления, водоснабжения и канализации частного дома площадью 103 м.кв.
![]() |
![]() |
![]() |
![]() |
![]() |
![]() |
Проект отопления, водоснабжения и канализации: выполнен 15.02.2016
Объект: частный дом площадью 103 кв.м. в дер. Тимошкино Дмитровского района Московской области
Вариант отопления: «Базовый»
Стоимость проекта: 22 500 руб. (проект котельной – бесплатно)
Состав проекта:
1. Пояснительная записка. Общие данные
2. Теплотехнический расчет здания.
3. Тепломеханическая схема котельной с размещением оборудования (2 варианта).
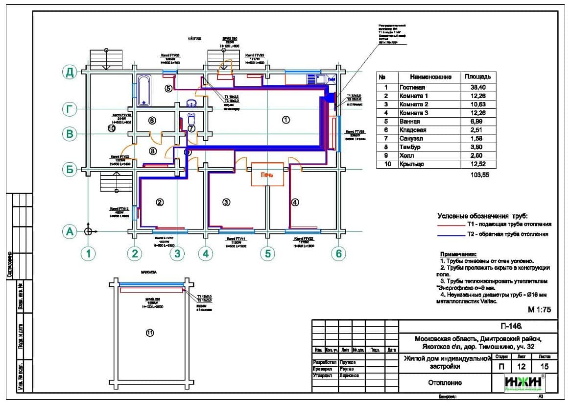
4. Комплект чертежей радиаторного отопления.
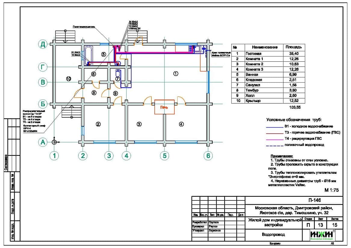
5. Комплект чертежей внутреннего водопровода и канализации.
6. Схема системы канализации (аксонометрия).
7. Спецификация материалов и оборудования.
Объем проекта: 35 листов.
Технические решения, реализованные в проекте котельной, системы отопления, водоснабжения и канализации в соответствие с заданием Заказчика.
Индивидуальная котльная.
Котельная размещена в отдельном строении и разработана в двух вариантах: на сжиженном газе и на дизельном топливе.
Котельная на сжиженном газе.
o Котел настенный газовый Vaillant turboTEC plus, мощностью 24 кВт с комплектом для перенастройки на сжиженный газ;
o Контуры котельной – отопление дома и горячее водоснабжение (бойлер), подключение непосредственно к котлу, без использования магистрального коллектора;
o Приготовление горячей воды при помощи бойлера Vaillant uniSTOR VIH R 150, объемом 150 литров;
o Расширительный бак водоснабжения Reflex объемом 18 литров;
o Насосное оборудование Grundfos;
o Трубы дымоходные Vaillant, коаксиальные, в исполнении «через стену».
Котельная на дизельном топливе.
o Котел напольный с чугунным теплообменником и дизельной горелкой Buderus Logano G125SE, мощностью 25 кВт;
o Контуры котельной – отопление дома и горячее водоснабжение (бойлер), подключение непосредственно к котлу, без использования магистрального коллектора;
o Приготовление горячей воды при помощи бойлера Buderus Logalux SU160/5, объемом 160 литров;
o Расширительный бак водоснабжения Reflex объемом 18 литров;
o Насосное оборудование Grundfos;
o Трубы дымоходные Rosinox, одно- двухслойные, из нержавеющей стали;
o Бак топливный двухстенный Roth KWT-1000, объемом 1000 литров;
o Автоматика котельной Buderus Logamatic 2107.
Автоматизация (вариант «Базовый»):
o Управление температурой теплоносителя (в обоих вариантах котельной);
o Управление насосом загрузки бойлера (дизельная котельная).
Отопление загородного дома.
o Отопление дома радиаторное, использованы панельные радиаторы Kermi с нижней подводкой, а также внутрипольный конвектор «Бриз» (КЗТО) с естественной конвекцией;
o Схема радиаторного отопления двухтрубная, коллекторно-лучевая, с принудительной циркуляцией теплоносителя;
o Температурный график отопления 80/60°С;
o Теплоноситель – антифриз на основе пропиленгликоля Теплый дом Эко;
o Трубопроводы отопления – металлопластик Valtec.
Водяной теплый пол проектом не предусматривался.
Водяные полотенцесушители.
Источником теплоснабжения полотенцесушителей принят контур рециркуляции бытовой горячей воды. Модели полотенцесушителей в проекте не указывались, в тепловом расчете учитывалась теплоотдача 150 Вт от каждого полотенцесушителя.
Внутренний водопровод.
o Схема внутреннего водоснабжения – коллекторно-лучевая, с рециркуляцией горячей воды у потребителей;
o Трубопроводы системы водоснабжения – металлопластик Valtec;
o Для летнего полива использован наружный кран с защитой от замерзания Meibes SEPP-Eis;
o Предусмотрено место для установки системы химической очистки;
o Коллекторы водоснабжения Valtec.
Внутренняя канализация.
o Предусмотрен безнапорный отвод стоков от санитарно-технических приборов;
o Трубопроводы канализации – раструбные, Синикон.



















