Выполненные проекты
Проект электроснабжения и освещения дома с баней общей площадью 265 м.кв.
![]() |
![]() |
![]() |
![]() |
![]() |
![]() |
Проект электроснабжения и освещения: выполнен 22.06.2016
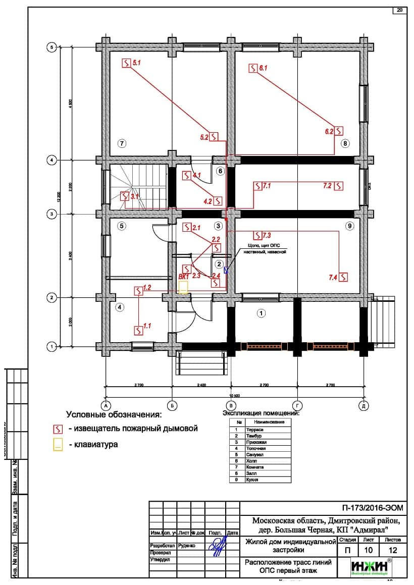
Объект: дом с баней общей площадью 265 кв.м. в КП "Адмирал" Дмитровского района Московской области
Стоимость проекта электрики: 29 150 руб., проект слаботочки бесплатно
Состав проекта электрики:
1. Пояснительная записка. Общие данные.
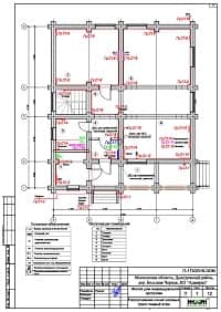
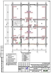
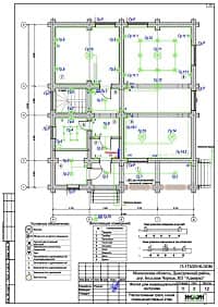
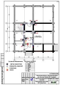
2. Однолинейные схемы вводного распределительного устройства и поэтажных распределительных щитов.
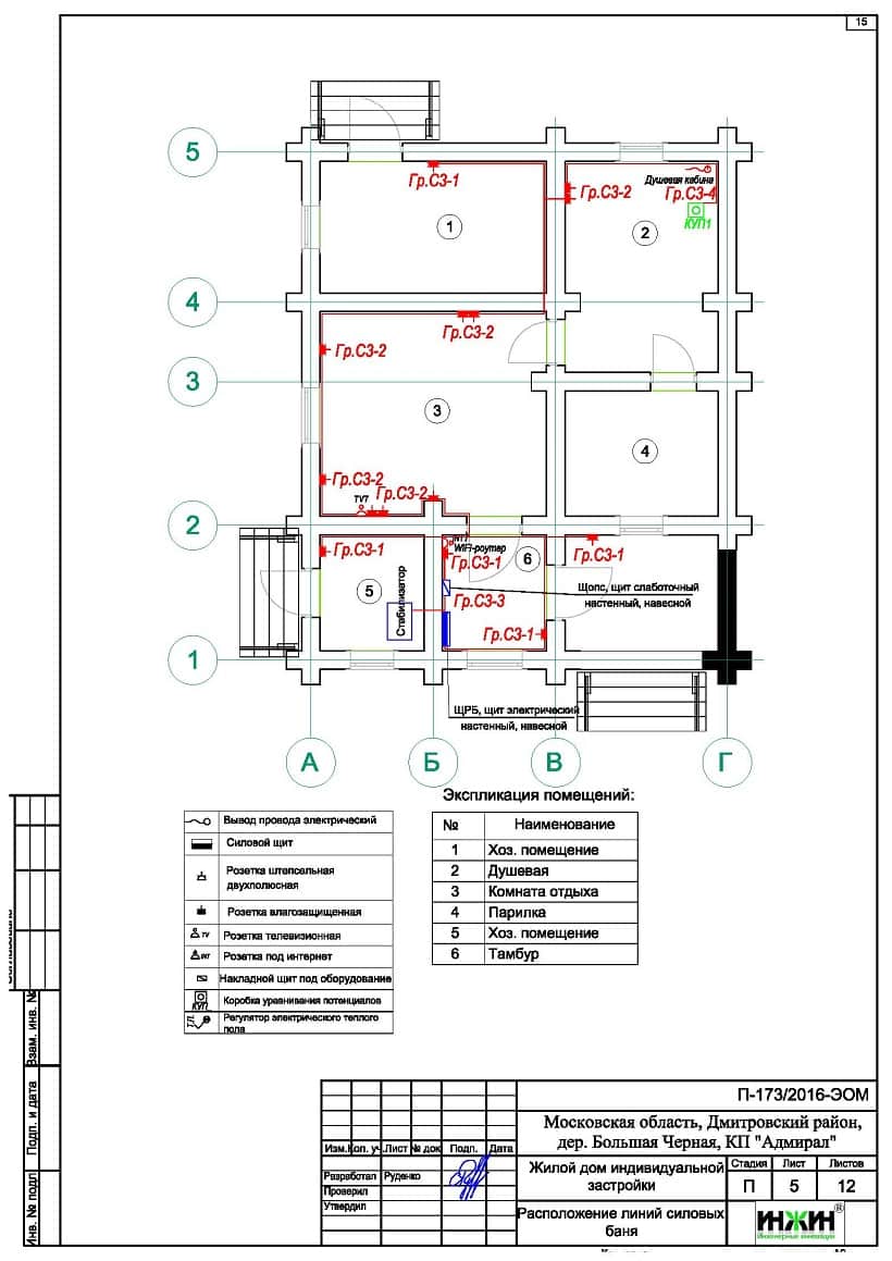
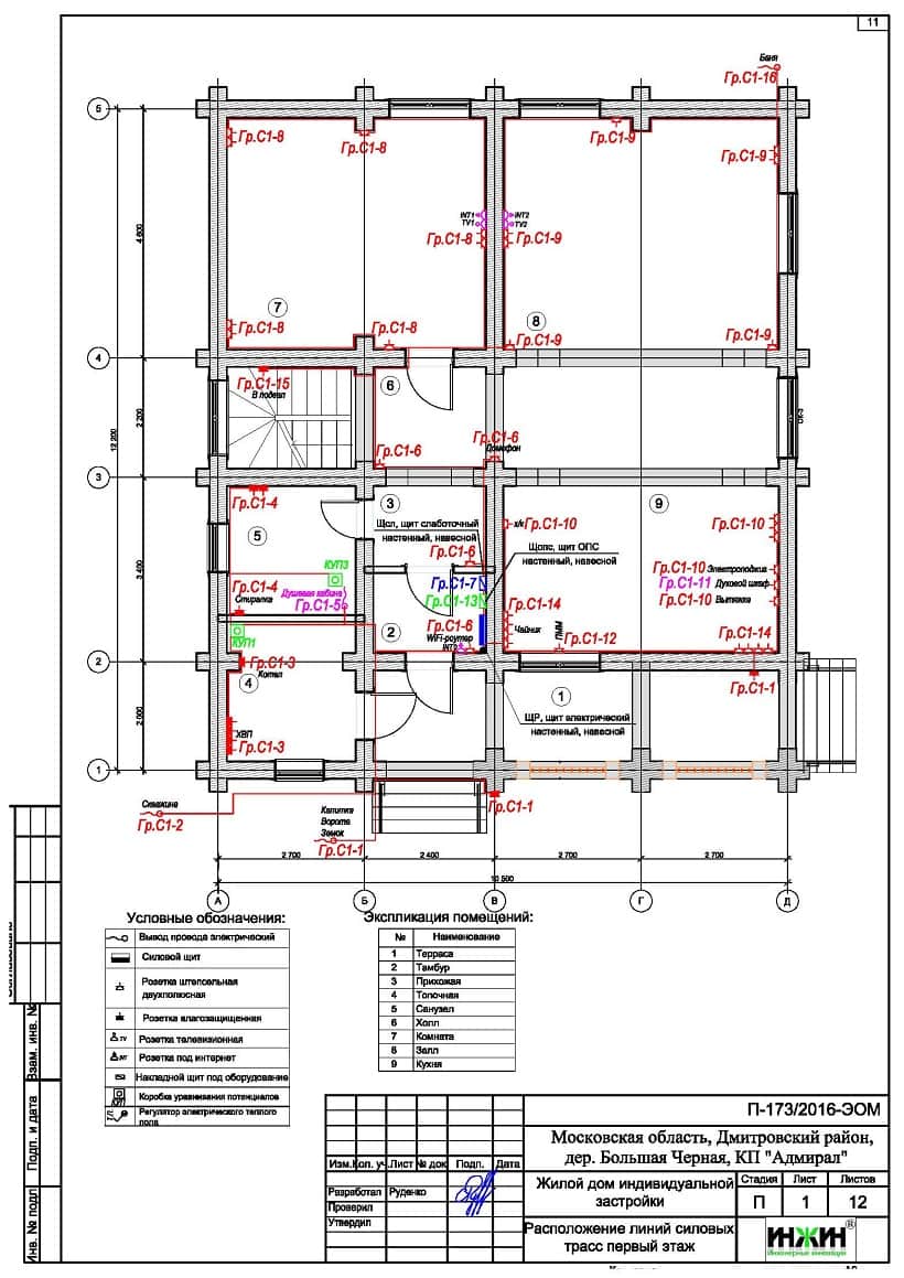
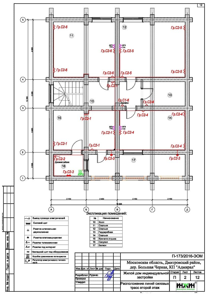
3. Поэтажные планы силовых электрических сетей дома и бани.
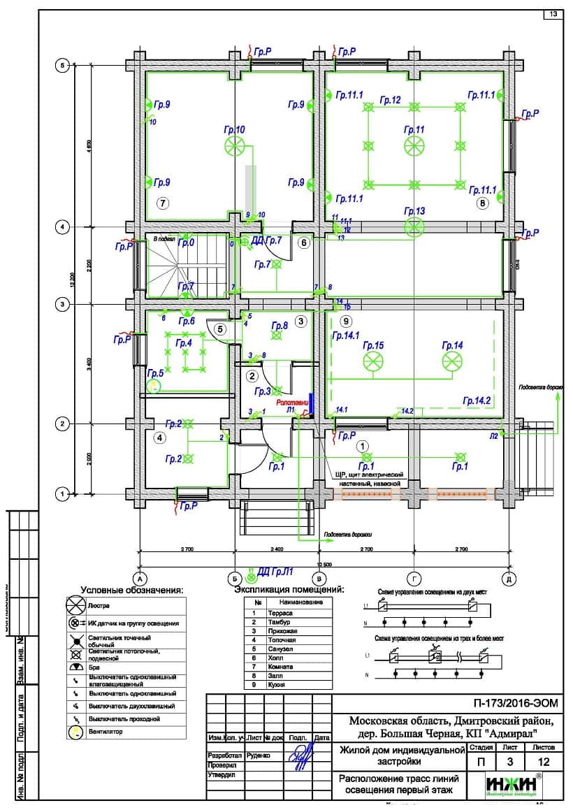
4. Планы групповых осветительных сетей дома и бани.
5. Поэтажные планы линий СКС дома и бани.
6. Схемы линий охранно-пожарной сигнализации дома и бани.
7. Схема системы уравнивания потенциалов.
8. Спецификация материалов и оборудования.
Объем проекта: 25 листов.
Основные технические решения проекта электроснабжения и освещения (электрики), в соответствии с заданием Заказчика.
Электрические распределительные щиты (ЩР).
o Проектом предусмотрено два распределительных щита (по одному для дома и бани), оснащенных 47-ю автоматами;
o Автоматические выключатели, дифференциальные автоматы и УЗО в щитах - Legrand;
o Корпуса щитов – АВВ (навесные).
Электрическая и слаботочная кабельная сеть.
o Проектом предусмотрено использование кабелей ВВГ нг -LS (Конкорд) с медными жилами в ПВХ-оболочке;
o Общая протяженность линий электроснабжения и освещения – 2 542 метров;
o Прокладка силовых линий предусмотрена скрытым способом, в металлорукаве (в виниловой изоляции);
o Предусмотрено 148 точек подключения розеток и выключателей;
o Для системы телевидения предусмотрены кабельные трассы с использованием кабеля Cavel SAT 703, в количестве 350 метров;
o Линии охранно-пожарной сигнализации с использованием кабелей КПСнг(А)-FRLS 2х2х0,50, длина 600 метров;
o Для СКС использован провод UTP 4х2х0,51 cat 5e, 1 220 метров.
Предусмотрен контур повторного заземления, комплект Ezetek EZ 6.



















