Выполненные проекты
Проект отопления, водоснабжения и канализации дома с баней общей площадью 265 м.кв.
![]() |
![]() |
![]() |
![]() |
![]() |
![]() |
Проект отопления, водоснабжения и канализации: выполнен 22.06.2016
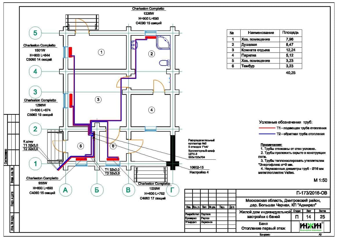
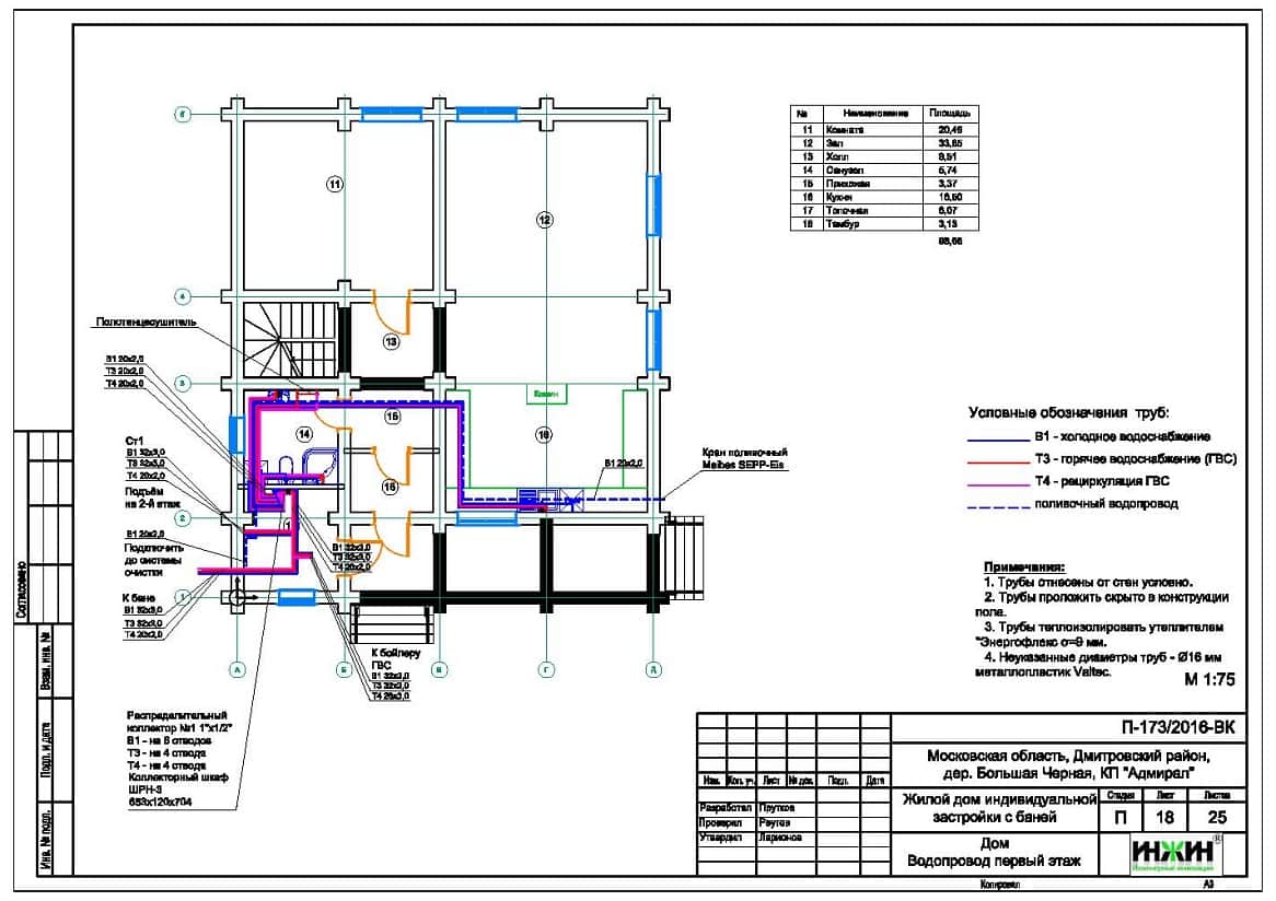
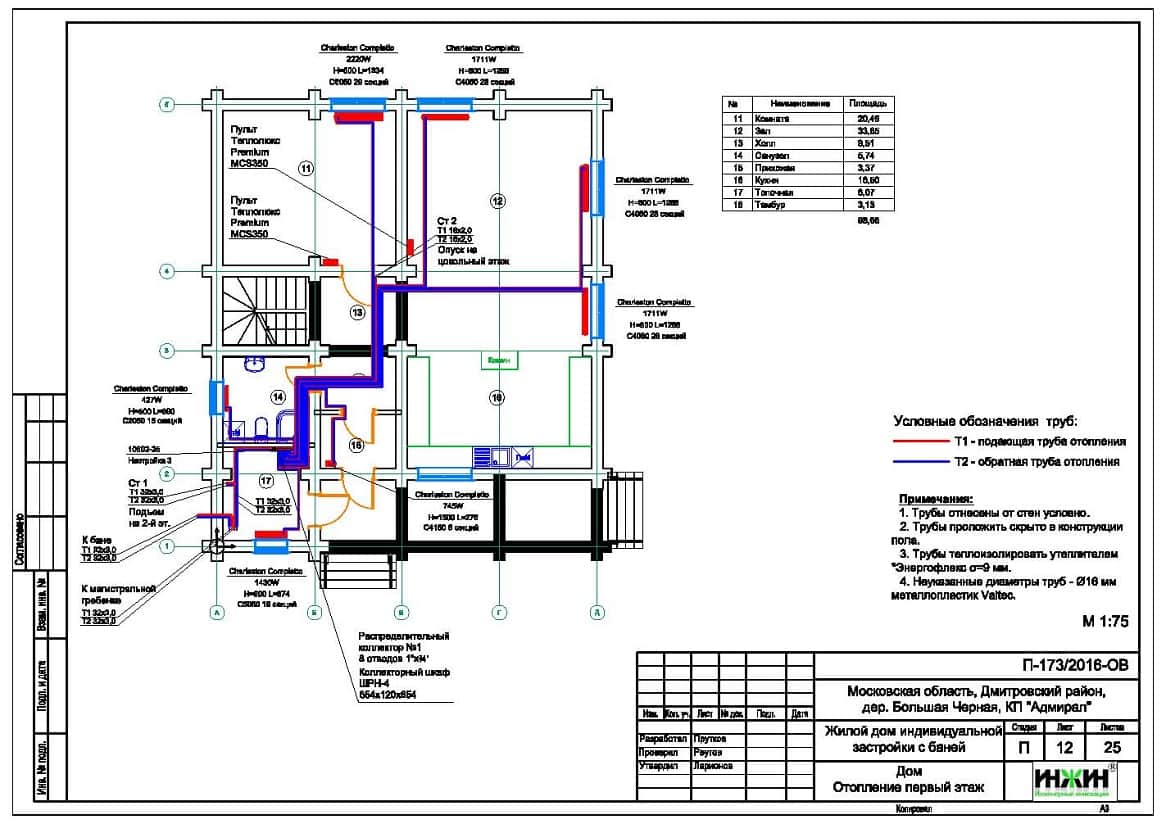
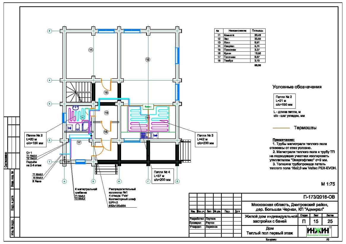
Объект: дом с баней общей площадью 265 кв.м. в Дмитровском районе Московской области
Вариант отопления: «Комфортный»
Стоимость проекта отопления: 43 350 руб. (проект котельной – бесплатно)
Состав проекта:
1. Пояснительная записка. Общие данные
2. Теплотехнический расчет дома.
3. Тепломеханическая схема котельной с размещением оборудования.
4. Комплект чертежей радиаторного отопления дома и бани.
5. Комплект чертежей водяного теплого пола дома и бани.
6. Комплект чертежей внутреннего водопровода и канализации дома и бани.
7. Схема системы канализации (аксонометрия).
8. Спецификация материалов и оборудования.
Объем проекта: 50 листов.
Основные технические решения, реализованные в проекте отопления, водоснабжения и канализации в соответствие с заданием Заказчика.
Индивидуальная котельная дома.
o Котел настенный газовый Vaillant turboTEC plus мощностью 36 кВт;
o Контуры котельной – отопление дома, отопление бани, водяной теплый пол дома и бани, горячее водоснабжение (бойлер);
o Приготовление горячей воды при помощи бойлера Vaillant uniSTOR VIH R 200 B, объемом 200 литров;
o Расширительные баки отопления и водоснабжения Reflex;
o Насосное оборудование Grundfos;
o Трубы дымоходные Vaillant, коаксиальные;
o Распределительная гребенка с насосно-смесительными группами Meibes и гидравлической стрелкой;
o Подпитка отопления – ручная;
o Автоматика котельной – Vaillant calorMATIC 630/3 с дополнительным модулем VR 60 и блоком дистанционного управления котлом GSM-climate.
Автоматизация отопления (вариант «Комфортный»).
o Автоматическое регулирование отопления по наружной температуре (погодное регулирование) и температуре в помещении;
o Автоматическое поддержание заданной температуры в контурах отопления, теплого пола и горячего водоснабжения;
o Дистанционное управление работой котельной установки при помощи GSM-модуля.
Система отопления дома.
o Отопление дома и бани радиаторное, использованы трубчатые стальные радиаторы Zehnder Charleston Completto, нижнее подключение, тип 443;
o Схема радиаторного отопления двухтрубная, коллекторно-лучевая, с принудительной циркуляцией теплоносителя;
o Температурный график отопления 80/60°С;
o Трубопроводы отопления – металлопластик Valtec;
o Коллекторы отопления Valtec на 5, 7 и 8 отводов;
o Шкафы коллекторные Valtec, пристраиваемые;
o Теплоизоляция трубопроводов Энергофлекс Супер, толщиной 9мм;
o Предусмотрена система дистанционного зонального управления отоплением при помощи электронных комнатных термостатов Теплолюкс Premium со встроенными Wi-Fi модулями.
Водяной теплый пол.
o Водяной теплый пол в доме и бане спроектирован на площади 36 м.кв., 6 петель;
o Теплоснабжение теплого пола запроектировано отдельным контуром котельной;
o Трубопроводы теплого пола - сшитый полиэтилен Valtec PEX-EVON;
o Использованы коллекторные группы Valtec в сборе с расходомерами на 3 и 4 отвода;
o Основание теплого пола – маты из ламинированного пенополистирола «Формат FT40/20L».
Регулирование температуры теплого пола – общее, контуром котельной.
Водяные полотенцесушители.
Источником теплоснабжения полотенцесушителей принят контур рециркуляции бытовой горячей воды. Модели полотенцесушителей в проекте не указывались, в тепловом расчете учитывалась теплоотдача 150 Вт от каждого полотенцесушителя.
Внутренний водопровод.
o Схема внутреннего водоснабжения – коллекторная, с рециркуляцией горячей воды у потребителей;
o Трубопроводы системы водоснабжения – металлопластик Valtec;
o Теплоизоляция трубопроводов Энергофлекс Супер, толщиной 9мм;
o Для летнего водопровода предусмотрен наружный кран Meibes SEPP-Eis с защитой от замерзания (не требующий слива в зимний период).
Внутренняя канализация.
o Предусмотрен безнапорный отвод стоков от санитарно-технических приборов;
o Трубопроводы канализации – раструбные SINIKON.



















