Выполненные проекты
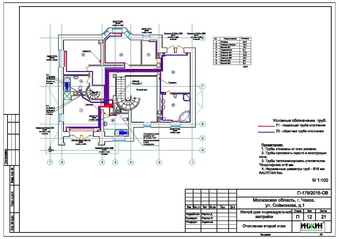
Проект отопления, водоснабжения и канализации дома площадью 448 м.кв. в г.Чехов
![]() |
![]() |
![]() |
![]() ![]() |
![]() |
Проект отопления, водоснабжения и канализации: выполнен 25.07.2016
Объект: дом с баней общей площадью 448 кв.м. в г.Чехов Московской области
Вариант отопления: «Комфортный»
Стоимость проекта отопления, водоснабжения, канализации: 73 760 руб. (проект котельной – бесплатно)
Состав проекта отопления, котельной, водоснабжения, канализации:
1. Пояснительная записка. Общие данные
2. Теплотехнический расчет дома.
3. Тепломеханическая схема котельной с размещением оборудования.
4. Комплект чертежей радиаторного отопления дома.
5. Комплект чертежей водяного теплого пола дома.
6. Комплект чертежей внутреннего водопровода и канализации.
7. Схема системы канализации (аксонометрия).
8. Спецификация материалов и оборудования.
Объем проекта: 52 листа.
Основные технические решения, принятые в проекте котельной, отопления, водоснабжения и канализации в соответствие с заданием Заказчика.
Индивидуальная котельная дома.
o Котел настенный газовый конденсационный Buderus Logamax plus GB172-42i, мощностью 42 кВт;
o Контуры котельной – отопление дома, водяной теплый пол дома, водяной теплый пол гаража (с раздельным теплообменником на антифризе), горячее водоснабжение (бойлер);
o Приготовление горячей воды при помощи бойлера Buderus Logalux SU300, объемом 300 литров;
o Расширительные баки отопления и водоснабжения Reflex;
o Насосное оборудование Grundfos;
o Трубы дымоходные Buderus, коаксиальные;
o Распределительная гребенка с насосно-смесительными группами Meibes и гидравлической стрелкой;
o Подпитка отопления – ручная;
o Автоматика котельной – Buderus RC300 с дополнительными модулями ММ100 и модулем удаленного управления через Интернет Logamatic Web KM200.
Автоматизация (вариант «Комфортный»).
o Автоматическое регулирование отопления по наружной температуре (погодное регулирование) и температуре в помещении;
o Автоматическое поддержание заданной температуры в контурах отопления, теплого пола и горячего водоснабжения;
o Дистанционное управление работой котельной установки через Интернет.
Система радиаторного отопления.
o Отопление радиаторное, использованы панельные стальные радиаторы Kermi с нижним подключением, трубчатые стальные радиаторы КЗТО Гармония и встроенные в пол конвекторы Varmann с естественной конвекцией;
o Схема радиаторного отопления двухтрубная, коллекторно-лучевая, с принудительной циркуляцией теплоносителя;
o Температурный график отопления 80/60°С;
o Трубопроводы отопления – сшитый полиэтилен Rehau RAUTITAN pink;
o Коллекторы отопления Rehau на 5, 5 и 10 отводов;
o Шкафы коллекторные Valtec, встраиваемые и пристраиваемые;
o Теплоизоляция трубопроводов Энергофлекс Супер, толщиной 9мм;
o Предусмотрена система дистанционного зонального управления отоплением при помощи электронных комнатных термостатов Rehau NEA HT.
Водяной теплый пол.
o Водяной теплый пол в доме спроектирован на площади 80 м.кв., 9 петель;
o Теплоснабжение теплого пола запроектировано отдельным контуром котельной;
o Трубопроводы теплого пола - сшитый полиэтилен Rehau RAUTHERM S;
o Использованы коллекторные группы Rehau HKV с расходомерами на 3 и 6 отводов;
o Основание теплого пола – маты из ламинированного пенополистирола «Формат FT40/20L».
Регулирование температуры теплого пола – общее, контуром котельной.
Внутренний водопровод.
o Схема внутреннего водоснабжения – коллекторная, с рециркуляцией горячей воды у потребителей;
o Коллекторы водопровода – Valtec, сборные, с запорными вентилями;
o Трубопроводы системы водоснабжения – сшитый полиэтилен Rehau RAUTITAN his;
o Теплоизоляция трубопроводов Энергофлекс Супер, толщиной 9мм;
o Для летнего водопровода предусмотрено 3 наружных крана Meibes SEPP-Eis с защитой от замерзания (не требующие слива в зимний период).
Внутренняя канализация.
o Предусмотрен безнапорный отвод стоков от санитарно-технических приборов;
o Трубопроводы канализации – раструбные SINIKON;
o В санузле использован трап с сухим затвором Viega, 4936.2 с горизонтальным отводом.



















