Выполненные проекты
Проект электроснабжения и освещения таунхауса площадью 146 м.кв. в Москве
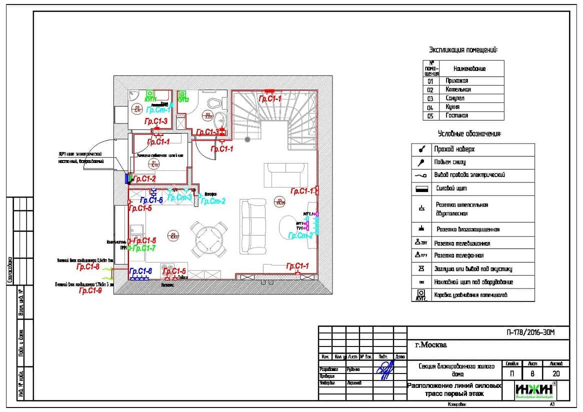
![]() |
![]() |
![]() |
![]() |
![]() |
![]() |
Проект электроснабжения и освещения: выполнен 05.08.2016
Объект: таунхаус площадью 146 кв.м. в КП «Рависант», г.Москва
Стоимость проекта электрики: 13 651 руб. с учетом скидки 15% (за комплексный проект с отоплением).
Состав проекта:
1. Пояснительная записка. Общие данные
2. Однолинейная схема вводного распределительного устройства.
3. Поэтажные планы силовых электрических сетей таунхауса.
4. Планы групповых осветительных сетей.
5. Схема системы уравнивания потенциалов.
6. Спецификация материалов и оборудования.
Объем проекта: 20 листов.
Основные технические решения проекта электроснабжения и освещения (электрики) таунхауса.
Электрические распределительные щиты.
o Проектом предусмотрен один распределительный щит, оснащенный 32-мя автоматами;
o Автоматические выключатели, дифференциальные автоматы и УЗО в щитах - АВВ;
o Корпуса щита – АВВ (встраиваемый).
Электропроводка, силовые и слаботочные кабельные сети.
o Проектом предусмотрено использование кабелей ВВГ нг -LS (Конкорд) с медными жилами в ПВХ-оболочке;
o Общая протяженность линий электроснабжения и освещения – 1 847 метров;
o Прокладка силовых линий предусмотрена скрытым способом, в трубе ПВХ и металлорукаве (в виниловой изоляции);
o Предусмотрено 110 точек подключения розеток и выключателей;
o Для системы телевидения предусмотрены кабельные трассы с использованием кабеля Cavel SAT 703, в количестве 200 метров;
o Для СКС использован провод UTP 4х2х0,51 cat 5e, 505 метров.



















