Выполненные проекты
Проект электрики дома с бассейном площадью 820 м.кв.
![]() |
![]() |
![]() |
![]() |
![]() |
![]() |
Проект электроснабжения и освещения: выполнен 29.08.2016
Объект: дом площадью 820 кв.м. с бассейном, расположенный в Истринском районе Московской области, КП «Красный Поселок»
Стоимость проекта электрики: 90 200 руб., проект слаботочной кабельной сети – бесплатно.
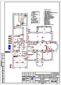
Состав проекта электроснабжения:
1. Пояснительная записка. Общие данные
2. Однолинейные схемы вводного распределительного устройства и поэтажных распределительных щитов.
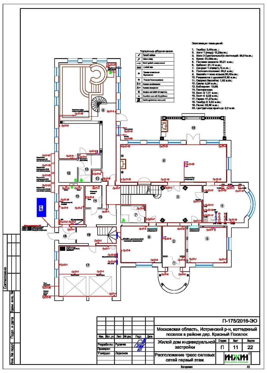
3. Поэтажные планы силовых электрических сетей.
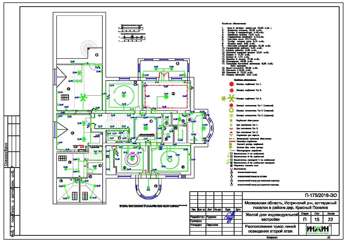
4. Планы групповых осветительных сетей.
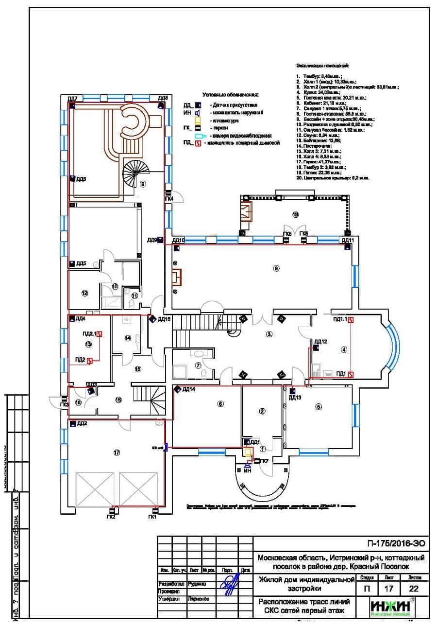
5. Поэтажные планы линий СКС дома (охранно-пожарная сигнализация, видеонаблюдение).
6. Спецификация материалов и оборудования.
Объем проекта: 22 листа.
Основные технические решения проекта электроснабжения и освещения (электрики), в соответствии с заданием Заказчика.
Электрические распределительные щиты (ЩР).
o Проектом предусмотрено два распределительных щита (на каждый этаж), оснащенных 72-мя автоматами;
o Автоматические выключатели, дифференциальные автоматы и УЗО в щитах - Hager;
o Корпуса щитов – Hager (встраиваемые).
Электропроводка, силовые и слаботочные кабельные сети.
o Проектом предусмотрено использование кабелей ВВГ нг -LS (Конкорд) с медными жилами в ПВХ-оболочке;
o Общая протяженность линий электроснабжения и освещения – 7 489 метров;
o Прокладка силовых линий предусмотрена скрытым способом, в гофрированной ПВХ-трубе и металлорукаве (в виниловой изоляции);
o Для дизель-генератора (уличного исполнения) предусмотрен кабель бронированный ВБШвнг(А)- 3*2,5ок-0,66, 55 метров;
o Для ввода в дом запроектирован кабель ВБШвнг(А)- 5*25, бронированный, 87 метров;
o Предусмотрено 327 точек подключения розеток и выключателей;
o Для системы телевидения предусмотрены кабельные трассы с использованием кабеля Cavel SAT 703, в количестве 500 метров;
o Трассы системы видеонаблюдения спроектированы с использованием кабеля высокочастотного комбинированного КВК-2П-2х0,75, в количестве 650 метров
o Для СКС использован провод UTP 4х2х0,51 cat 5e, 1 830 метров.
Резервное и стабилизированное электроснабжение.
Предусмотрен источник резервного электроснабжения - бензогенератор однофазный Honda EUROPOWER EP-11000E, 10 кВт. Расположение генератора – на участке.
Стабилизированное электропитание обеспечивается трехфазным стабилизатором напряжения РусЭлт, СТД-40/3, 40 кВА. Расположение стабилизатора – в гараже.
Контур заземления.
Все металлические части электрооборудования, нормально не находящиеся под напряжением, металлические конструкции для установки эктрооборудования, металлические трубы электропроводки заземлены в соответствии с требованиями ПУЭ для сетей с глухозаземленной нейтралью. Использован комплект одиночного глубинного вертикального заземлителя Ezetek EZ-6.


















