Выполненные проекты
Проект отопления, водоснабжения и канализации таунхауса площадью 146 м.кв. в КП «Рависант»
![]() |
![]() |
![]() |
![]() |
![]() |
![]() |
Проект отопления, водоснабжения и канализации: выполнен 05.08.2016
Объект: таунхаус площадью 146 кв.м. в КП «Рависант», г. Москва
Вариант отопления: «Комфортный+»
Стоимость проекта: 20 655 руб. с учетом скидки 15% (комплексный проект с электрикой).
Состав проекта отоепления, водоснабжения, канализации:
1. Пояснительная записка. Общие данные
2. Теплотехнический расчет таунхауса.
3. Тепломеханическая схема котельной с размещением оборудования.
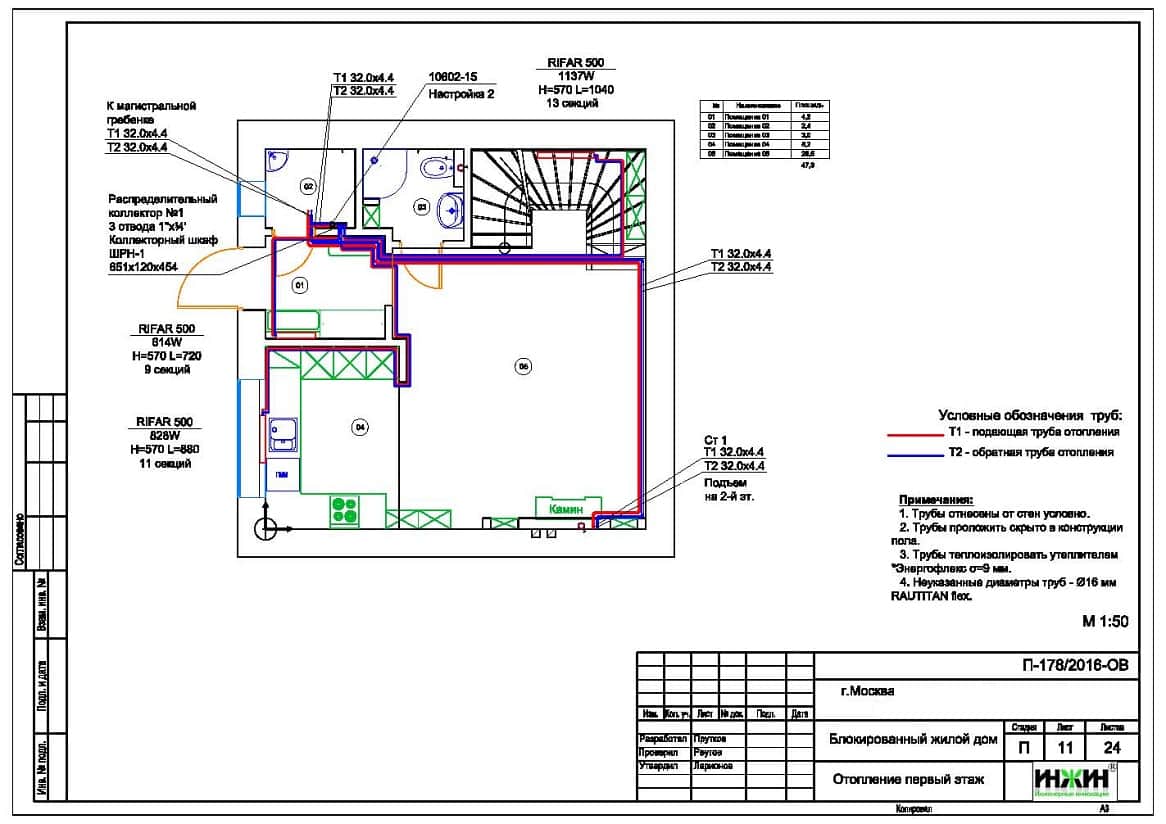
4. Комплект чертежей радиаторного отопления.
5. Комплект чертежей водяного теплого пола.
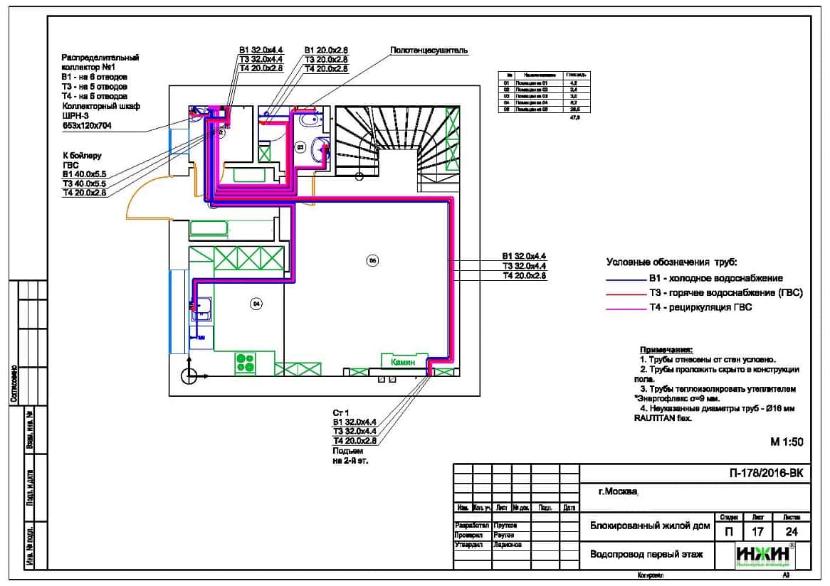
6. Комплект чертежей внутреннего водопровода и канализации.
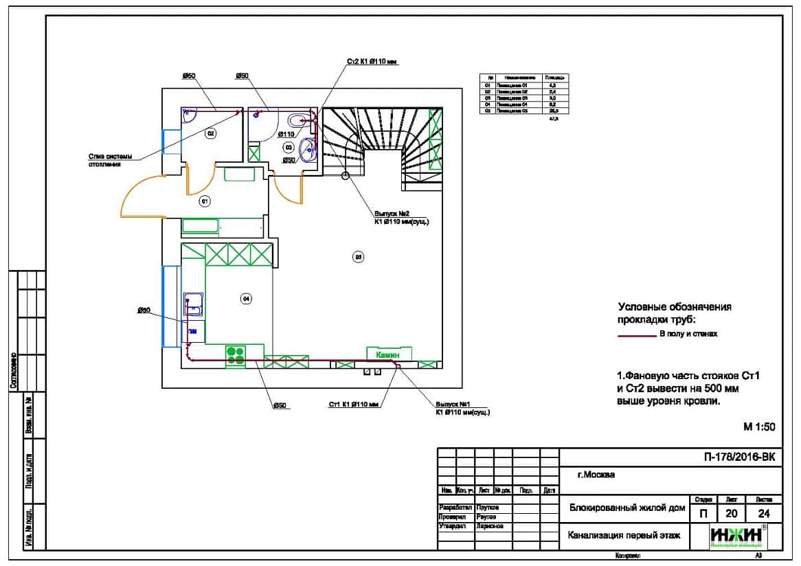
7. Схема системы канализации (аксонометрия).
8. Спецификация материалов и оборудования.
Объем проекта: 43 листа.
Основные решения, принятые в проекте котельной, отопления, водоснабжения и канализации.
Индивидуальная котельная.
o Котел настенный газовый Thermona мощностью 28 кВт (в наличии на объекте);
o Контуры котельной – радиаторное отопление, водяной теплый пол дома, горячее водоснабжение (бойлер);
o Приготовление горячей воды при помощи бойлера Drazice, объемом 100 литров (в наличии на объекте);
o Расширительный бак водоснабжения Reflex;
o Насосное оборудование Grundfos;
o Трубы дымоходные выполнены на объекте;
o В качестве магистрального коллектора использован универсальный насосно-смесительный модуль Meibes Kombimix с функцией гидравлической стрелки;
o Подпитка отопления – ручная;
o Автоматика котельной погодозависимая, Vaillant calorMATIC 630/3.
Автоматизация (вариант «Комфортный»).
o Автоматическое регулирование отопления по наружной температуре (погодное регулирование);
o Автоматическое поддержание заданной температуры в контурах отопления, теплого пола и горячего водоснабжения.
Система отопления дома.
o Использованы секционные биметаллические радиаторы Rifar Base Ventil с нижним подключением;
o Схема радиаторного отопления двухтрубная, коллекторно-лучевая, с принудительной циркуляцией теплоносителя;
o Температурный график отопления 80/60°С;
o Трубопроводы отопления – сшитый полиэтилен Rehau RAUTITAN flex;
o Коллекторы отопления Rehau на 2, 2 и 3 отвода;
o Шкафы коллекторные Valtec, встраиваемые и пристраиваемые;
o Теплоизоляция трубопроводов Энергофлекс Супер, толщиной 9мм.
Водяной теплый пол.
o Водяной теплый пол спроектирован на 1,2 и 3-м этажах, общая площадь 72 м.кв., 8 петель;
o Теплоснабжение теплого пола запроектировано отдельным контуром котельной;
o Трубопроводы теплого пола - сшитый полиэтилен Rehau RAUTHERM S;
o Использованы коллекторные группы Rehau с расходомерами на 3 и 5 отводов;
o Основание теплого пола – маты из ламинированного пенополистирола «Формат FT40/20L».
Регулирование температуры теплого пола – зональное, при помощи комнатных термостатов и сервоприводов Rehau NEA HСT.
Водяные полотенцесушители.
Источником теплоснабжения полотенцесушителей принят контур рециркуляции бытовой горячей воды. Модели полотенцесушителей в проекте не указывались, в тепловом расчете учитывалась теплоотдача 150 Вт от каждого полотенцесушителя.
Внутренний водопровод.
o Схема внутреннего водоснабжения – коллекторная, с рециркуляцией горячей воды у потребителей;
o Трубопроводы системы водоснабжения – сшитый полиэтилен Rehau RAUTITAN flex;
o Коллекторы водопровода – сборные, Valtec VTc.560.NE;
o Теплоизоляция трубопроводов Энергофлекс Супер, толщиной 9мм.
Внутренняя канализация.
o Предусмотрен безнапорный отвод стоков от санитарно-технических приборов;
o Трубопроводы канализации – раструбные SINIKON.



















