Выполненные проекты
Проект отопления, водоснабжения и канализации дома площадью 279 м.кв. в Московской области
![]() |
![]() |
![]() |
![]() |
![]() |
![]() |
Проект отопления, водоснабжения и канализации: выполнен 06.09.2016
Объект: загородный дом площадью 279 кв.м. в Истринском районе Московской области, ДНП «Соната»
Вариант отопления: «Комфортный»
Стоимость проекта: 44 410 руб. (проект котельной – бесплатно)
Состав проекта:
1. Пояснительная записка. Общие данные
2. Теплотехнический расчет дома.
3. Тепломеханическая схема котельной с размещением оборудования.
4. Комплект чертежей радиаторного отопления дома.
5. Комплект чертежей водяного теплого пола дома.
6. Комплект чертежей внутреннего водопровода и канализации.
7. Схема системы канализации (аксонометрия).
8. Спецификация материалов и оборудования.
Объем проекта: 45 листов.
Технические решения проекта отопления, водоснабжения и канализации, реализованные в соответствие с заданием Заказчика.
Индивидуальная котельная дома.
o Основной котел - настенный газовый Vaillant turboTEC plus мощностью 36 кВт, резервный котел электрический Vaillant eloBLOCK VE12 мощностью 12 кВт;
o Контуры котельной – радиаторное отопление дома, водяной теплый пол и горячее водоснабжение (бойлер);
o Приготовление горячей воды при помощи бойлера Vaillant uniSTOR, объемом 200 литров;
o Расширительные баки отопления и водоснабжения Reflex;
o Насосное оборудование Grundfos;
o Трубы дымоходные Vaillant, раздельные;
o Распределительный коллектор с насосно-смесительными группами Meibes и гидравлической стрелкой;
o Подпитка отопления – ручная;
o Автоматика котельной – блок Vaillant calorMATIC 630/3 с задатчиком-регулятором температуры в помещении VR 90/3.
Автоматизация (вариант «Комфортный»).
o Автоматическое регулирование отопления по наружной температуре (погодное регулирование) и температуре в помещении;
o Автоматическое поддержание заданной температуры в контурах отопления, теплого пола и горячего водоснабжения;
o Дистанционное управление работой котельной установки при помощи выносного блока.
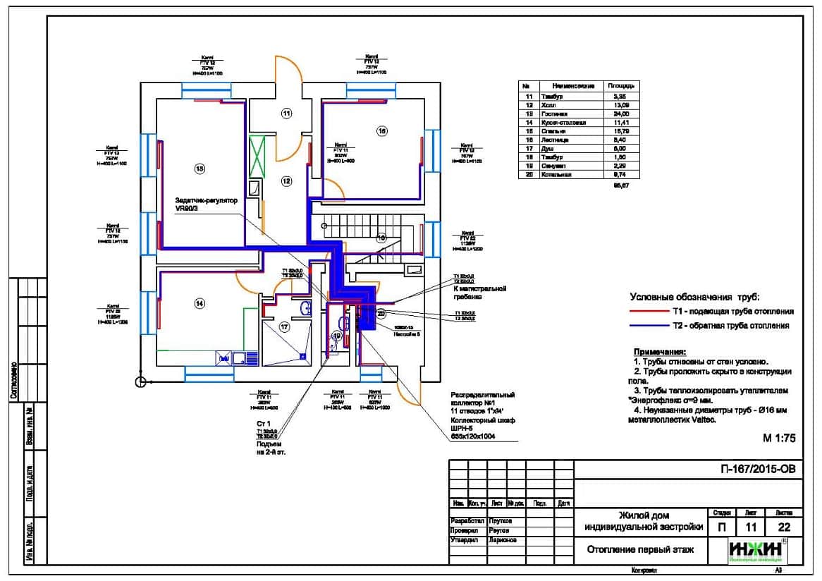
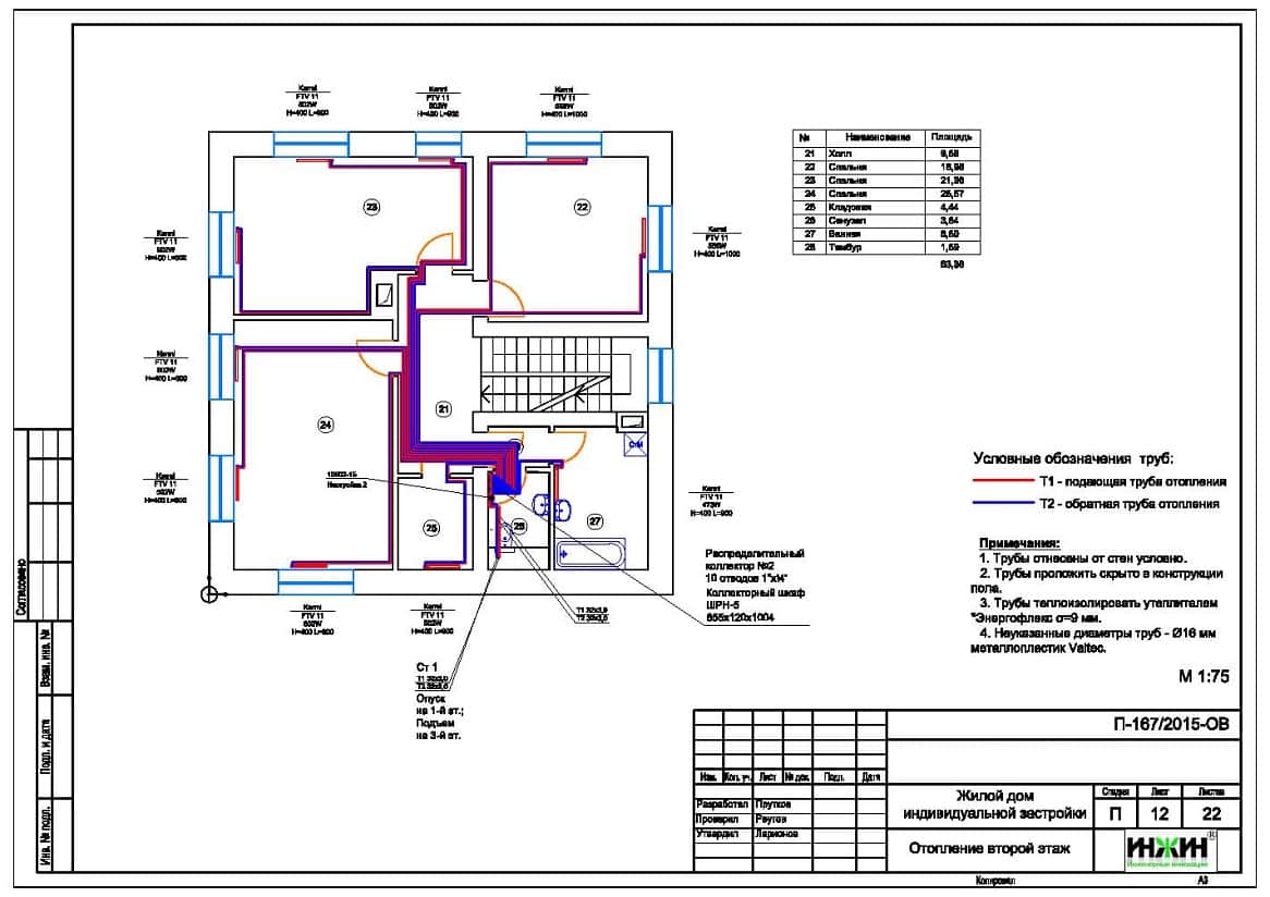
Система отопления частного дома.
o Отопление радиаторное, использованы панельные стальные радиаторы Kermi с нижним подключением;
o Схема радиаторного отопления двухтрубная, коллекторно-лучевая, с принудительной циркуляцией теплоносителя;
o Температурный график отопления 80/60°С;
o Трубопроводы отопления – металлопластик Valtec;
o Распределительные коллекторы отопления с термостатическими клапанами – Valtec, в сборе, на 9, 10 и 11 отводов;
o Шкафы коллекторные Valtec, пристраиваемые;
o Теплоизоляция трубопроводов Энергофлекс Супер, толщиной 9мм;
o Теплоноситель в системе отопления и теплых полов – антифриз «Теплый дом – Эко», 340 литров.
Водяной теплый пол.
o Водяной теплый пол в доме спроектирован на площади 32 м.кв., 8 петель;
o Теплоснабжение теплого пола запроектировано отдельным контуром котельной;
o Трубопроводы теплого пола - сшитый полиэтилен Valtec PEX-EVON;
o Использованы коллекторные группы Valtec VTc.596EMNX с расходомерами на 3 и 5 отводов;
o Основание теплого пола – маты из ламинированного пенополистирола «Формат FT40/20L».
Регулирование температуры теплого пола – общее, контуром котельной.
Внутренний водопровод.
o Схема внутреннего водоснабжения – коллекторная, с рециркуляцией горячей воды у потребителей;
o Коллекторы водопровода – Valtec VTc.560, сборные, с запорными вентилями;
o Трубопроводы системы водоснабжения – металлопластик Valtec;
o Теплоизоляция трубопроводов Энергофлекс Супер, толщиной 9мм;
o Для учета водопотребления установлен водосчетчик универсальный Valtec VLF-20U .
Внутренняя канализация.
o Предусмотрен безнапорный отвод стоков от санитарно-технических приборов;
o Трубопроводы канализации – раструбные SINIKON;
o Теплоизоляция трубопроводов Энергофлекс Супер, толщиной 13мм.



















