Выполненные проекты
Проект отопления, водоснабжения и канализации дома площадью 435 м.кв. в ЖК Воскресенское
![]() |
![]() |
![]() |
![]() |
![]() |
![]() |
Проект отопления, водоснабжения и канализации: выполнен 21.09.2016
Объект: загородный дом площадью 435 кв.м. в Ногинском районе Московской области, КП «ЖК Воскресенское»
Вариант отопления: «Комфортный+»
Стоимость проекта: 58 114 руб. (со скидкой 15%)
Состав проекта:
1. Пояснительная записка. Общие данные
2. Теплотехнический расчет дома.
3. Тепломеханическая схема котельной с размещением оборудования.
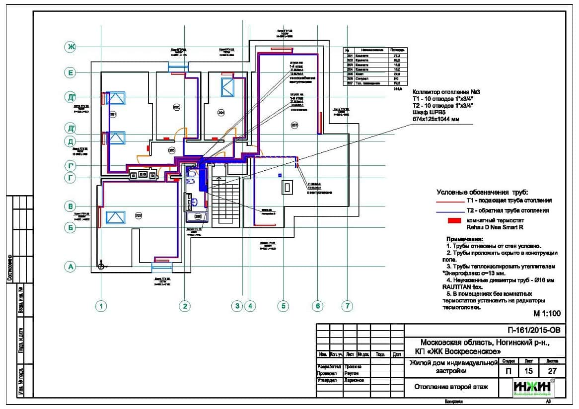
4. Комплект чертежей радиаторного отопления дома.
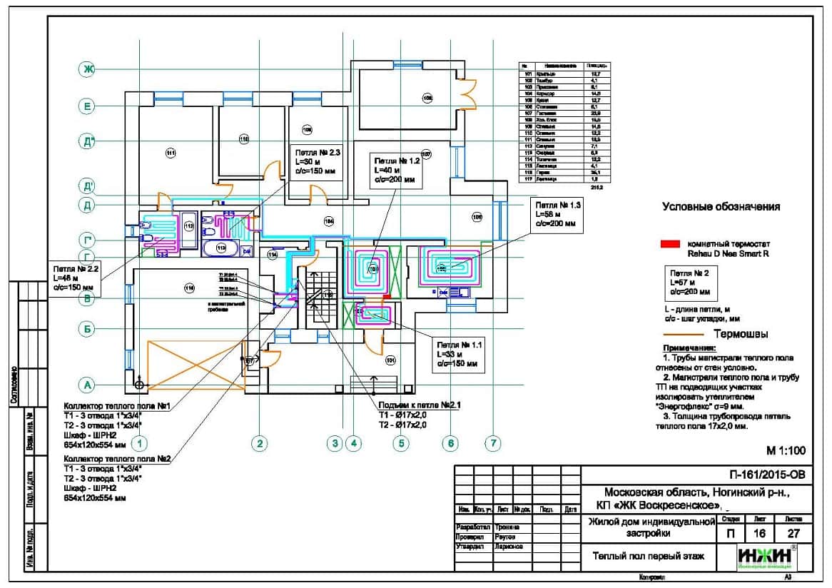
5. Комплект чертежей водяного теплого пола дома.
6. Комплект чертежей внутреннего водопровода и канализации.
7. Схема системы канализации (аксонометрия).
8. Спецификация материалов и оборудования.
Объем проекта: 60 листов.
Основные решения, которые приняты в проекте котельной, отопления, водоснабжения и канализации в соответствие с заданием Заказчика.
Котельная частного дома.
o Основной котел - напольный газовый Vaillant atmoVIT мощностью 48 кВт, резервный котел напольный газовый (сжиженный газ) Vaillant atmoVIT мощностью 41 кВт;
o Контуры котельной – радиаторное отопление дома, водяной теплый пол жилых помещений, водяной теплый пол санузлов, теплоснабжение вентустановки (с раздельным теплообменником) и горячее водоснабжение (бойлер);
o Приготовление горячей воды при помощи бойлера Vaillant uniSTOR, объемом 400 литров;
o Расширительные баки отопления и водоснабжения Reflex;
o Насосное оборудование Grundfos;
o Трубы дымоходные выполнены на объекте;
o Распределительный коллектор с насосно-смесительными группами Meibes и гидравлической стрелкой;
o Подпитка отопления – ручная;
o Автоматика котельной – блок Vaillant calorMATIC 630/3 с задатчиком-регулятором температуры в помещении VR 90/3.
Автоматизация (вариант «Комфортный+»).
o Автоматическое регулирование отопления по наружной температуре (погодное регулирование) и температуре в помещении;
o Автоматическое поддержание заданной температуры в контурах отопления, теплого пола и горячего водоснабжения;
o Дистанционное управление работой котельной установки при помощи выносного блока;
o Зональное регулирование температуры отопления и теплого пола по заданным помещениям.
Система отопления частного дома.
o Отопление радиаторное, использованы панельные стальные радиаторы Kermi с нижним подключением;
o Схема радиаторного отопления двухтрубная, коллекторно-лучевая, с принудительной циркуляцией теплоносителя;
o Температурный график отопления 80/60°С;
o Трубопроводы отопления – сшитый полиэтилен Rehau (RAUTITAN flex);
o Распределительные коллекторы отопления Rehau HKV, на 6, 7 и 10 отводов;
o Шкафы коллекторные Valtec, встраиваемые и пристраиваемые;
o Теплоизоляция трубопроводов Энергофлекс Супер, толщиной 9мм;
o Теплоноситель в системе отопления и теплых полов – подготовленная вода;
o Регулирование отопления по помещениям при помощи беспроводных терморегуляторов Rehau Nea Smart R (с дисплеем) и сервоприводов UNI с клеммными колодками.
Водяной теплый пол.
o Водяной теплый пол в доме спроектирован на площади 49 м.кв., 6 петель;
o Теплоснабжение теплого пола запроектировано двумя отдельными контурами котельной;
o Трубопроводы теплого пола - сшитый полиэтилен Rehau RAUTHERM S;
o Использованы коллекторные группы Rehau HKV-D с расходомерами на 3 отвода (2 шт.);
o Основание теплого пола – металлическая сетка «карта».
Предусмотрено покомнатное регулирование температуры теплого пола при помощи беспроводных терморегуляторов Rehau Nea Smart R (с дисплеем) и сервоприводов UNI.
Внутренний водопровод.
o Схема внутреннего водоснабжения – тройниковая тупиковая, с рециркуляцией горячей воды через полотенцесушители;
o Трубопроводы системы водоснабжения – сшитый полиэтилен Rehau (RAUTITAN flex);
o Теплоизоляция трубопроводов Энергофлекс Супер, толщиной 9мм.
Внутренняя канализация.
o Предусмотрен безнапорный отвод стоков от санитарно-технических приборов;
o Использован трап с сухим затвором Viega, 4936.2 (горизонтальный отвод);
o Для отвода конденсата от кондиционеров применены капельные воронки HL21 с сухим затвором;
o Трубопроводы канализации – раструбные SINIKON;
o Теплоизоляция трубопроводов Энергофлекс Супер, толщиной 13мм.
Заказать проект отопления, водоснабжения и канализации частного дома в нашей компании.
Для этого дома выполнен проект электрики.
![]() |
По этому проекту выполнен монтаж отопления, водоснабжения и канализации. |




















