Выполненные проекты
Проект электроснабжения и освещения дома площадью 435 м.кв. в Московской области
![]() |
![]() |
![]() |
![]() |
![]() |
![]() |
Проект электроснабжения и освещения (электрики): выполнен 21.09.2016
Объект: загородный дом площадью 435 кв.м. в Ногинском районе Московской области, КП «ЖК Воскресенское»
Стоимость проекта электрики: 40 672 руб. с учетом скидки 15%., проект слаботочной кабельной сети – бесплатно.
Состав проекта:
1. Пояснительная записка. Общие данные
2. Однолинейные схемы вводного распределительного устройства и поэтажных распределительных щитов.
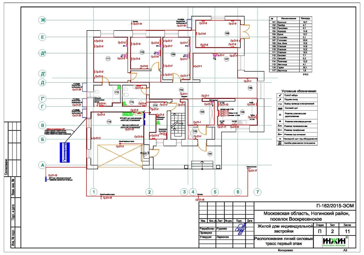
3. Поэтажные планы силовых электрических сетей.
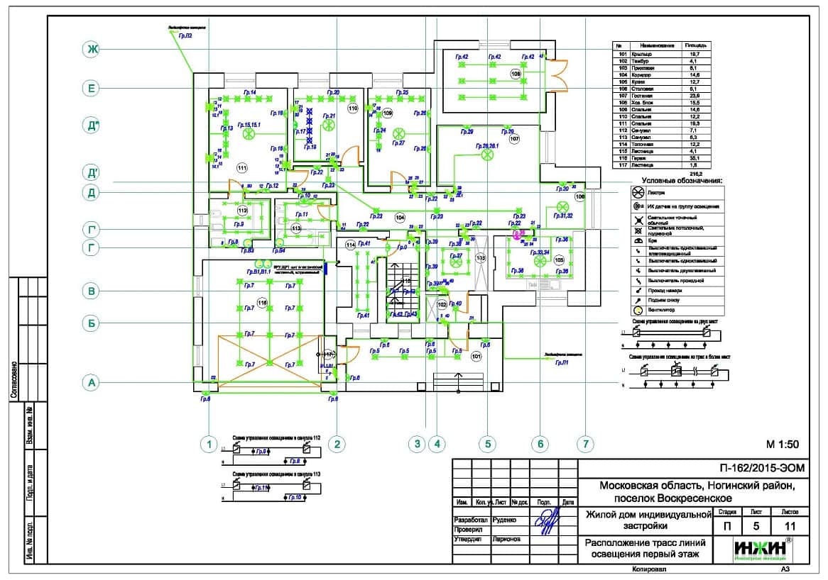
4. Планы групповых осветительных сетей.
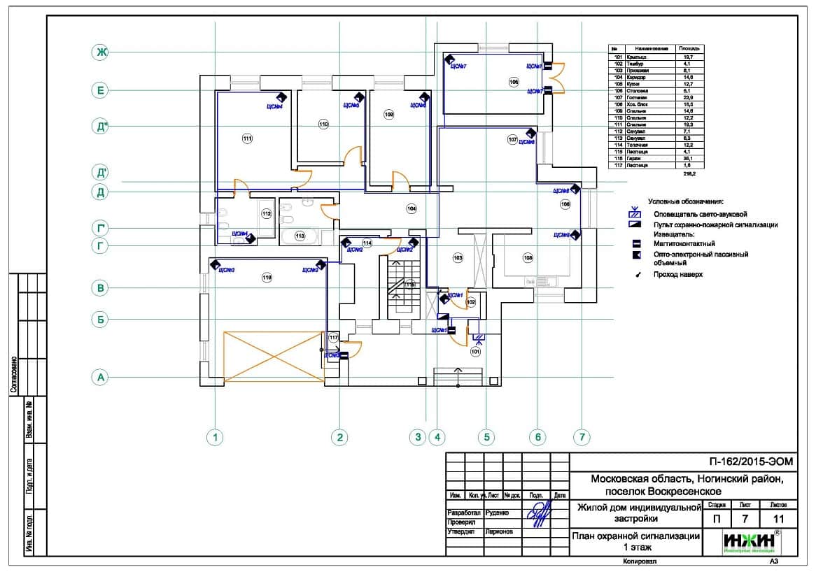
5. Поэтажные планы линий охранной сигнализации.
6. Чертежи линий пожарной сигнализации.
7. Схема расстановки видеокамер.
8. Спецификация материалов и оборудования.
Объем проекта: 24 листа.
Основные технические решения проекта электроснабжения и освещения (электрики), в соответствии с заданием Заказчика.
Рспределительные электрические щиты.
o Проектом предусмотрено два распределительных щита (на каждый этаж), оснащенных 56-ю автоматами;
o Автоматические выключатели, дифференциальные автоматы и УЗО в щитах - Hager;
o Корпуса щитов – Hager (встраиваемый и навесной).
Электропроводка (кабельные линии).
o Проектом предусмотрено использование кабелей ВВГ нг -LS (Конкорд) с медными жилами в ПВХ-оболочке;
o Общая протяженность линий электроснабжения и освещения – 3 220 метров;
o Прокладка силовых линий предусмотрена скрытым способом, в гофрированной ПВХ-трубе и металлорукаве (в виниловой изоляции);
o Предусмотрено 237 точек подключения розеток и выключателей;
o Для системы телевидения предусмотрены кабельные трассы с использованием кабеля Cavel SAT 703, в количестве 350 метров;
o Для систем сигнализации использован провод UTP 4х2х0,51 cat 5e, 440 метров.
Контур заземления.
Предусмотрено подключение к контуру заземления, выполненному на объекте.
Для этого дома выполнен проект отопления, водоснабжения и канализации.
Заказать проект электрики частного дома в нашей компании.
![]() |
По этому проекту выполнен монтаж электрики (электропроводки) и слаботочки. |




















