Выполненные проекты
Проект электроснабжения и освещения деревянного дома площадью 124 м.кв. в КП «Арнеево»
![]() |
![]() |
![]() |
![]() |
![]() |
Проект электроснабжения и освещения (электрики): выполнен 04.10.2016
Объект: загородный дом площадью 124 кв.м., Московская область, Серпуховской район, КП «Арнеево»
Стоимость проекта: 14 025 руб. (со скидкой 15%)
Состав проекта:
1. Пояснительная записка. Общие данные
2. Однолинейные схемы вводного распределительного устройства.
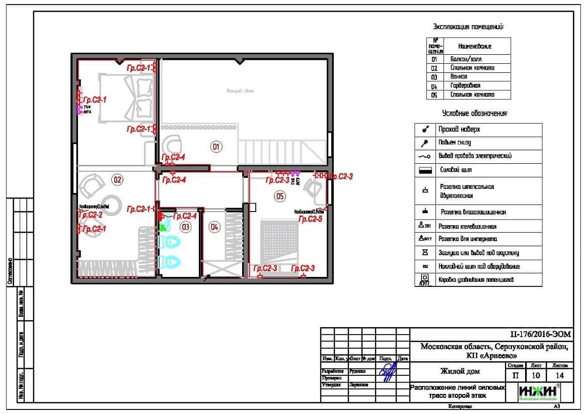
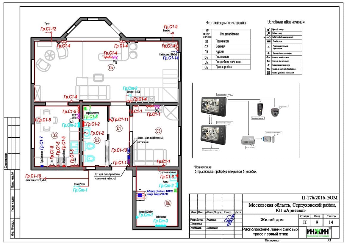
3. Поэтажные планы силовых электрических сетей.
4. Планы групповых осветительных сетей.
5. Спецификация материалов и оборудования.
Объем проекта: 14 листов.
Основные технические решения проекта электроснабжения и освещения (электрики), в соответствии с заданием Заказчика.
Электрические распределительные щиты.
o Проектом предусмотрен распределительный щит, оснащенный 36-ю автоматами;
o Автоматические выключатели, дифференциальные автоматы и УЗО в щите - Hager;
o Корпус щита – Hager, навесной.
Электические кабельные сети (электропроводка).
o Проектом предусмотрено использование кабелей ВВГ нг -LS (Конкорд) с медными жилами в ПВХ-оболочке;
o Общая протяженность линий электроснабжения и освещения – 1 775 метров;
o Прокладка силовых линий предусмотрена скрытым способом, в гофрированной ПВХ-трубе и металлорукаве (в виниловой изоляции);
o Предусмотрено 104 точки подключения розеток и выключателей;
o Для системы телевидения предусмотрены кабельные трассы с использованием кабеля Cavel SAT 703, в количестве 300 метров;
o Для систем сигнализации использован провод UTP 4х2х0,51 cat 5e, 305 метров.
Контур заземления.
Предусмотрен комплект заземления Ezetek EZ 6.


















